Build a Georgian-style family home a short walk from the harbour.
Full planning permission granted (Cornwall Council ref PA24/04732)
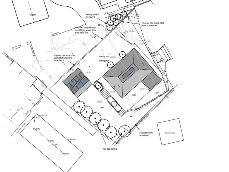
A rare self-build plot in historic Charlestown with full planning permission (PA24/04732) for a four-bedroom detached home and garage. The site sits elevated and within walking distance of the harbour, beach, cafés and coastal paths, offering exceptional sea and harbour outlooks and strong coastal character.
The planning consent is for a substantial, period-style house (c.2,476 sq ft) designed with reverse living to maximise views. The sale includes on-site electricity and water, secure gated access and a construction pack with building regs information, giving a clear route to build for an experienced self-builder or developer.
This is a turnkey planning package rather than a finished house: purchasers must complete construction and meet planning conditions set by Cornwall Council. The plot is freehold and marked as low flood risk, but buyers should allow budget and time for full build costs, site works, and compliance with planning conditions.
Charlestown’s village amenities, good local schools and very low crime make this well suited to families seeking a prominent coastal home. The elevated position and approved design promise excellent long-term value, particularly for buyers who want a bespoke house in a coveted harbour-side setting.
Plot for sale in SUPERB COASTAL PLOT, Charlestown, Cornwall, PL25 — £750,000 • 1 bed • 1 bath • 2476 ft²
4 bedroom detached house for sale in Lovering Dry, Charlestown, St Austell, PL25 — £875,000 • 4 bed • 3 bath • 1985 ft²
3 bedroom character property for sale in Duporth Road, St Austell, PL25 — £375,000 • 3 bed • 1 bath • 779 ft²
Plot for sale in Carclaze Road, St Austell, PL25 — £149,950 • 1 bed • 1 bath • 2195 ft²
Plot for sale in Parkenbutts, Newquay, TR7 — £230,000 • 4 bed • 2 bath • 1227 ft²
4 bedroom end of terrace house for sale in Quay Road, St. Austell, PL25 — £625,000 • 4 bed • 2 bath • 1513 ft²










































































