Low-cost refurbishment opportunity with immediate rental potential.
Vacant freehold two-bedroom mid-terrace, Victorian brick
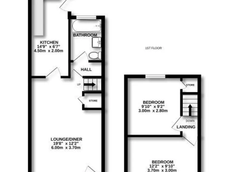
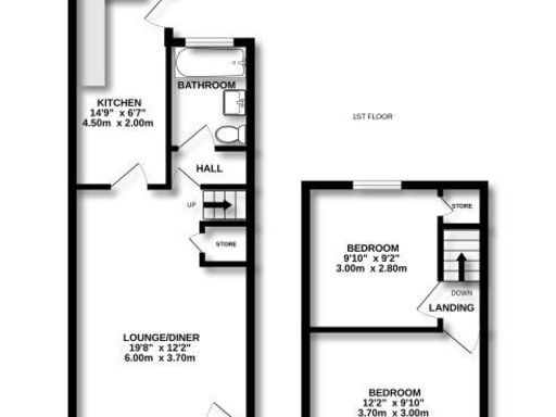
Offered for sale by public auction with a guide price of £45,000+, this vacant two-bedroom mid-terrace is a straightforward freehold investment opportunity in L8. The property already benefits from double glazing, mains gas central heating and an EPC rating of C, reducing some immediate compliance costs. With refurbishment, the house could achieve an estimated rental income of around £10,200 per year.
The house is a Victorian brick terrace with period character and a compact rear yard. Accommodation comprises vestibule, through living/dining room, small kitchen, bathroom/wc and two first-floor bedrooms. Construction is solid brick with no fitted insulation (assumed), so buyers should budget for energy-efficiency works and general modernisation of the dated kitchen and other finishes.
Practical positives include good mobile signal, fast broadband and proximity to local amenities, schools and transport, about three miles from Liverpool city centre. Material negatives: the property is in a very deprived, high-crime area and needs renovation throughout. Buyers should allow for refurbishment costs, potential wall insulation works, and typical Victorian property maintenance.
This lot suits cash buyers or investors comfortable buying at auction and carrying refurbishment. It is vacant and ready for immediate works once purchased; the auction sale means completion terms require careful review. For those targeting yield in central Liverpool, the low guide price and forecast rent make this a clear renovation-and-let proposition, provided you factor in area risk and upgrade costs.
2 bedroom terraced house for sale in 44 Holmes Street, Liverpool, L8 — £45,000 • 2 bed • 1 bath
2 bedroom terraced house for sale in 10 Wendell Street, Liverpool, L8 — £65,000 • 2 bed • 1 bath • 463 ft²
2 bedroom terraced house for sale in 12 Jacob Street, Liverpool, L8 — £97,000 • 2 bed • 1 bath
2 bedroom terraced house for sale in 59 Holmes Street, Liverpool, L8 — £45,000 • 2 bed • 1 bath
2 bedroom town house for sale in 62 Earle Road, Liverpool, L7 — £60,000 • 2 bed • 1 bath
2 bedroom terraced house for sale in 34 Middleton Road, Fairfield, Liverpool, L7 — £85,000 • 2 bed • 1 bath • 668 ft²






























