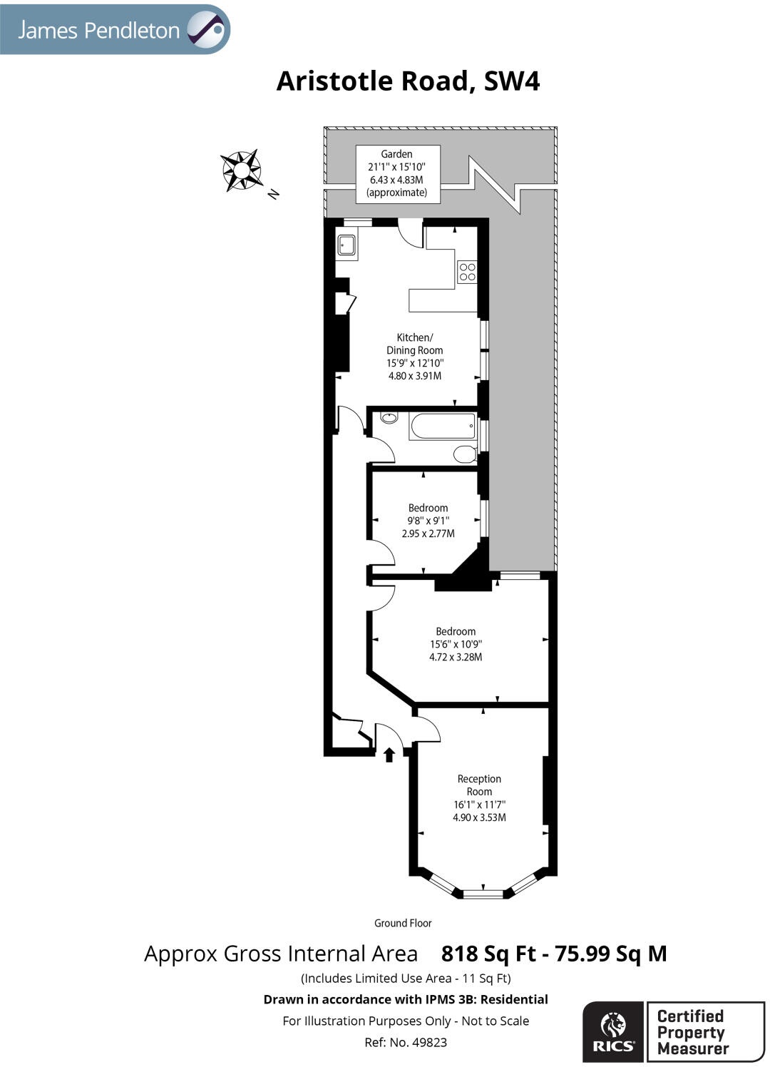
Bright two-bedroom conversion with eat-in kitchen and private south-facing garden close to stations.
- South-facing private garden, ideal for summer entertaining
- Large eat-in kitchen/diner with natural light
- Bright living room with high ceilings and bay window
- Generous master bedroom and second double bedroom
- Bathroom includes both bath and separate shower
- Long lease (166 years) but property is leasehold
- Solid brick walls; likely no cavity insulation
- Located near Clapham North and Clapham High Street stations
A bright ground-floor Victorian conversion, this two-bedroom flat offers generous principal rooms and private outdoor space in central Clapham. The living room has high ceilings, a bay window and a classic fireplace that flood the front of the property with light. At the rear a large eat-in kitchen/diner opens on to a south-facing garden, providing outdoor space for summer entertaining and plant pots.
The flat is arranged in a traditional layout with a generous master bedroom, a second double and a single bathroom with both bath and shower. Practical details include mains gas central heating with boiler and radiators, double glazing and an unusually long lease of 166 years. Broadband speeds are reported fast and mobile signal is excellent — useful for home working.
Buyers should note this is a solid-brick period building likely lacking cavity wall insulation, and some retrofit work may be required to improve thermal performance. The property is leasehold and sits in an area with above-average crime rates; proximity to Clapham North Underground and Clapham High Street station still makes it strong for commuters. Overall, this flat will suit first-time buyers or couples seeking a well-located period home with garden potential and scope to modernise sensibly.
2 bedroom flat for sale in Aristotle Road,
Clapham North, SW4 — £595,000 • 2 bed • 1 bath • 805 ft²
2 bedroom flat for sale in Aristotle Road, Clapham, SW4 — £650,000 • 2 bed • 1 bath • 838 ft²
2 bedroom flat for sale in Strathblaine Road, Clapham Junction, SW11 — £750,000 • 2 bed • 2 bath • 948 ft²
2 bedroom apartment for sale in Lavender Sweep, SW11 — £675,000 • 2 bed • 1 bath • 640 ft²
2 bedroom flat for sale in Edgeley Road, Clapham, SW4 — £750,000 • 2 bed • 1 bath • 819 ft²
2 bedroom flat for sale in Lavender Hill,
Battersea, SW11 — £550,000 • 2 bed • 1 bath • 737 ft²






































