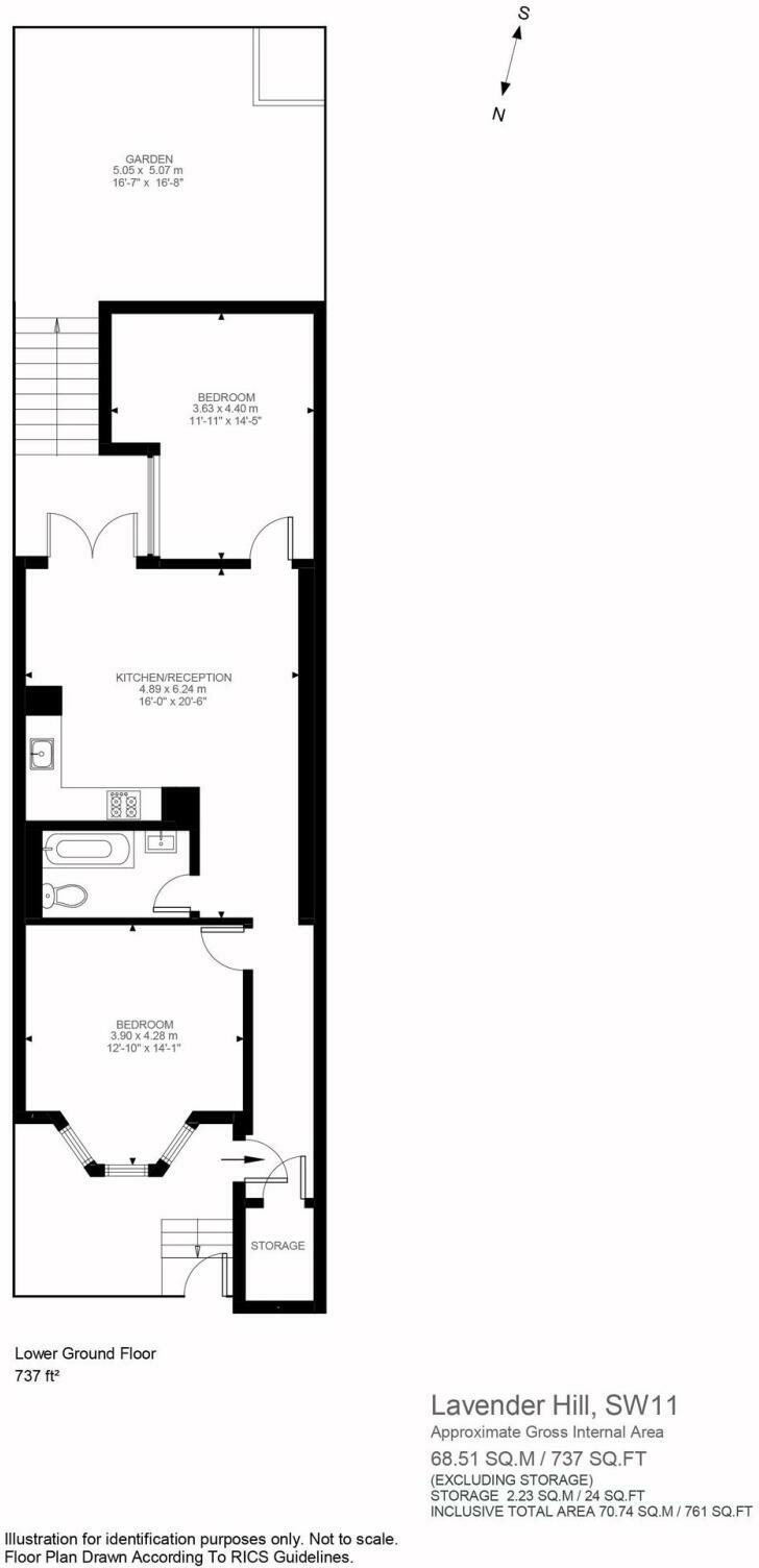
Bright two-bedroom garden flat near Clapham Common with long lease.
South-facing private garden directly off the reception room
A bright two-bedroom garden flat on Lavender Hill, offering a rare south-facing private garden and generous open-plan living. The apartment combines contemporary finishes in the kitchen and reception with the solidity and character of a late‑19th‑century terrace. With 737 sq ft, the layout suits first‑time buyers or couples wanting outdoor space without stairs to maintain.
Practical strengths include an exceptionally long lease (992 years) with a share of freehold, double glazing, mains gas boiler and radiators, fast broadband and excellent mobile signal. The property sits within easy reach of Clapham Junction, Queenstown Road and Clapham Common tube, and local green spaces such as Clapham Common and Battersea Park are a short walk away.
Buyers should note some material facts: the building’s solid brick construction likely lacks cavity insulation, and the exact date of the double glazing installation is unknown. The local crime level is recorded as high, which may concern some purchasers. Council tax is moderate. Overall, this is a well‑located, well‑proportioned garden flat with immediate move‑in potential and scope to personalise further.
1 bedroom flat for sale in Lavender Hill, Battersea, SW11 — £425,000 • 1 bed • 1 bath • 600 ft²
2 bedroom flat for sale in Lavender Hill,
Clapham Junction, SW11 — £475,000 • 2 bed • 1 bath • 782 ft²
2 bedroom apartment for sale in Latchmere Road, London, SW11 — £575,000 • 2 bed • 1 bath • 719 ft²
2 bedroom flat for sale in Lavender Hill, Battersea, London, SW11 — £500,000 • 2 bed • 1 bath • 864 ft²
2 bedroom terraced house for sale in Stormont Road,
Clapham Common, SW11 — £675,000 • 2 bed • 1 bath • 781 ft²
2 bedroom apartment for sale in Lavender Hill, SW11 — £540,000 • 2 bed • 2 bath • 770 ft²










































