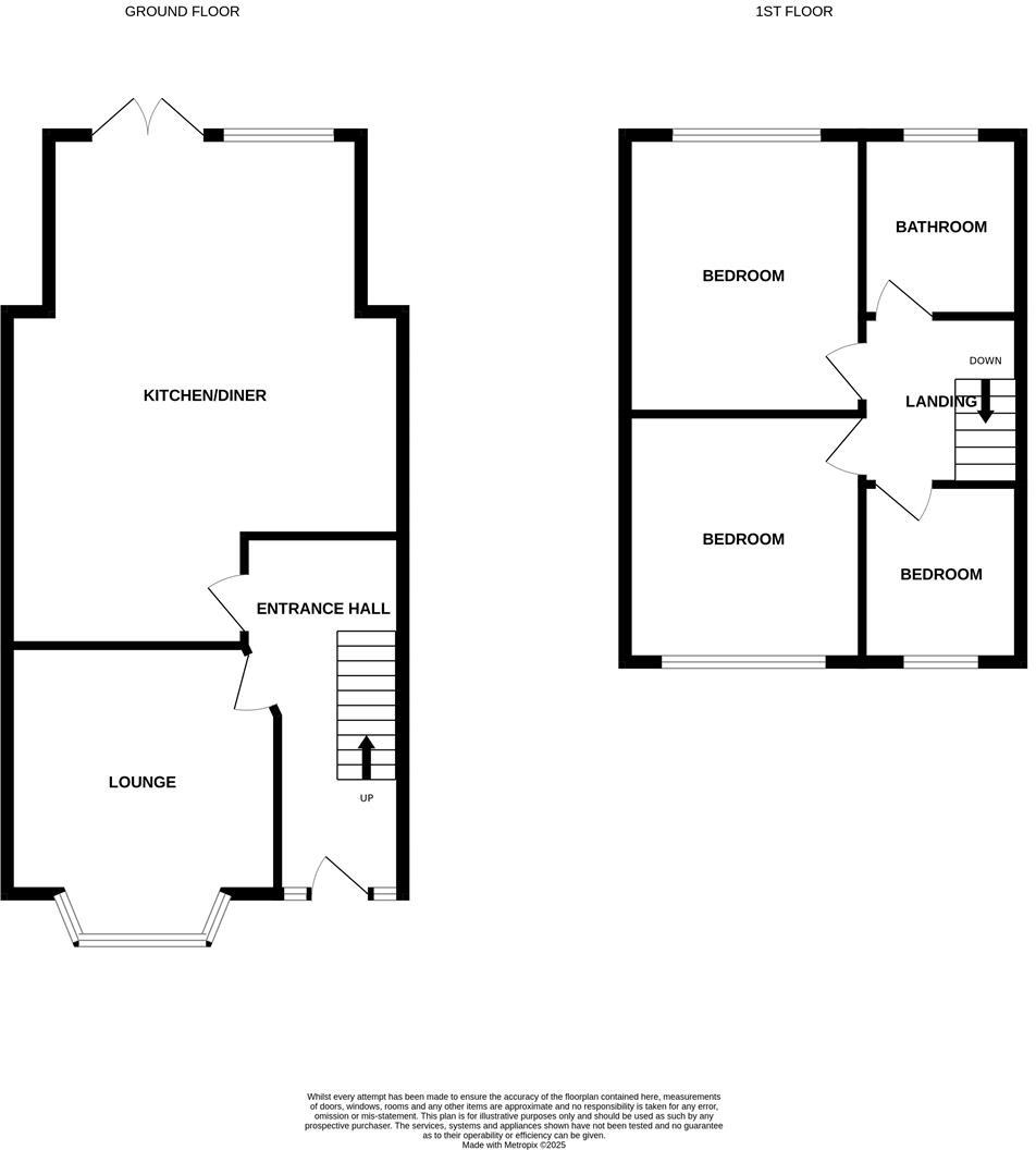
Extended three-bed house with large kitchen-diner and long lease near the coast.
Bay-front lounge with modern electric fireplace
Large open-plan kitchen-diner with French doors to garden
Three bedrooms; family four-piece bathroom with shower
Good-sized rear garden, decking, lawn and patio
899-year lease; very low ground rent (nominal)
Medium flood risk; consider insurance and flood precautions
Solid brick walls likely uninsulated — potential upgrade needed
Area has above-average crime and high local deprivation
This extended mid-terraced home on Warneford Road sits a short walk from Cleethorpes seafront and local amenities, making it a practical choice for first-time buyers or growing families. The layout offers a separate bay-front lounge plus a generous open-plan kitchen-diner with French doors onto a good-sized rear garden — useful for entertaining and family life.
Internally the house is presented in contemporary tones with a modern gloss kitchen, a four-piece bathroom and double glazing. At about 915 sq ft across two floors there are three bedrooms and useful understairs storage; the long 899-year lease and very low ground rent remove common leasehold headaches.
Buyers should note material factors plainly: the property sits in an area with above-average crime and high local deprivation, and the site has a medium flood risk. The building is original solid brick (likely no wall insulation), so energy efficiency may be lower than modern builds and some buyers may wish to budget for insulation or heating improvements.
Overall this is a well-presented, practical terrace with strong location benefits for schools, shops and the coast, and clear potential for modest energy or cosmetic upgrades to improve comfort and running costs. The tenure and nominal charges are favourable for long-term ownership; suitability depends on tolerance for local area issues and flood exposure.
3 bedroom terraced house for sale in Wilson Street, Cleethorpes, DN35 — £132,950 • 3 bed • 1 bath • 960 ft²
3 bedroom terraced house for sale in Combe Street, Cleethorpes, DN35 — £112,950 • 3 bed • 1 bath • 1053 ft²
3 bedroom terraced house for sale in Warneford Road, Cleethorpes , DN35 — £147,500 • 3 bed • 1 bath • 774 ft²
3 bedroom terraced house for sale in Daubney Street, Cleethorpes, DN35 — £105,000 • 3 bed • 1 bath • 1061 ft²
3 bedroom semi-detached house for sale in Kathleen Avenue, Cleethorpes, DN35 — £115,000 • 3 bed • 1 bath • 936 ft²
3 bedroom terraced house for sale in Bark Street, Cleethorpes, DN35 — £140,000 • 3 bed • 1 bath • 819 ft²


















































































































