Light-filled renovated home with private garden and workshop for rural living.
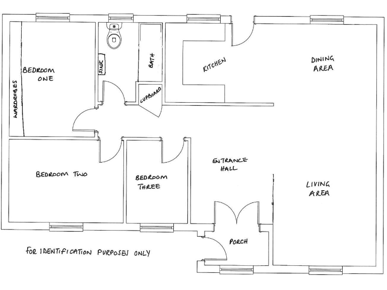
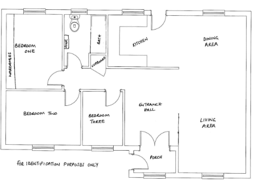
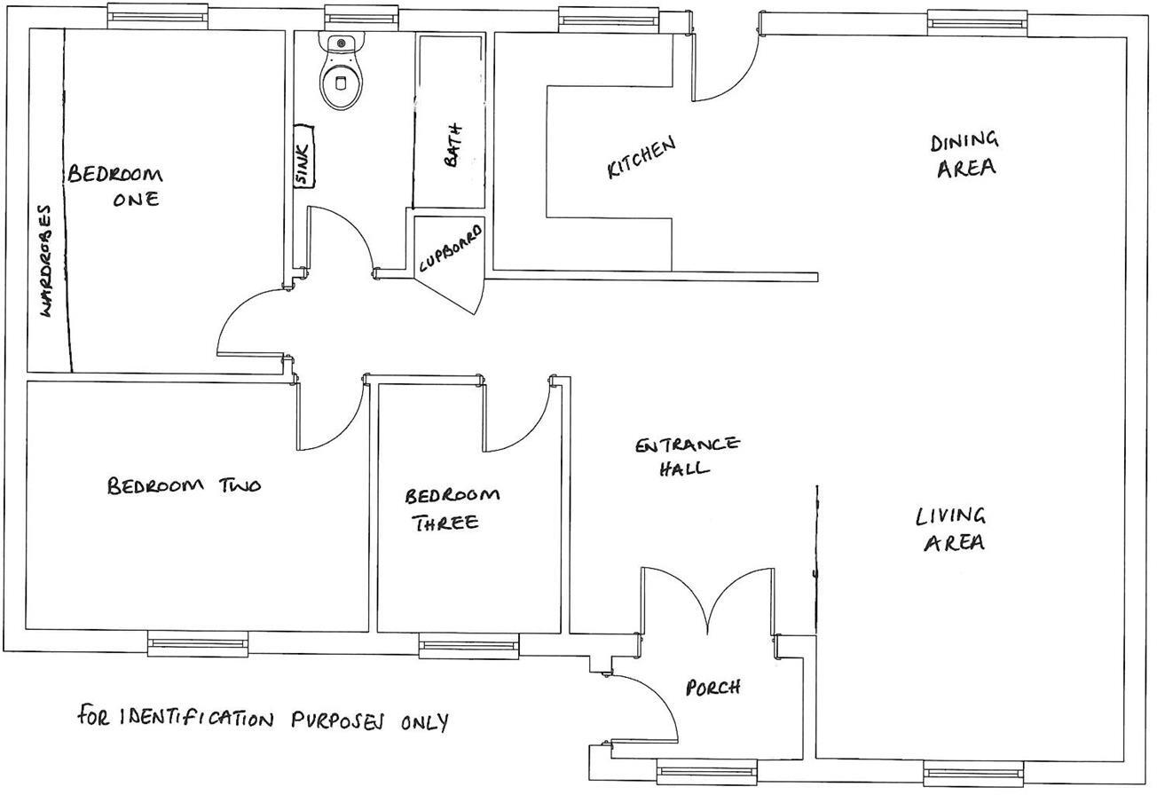
Three bedroom detached bungalow with elevated river and boatyard views
Recently renovated throughout — new kitchen and bathroom
Open-plan living/dining room, bright and flexible space
Private rear garden with patio and well-established planting
Detached garage split into storage and rear workshop
Off-street driveway parking for one car only
Oil-fired central heating; EPC rating E48
Cavity walls likely uninsulated; double glazing pre-2002
Set in elevated countryside near the Helford River, this recently renovated three-bedroom detached bungalow offers bright, open-plan living with standout river and boatyard views. The living/dining room stretches across the heart of the home; a new kitchen and modern bathroom complete practical, move-in-ready accommodation for family life or a peaceful retirement base.
Outside, the private rear garden is well stocked and has a patio for outdoor dining, while the front enjoys sweeping rural views. Off-street driveway parking for one car and a detached garage (now split into storage and a workshop) add useful utility space for hobbies and storage.
Practical points to note: the house is oil‑heated and has an EPC rating E48, double glazing installed before 2002, and cavity walls assumed to have no insulation. There is a single family bathroom and limited driveway parking, so buyers should consider parking needs and potential energy-efficiency upgrades.
Located in the quiet village of Gweek, the bungalow is within reach of local amenities, scenic riverside walks and nearby towns such as Helston and Falmouth. The property is freehold with Council Tax Band D — a straightforward purchase for those seeking a low‑maintenance, characterful home with excellent countryside and river outlooks.
3 bedroom bungalow for sale in Forthcrom, Gweek, Helston, Cornwall, TR12 — £340,000 • 3 bed • 2 bath • 1187 ft²
3 bedroom bungalow for sale in Delightful home in Helford village, TR12 — £800,000 • 3 bed • 1 bath • 1008 ft²
2 bedroom detached bungalow for sale in Detached bungalow in coastal setting, Gillan, TR12 — £349,950 • 2 bed • 1 bath • 883 ft²
4 bedroom detached house for sale in Mawnan Smith, Nr Helford Estuary, TR11 — £650,000 • 4 bed • 2 bath • 1314 ft²
3 bedroom detached bungalow for sale in Parc Peneglos, Mylor Bridge, TR11 — £425,000 • 3 bed • 2 bath • 854 ft²
3 bedroom bungalow for sale in Bungalow with potential, Porthleven, TR13 — £320,000 • 3 bed • 1 bath • 569 ft²


































































































































