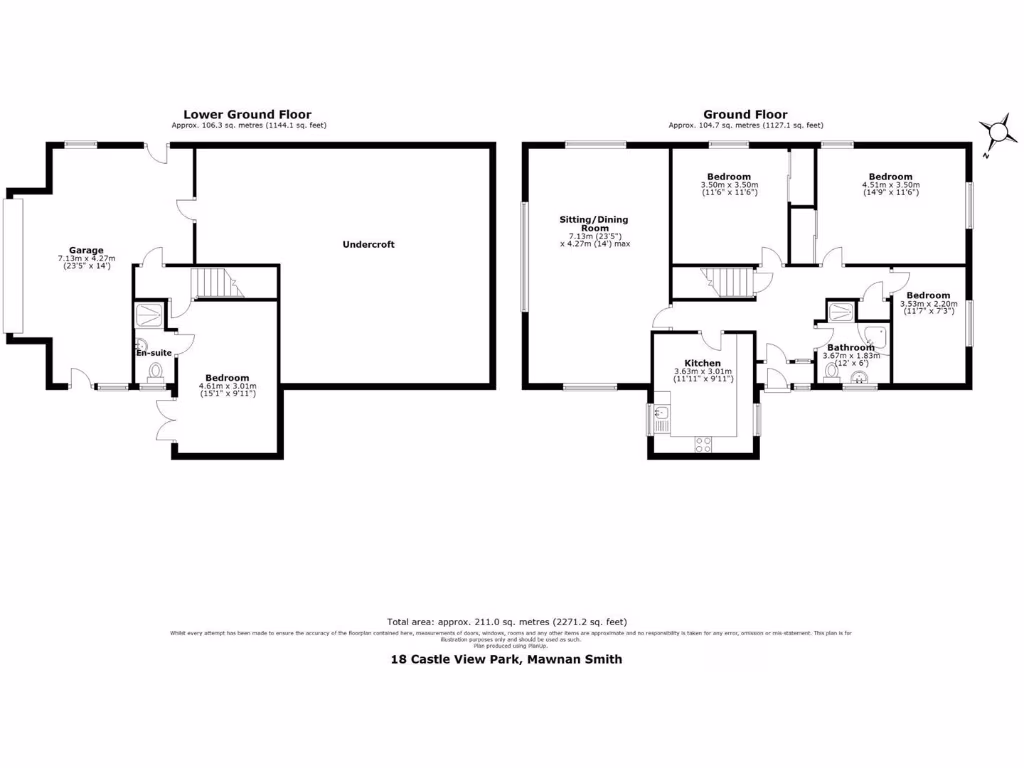
**Standout Features:**
- Detached split-level bungalow with four bedrooms and two bathrooms
- Spacious garage and large undercroft for additional storage
- Ample off-street parking, with room for a boat or caravan
- Stunning countryside views, close to Helford Estuary
- Walking distance to village amenities and local facilities
- Flexible living space with potential for a self-contained annexe
This inviting detached split-level bungalow is a rare find in the serene village of Mawnan Smith, perfect for first-time buyers or retirees seeking comfort and tranquility. Offering four well-proportioned bedrooms, two bathrooms, and a magnificent combined living/dining room bathed in natural light, the property exudes warmth and functionality. The main level also features a kitchen that’s equipped for modern living.
Set on a generous plot, this home boasts a large rear driveway capable of accommodating several vehicles, including space for a boat or caravan—ideal for the outdoor enthusiast. The beautiful views over the surrounding countryside create an inviting backdrop, perfect for relaxing or entertaining. Additionally, the lower ground floor is adaptable for future family needs or rental potential, having previously served as an Airbnb space.
While the property is primarily in good condition, it features an oil-fired heating system that has not been recently updated; further modernizations could enhance its value. The village amenities, including a primary school rated 'Good', local shops, and stunning rural walks, make this an ideal location for families or those looking for a peaceful retirement.
Secure this property chain-free and envision your future in a home that perfectly balances comfort and flexibility! Don’t miss out on the opportunity to own a piece of this idyllic countryside retreat.
4 bedroom detached house for sale in Castle View Park, Mawnan Smith, TR11 — £570,000 • 4 bed • 2 bath • 1469 ft²
4 bedroom detached house for sale in Castle View Park, Mawnan Smith, TR11 — £685,000 • 4 bed • 2 bath • 915 ft²
3 bedroom semi-detached bungalow for sale in Carlidnack Close, Mawnan Smith, TR11 — £395,000 • 3 bed • 2 bath • 872 ft²
2 bedroom semi-detached house for sale in Carlidnack Close, Mawnan Smith, TR11 — £360,000 • 2 bed • 1 bath • 1078 ft²
5 bedroom detached house for sale in Greenfields Close, Mawnan Smith, TR11 — £775,000 • 5 bed • 3 bath • 2000 ft²
3 bedroom detached house for sale in Mawnan Smith, TR11 — £695,000 • 3 bed • 2 bath • 1494 ft²














































































