Practical three-bed terrace near Chadwell Heath Elizabeth Line; ideal for first-time buyers..
Freehold mid-terrace with three bedrooms and small front/rear gardens
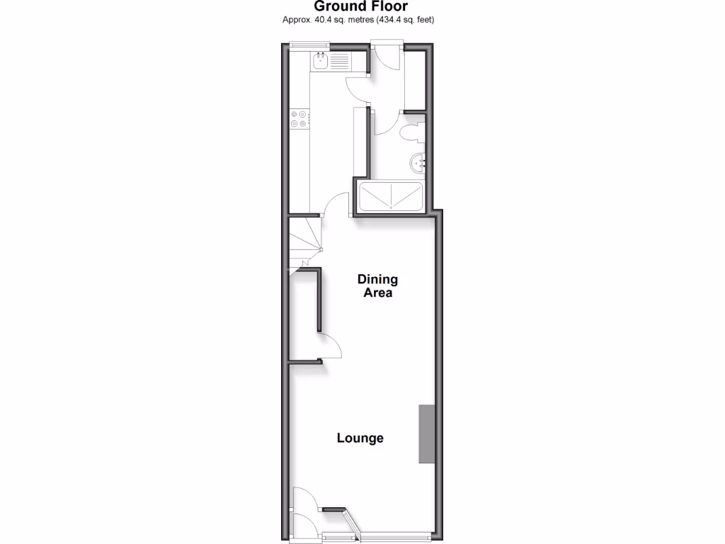
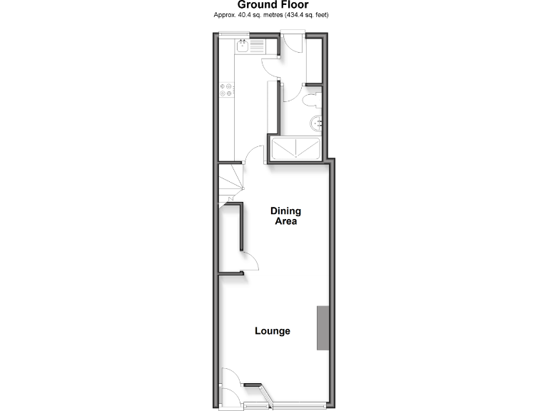
This compact three-bedroom mid-terrace sits within easy walking distance of Chadwell Heath station (Elizabeth Line), making it a practical choice for first-time buyers or commuters. The house offers a generous through lounge/dining space, a galley kitchen with adjoining utility area, and a low-maintenance front and rear garden — all on a modest, manageable plot.
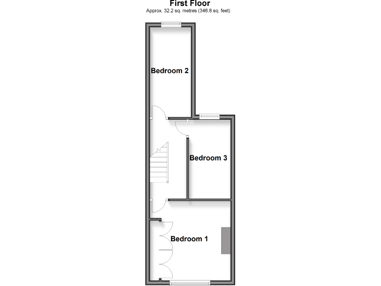
The property dates from the early 20th century and retains a traditional brick façade and characterful proportions. Room sizes are useful for the footprint (lounge/diner approx. 25'5 x 11'8) and the layout is open-plan in parts, which helps light and flow. Local schools rated Good are within reach and the area benefits from excellent mobile signal and fast broadband.
Buyers should note the property is small overall and constructed with solid brick walls that likely lack cavity insulation; this could mean higher heating costs unless upgraded. The interior is dated in places (textured ceilings, older glazing fitted before 2002) and would benefit from modernisation throughout. There is only one shower room on the ground floor and standard ceiling heights.
In short, this freehold terrace offers reasonable commuter convenience and good potential for a buyer willing to update finishes and improve thermal performance. It’s presented as a straightforward, affordable entry onto the property ladder with clear scope to add value through renovation and insulation improvements.
3 bedroom terraced house for sale in Wadeville Avenue, Romford, Essex, RM6 — £475,000 • 3 bed • 1 bath • 819 ft²
3 bedroom terraced house for sale in Temple Avenue, Dagenham, Essex, RM8 — £400,000 • 3 bed • 1 bath • 582 ft²
2 bedroom end of terrace house for sale in Overton Drive, Chadwell Heath, Essex, RM6 — £375,000 • 2 bed • 1 bath • 926 ft²
3 bedroom semi-detached house for sale in Somerville Road, Chadwell Heath, Romford, Essex, RM6 — £500,000 • 3 bed • 1 bath • 617 ft²
3 bedroom terraced house for sale in Hickman Road, Chadwell Heath, RM6 — £500,000 • 3 bed • 1 bath • 876 ft²
3 bedroom terraced house for sale in Roxy Avenue, Romford, RM6 — £475,000 • 3 bed • 2 bath • 1238 ft²














































