Spacious rooms and long private garden ideal for families and commuters.
Chain-free freehold three-bedroom terraced house
A chain-free, freehold three-bedroom terraced home offering generous reception and kitchen spaces and a long private rear garden. The house sits close to Becontree (District line) station for straightforward city commutes and benefits from fast broadband and excellent mobile signal — appealing to families and commuter buyers.
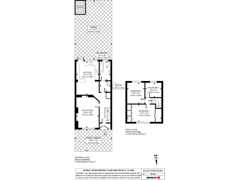
Internally the layout is practical: a 16'9 reception, 17'5 kitchen/diner, ground-floor bathroom/WC and a compact utility area, plus three bedrooms upstairs. At about 983 sq ft, the property is an average-sized terraced home with a small front plot and garage parking. Council tax band C and EPC rating D are confirmed.
The house dates from 1930–1949 and has solid brick walls with no known insulation (assumed), so thermal upgrades and redecoration would add value and comfort. There is clear potential for modernization in kitchens, bathrooms and energy efficiency improvements.
Location strengths include several nearby primary and secondary schools rated Good to Outstanding, local amenities, and direct transport links. Note the wider area shows higher deprivation levels and average local crime; buyers should factor this into long-term plans.
3 bedroom end of terrace house for sale in Ivyhouse Road, Dagenham, RM9 — £475,000 • 3 bed • 1 bath • 1275 ft²
2 bedroom terraced house for sale in Gale Street, Dagenham, RM9 — £375,000 • 2 bed • 1 bath • 769 ft²
3 bedroom end of terrace house for sale in Hedgemans Road, Dagenham, RM9 — £425,000 • 3 bed • 1 bath • 894 ft²
3 bedroom end of terrace house for sale in Woodward Road, Dagenham , RM9 — £450,000 • 3 bed • 1 bath • 979 ft²
3 bedroom terraced house for sale in Rosedale Gardens, Dagenham , RM9 — £360,000 • 3 bed • 1 bath • 1062 ft²
3 bedroom terraced house for sale in Denny Gardens, Dagenham, RM9 — £375,000 • 3 bed • 1 bath • 758 ft²


























































