Auction opportunity with planning consent for three 2‑bed flats near major Blackpool attractions.
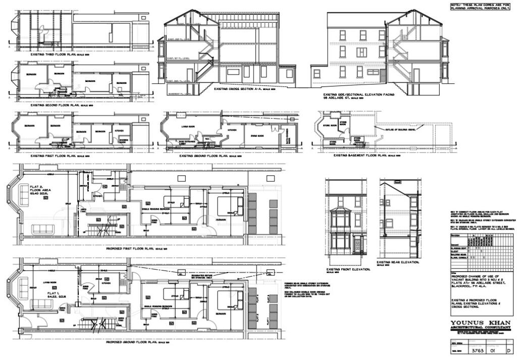
- Vacant 8-bedroom Victorian mid-terrace across six floors
- Planning consent (24/0676) for 3 x 2-bed flats
- Approximately 2,745 sq ft — extremely large internal size
- Full refurbishment required; likely heating/electrical upgrades
- EPC rating E; cavity walls assumed uninsulated
- Very high local crime and very deprived area
- Sale by auction 29 Oct 2025; 5% deposit and 4.8% buyers’ fee apply
- Freehold, small plot, city-centre seaside location
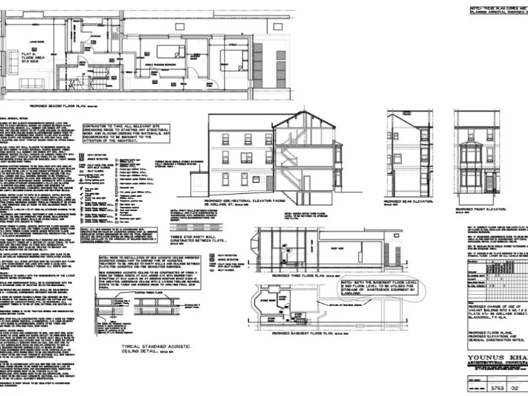
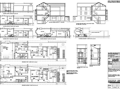
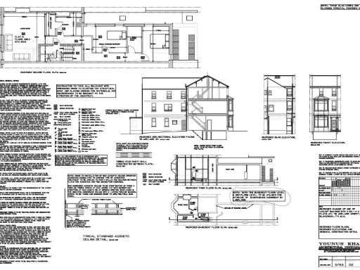
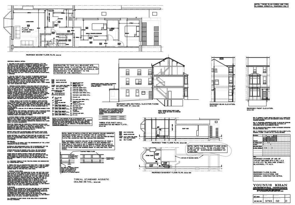
An extremely large Victorian mid-terrace arranged over six floors, this vacant former guesthouse offers clear scope for conversion into three self-contained 2-bedroom flats under existing planning consent (24/0676). The property extends to approximately 2,745 sq ft and sits close to Blackpool Tower and Winter Gardens, giving strong rental and short-stay demand potential in a busy town centre location.
The building requires a full refurbishment throughout: cosmetic and structural works, likely heating and electrical upgrades, and removal of the rear extension as per the approved external alterations. The EPC is rated E and the walls are assumed to be uninsulated cavity construction, so energy-efficiency improvements will be necessary to reach contemporary standards.
Sold at auction on 29 October 2025 with a guide price of £138,000, this freehold lot suits experienced investors or developers able to complete refurbishment and manage an in-town conversion. Note auction terms include a 5% deposit (minimum £5,000) and a buyers’ fee of 4.8% (minimum £6,000 inc. VAT); contracts are binding at the point of sale. The surrounding area is very deprived with very high crime levels, which will affect lettability and pricing assumptions.
8 bedroom terraced house for sale in Hull Road, Blackpool, Lancashire, FY1 — £85,000 • 8 bed • 1 bath • 2816 ft²
Commercial property for sale in 29 Birley Street, Blackpool FY1 1EG, FY1 — £95,000 • 1 bed • 1 bath
Block of apartments for sale in 18-20 Hesketh Avenue, Bispham, Blackpool, Greater Manchester FY2 9JX, FY2 — £150,000 • 1 bed • 1 bath • 2239 ft²
5 bedroom block of apartments for sale in 33 Bethesda Road, Blackpool, Lanarkshire FY1 5DT, FY1 — £150,000 • 5 bed • 1 bath
8 bedroom terraced house for sale in York Street, BLACKPOOL, Lancashire, FY1 — £90,000 • 8 bed • 5 bath • 2076 ft²
Commercial development for sale in 122 Bolton Street, Blackpool, Lancashire FY1 6AA, FY1 — £110,000 • 1 bed • 1 bath






























































































