**Key Features:**
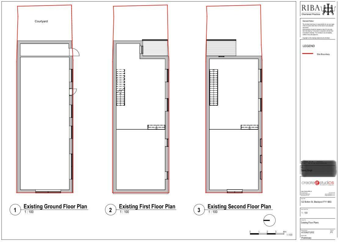
- Former corner commercial unit, three floors in total.
- Plans for conversion into 6 one-bedroom apartments (subject to planning permission).
- Just 100 yards from Blackpool’s vibrant sea front and South Pier.
- Ideal letting location with close proximity to amenities including restaurants and public transport.
- Freehold with vacant possession, offering flexibility for future use.
- Requires renovation, providing a blank canvas for personal or investment projects.
- Auction sale scheduled for December 10, 2024.
This former corner commercial building presents a unique development opportunity in a prime location, just a short stroll from the Blackpool seafront. The building spans three floors and includes planning drawn for converting it into six spacious one-bedroom apartments, making it an excellent investment prospect for those looking to tap into the lucrative rental market. While the property is in need of renovation, it serves as a blank slate, allowing for creativity in design and potential upgrades to attract future tenants.
Situated in a highly active area with bustling amenities nearby, this property is ideally positioned for holiday lets or long-term rentals. The freehold status and vacant possession grant immediate flexibility for any passionate developer or investor. With the auction date fast approaching, this property is a must-explore for those seeking an affordable entry into the Blackpool property market. Don’t miss your chance to capitalize on this exciting opportunity!
Mixed use property for sale in 29 Birley Street, Blackpool FY1 1EG, FY1 — £95,000 • 1 bed • 1 bath
Commercial property for sale in 25 Wellington Road, Blackpool, Lancashire FY1 6AR, FY1 — £120,000 • 1 bed • 1 bath
Mixed use property for sale in 160 Promenade, Blackpool, Lancashire FY1 1RE, FY1 — £95,000 • 1 bed • 1 bath
Mixed use property for sale in 92-92A Central Drive, Blackpool, Lancashire FY1 5QF, FY1 — £90,000 • 1 bed • 1 bath • 2465 ft²
Commercial development for sale in 4 Haig Road, Blackpool, Lancashire FY1 6BZ, FY1 — £45,000 • 1 bed • 1 bath • 2863 ft²
Residential development for sale in 106-108 Lytham Road, Blackpool, Lancashire FY1 6DZ, FY1 — £18,000 • 1 bed • 1 bath


















