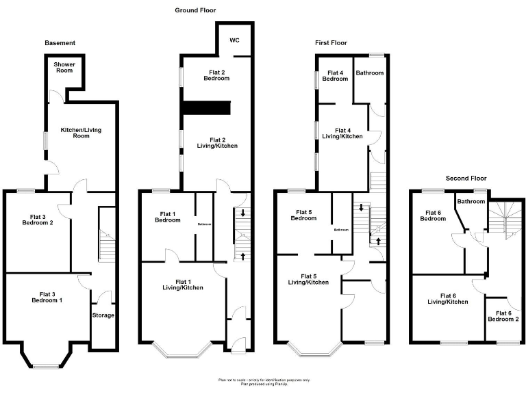
Central Blackpool six-unit block for renovation with strong short-stay demand potential.
- Freehold Victorian mid-terrace converted to six holiday flats
- Total area c. 2,816 sq ft (plans state 261 sqm)
- Guide price £85,000+, sale by live stream auction
- Requires full internal refurbishment throughout
- EPC ratings vary from C to D across units
- Located in central Blackpool holiday zone near seafront
- High local crime and very high area deprivation
- No access between exchange and completion; factor legal risk
A substantial mid-terraced Victorian building currently arranged as six self-contained holiday flats (total c. 2,816 sq ft). The block sits in the heart of Blackpool’s holiday zone, within easy walking distance of major attractions, shops and the seafront. It is freehold and offered for sale by live stream auction with a guide price of £85,000+.
The property was converted to holiday accommodation around 1988 with architect designs and consents noted; it benefits from front and rear roof dormers and a full concrete basement. EPCs for the six units range C–D. The building requires full internal refurbishment throughout — a practical blank canvas for a buyer prepared to invest in upgrading mechanicals, finishes and insulation.
This location suits investors targeting short‑stay holiday lets or a refit for longer‑term lets, given proximity to town amenities and transport. Be aware the immediate area registers high crime levels and very high deprivation indices; purchasers should factor security and management costs into budgets.
Sale details important to bidders: the property will be sold at auction (live stream) on Tuesday 21 October 2025 at 12pm. There will be no access between exchange and completion. Prospective buyers must carry out their own due diligence before bidding.
Block of apartments for sale in 21 Dale Street, Blackpool, Lancashire FY1 5BY, FY1 — £75,000 • 1 bed • 1 bath
5 bedroom block of apartments for sale in 33 Bethesda Road, Blackpool, Lanarkshire FY1 5DT, FY1 — £150,000 • 5 bed • 1 bath
Property for sale in Beaufort Avenue, Bispham, Blackpool, Lancashire, FY2 9HQ, FY2 — £300,000 • 1 bed • 1 bath • 1195 ft²
Hospitality facility for sale in 40 Woodfield Road, Blackpool, Lancashire, FY1 6AX, FY1 — £165,000 • 1 bed • 1 bath • 3972 ft²
2 bedroom block of apartments for sale in Bolton Street, Blackpool, FY1 — £60,000 • 2 bed • 2 bath • 681 ft²
Property for sale in Station Road, Blackpool, Lancashire, FY4 1EU, FY4 — £212,000 • 1 bed • 1 bath










































































