Spacious rural home with large workshop, gym and easy motorway access.
Stone-built single-storey steading conversion around paved/tarmac courtyard
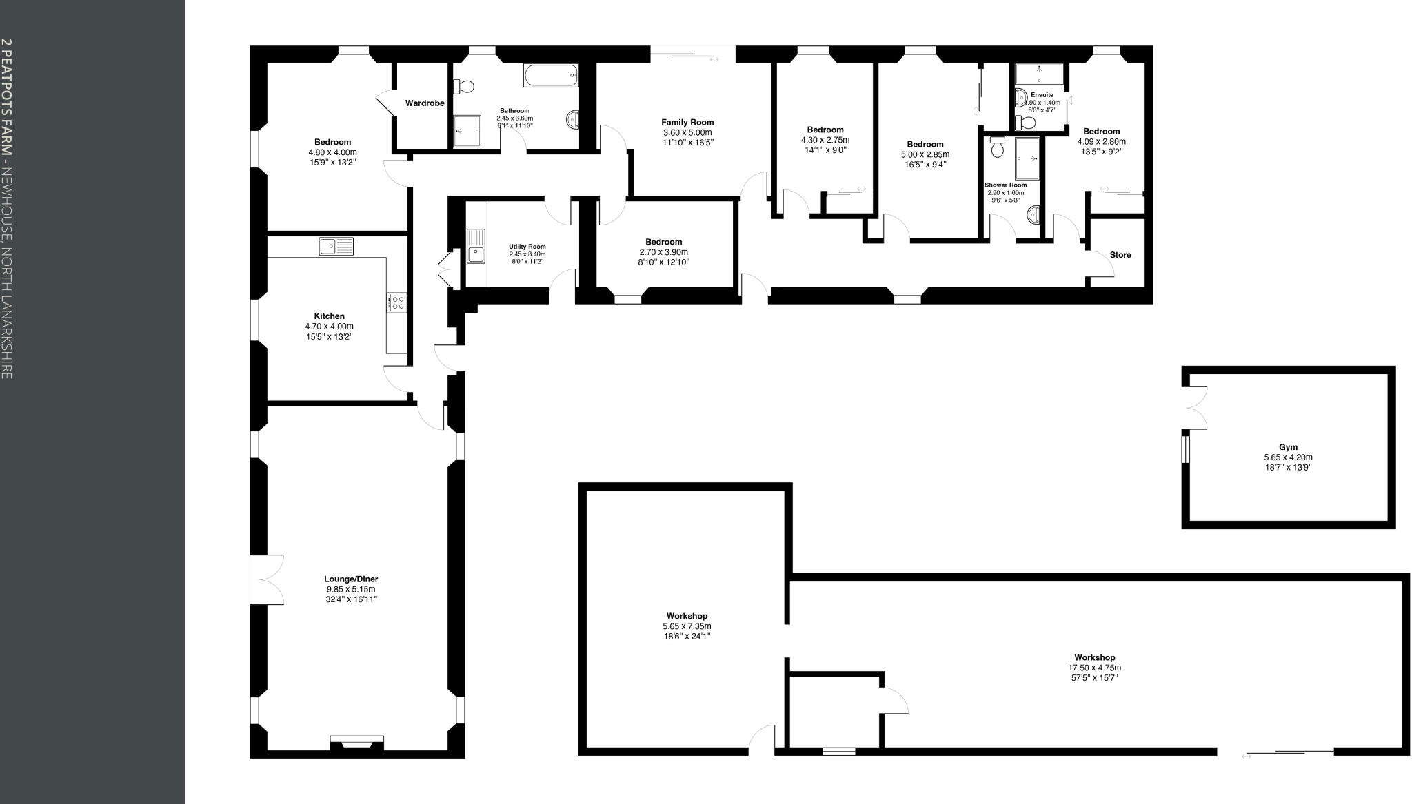
Set within a large rural plot close to the M8 corridor, this stone-built steading conversion offers single-level living with flexible space across approximately 1,913 sq ft. The property combines traditional sandstone character with contemporary open-plan living areas, a dedicated gym suite and a versatile, substantial workshop/outhouse (circa 124 sq metres) that suits trades, storage or potential ancillary uses subject to consents.
The layout includes five bedrooms and three bathrooms and a generous living/dining room with fireplace and French doors to the courtyard. Off-street parking is plentiful in the paved/tarmac yard, and mature trees and open farmland provide far-reaching countryside views. The setting will appeal to buyers seeking a low-maintenance rural home with strong road links to Motherwell, the M8 and M74.
Buyers should note material practical points: broadband speeds are slow despite excellent mobile (5G) signal, the private garden area is modest for the overall plot, and parts of the site and outbuildings may need inspection or upgrading depending on intended uses. The most creative purchasers will value the large workshop and scope for improvement, but any conversion for short-stay or commercial use will require planning and building-consent checks.
Early viewing is recommended for families or smallholding buyers who prioritise countryside privacy, flexible outbuildings and single-floor living, and who are comfortable managing a rural property with some modernization required.
3 bedroom detached house for sale in Newlands Farm, Grayshill, Cumbernauld, Glasgow, East Dunbartonshire, G68 — £600,000 • 3 bed • 1 bath • 2558 ft²
4 bedroom detached house for sale in Bathgate, West Lothian, EH48 — £950,000 • 4 bed • 3 bath • 7924 ft²
6 bedroom detached house for sale in Roughrigg Farm Road, Longriggend, Airdrie, North Lanarkshire, ML6 — £440,000 • 6 bed • 2 bath • 1917 ft²
4 bedroom semi-detached house for sale in Cumbernauld, Glasgow, North Lanarkshire, G67 — £380,000 • 4 bed • 4 bath • 1791 ft²
5 bedroom detached house for sale in Carlisle Road, Cleland, Motherwell, ML1 — £350,000 • 5 bed • 5 bath
House for sale in Hartwood Home Farm, Hartwood Road, Shotts, North Lanarkshire, ML7 — £250,000 • 1 bed • 1 bath • 3333 ft²






































































































































