Versatile country home with chalet, gym and equestrian potential near Bathgate.
Massive plot c.3.5 acres with fenced paddock
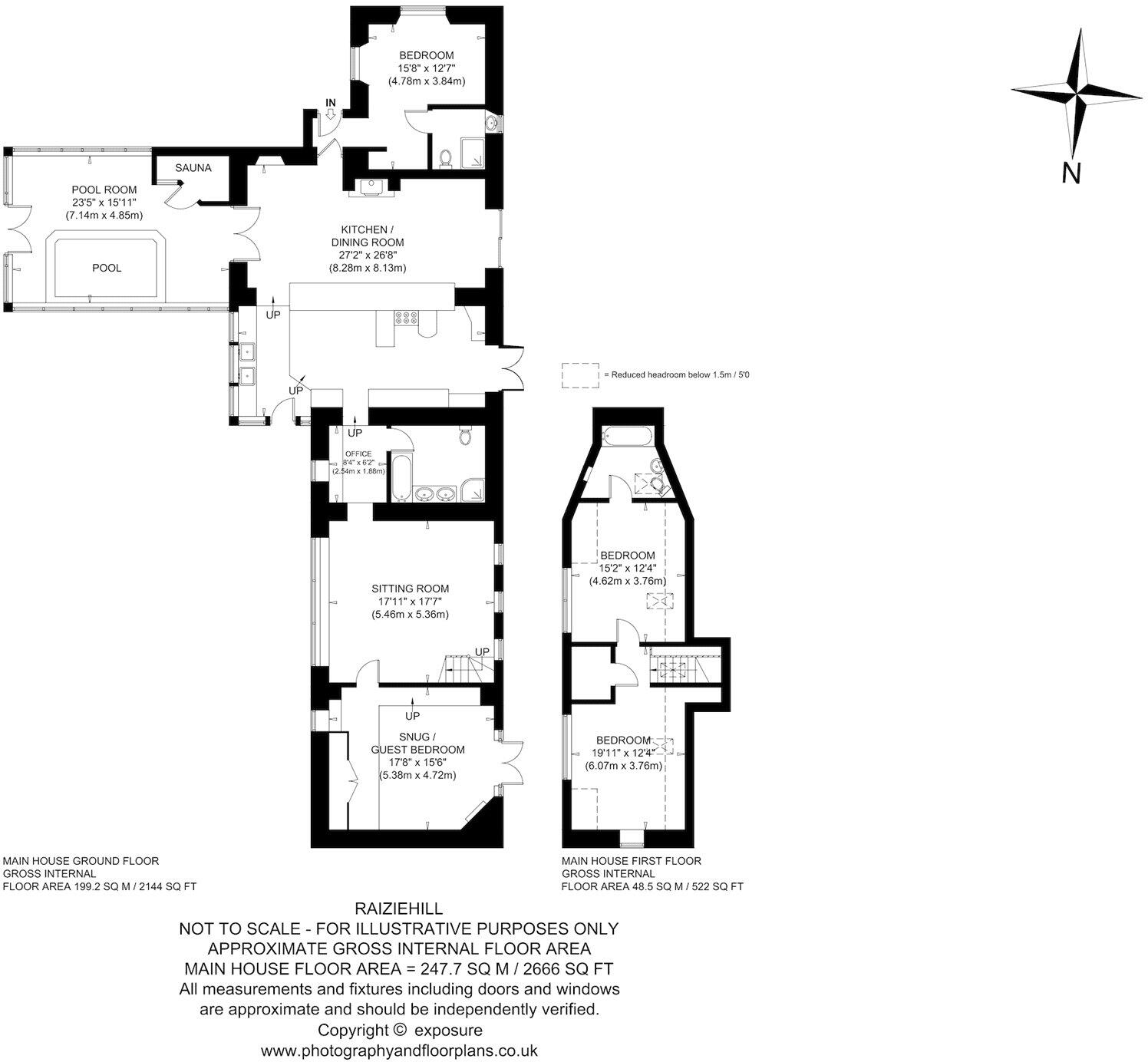
Set within about 3.5 acres of landscaped grounds and paddock, this exceptionally large detached bungalow combines rural seclusion with extensive ancillary accommodation. The single-storey main house provides flexible living spaces including an open-plan kitchen/lounge, pool room with sauna, wellness and therapy rooms, and four bedrooms including a principal suite. A self-contained chalet offers holiday-let or guest potential with two bedrooms and open-plan living.
Outbuildings include a commercial-style gym, events/storage rooms, stable and kennel, plus multiple workshop/annex rooms — useful for a small holding, hobby enterprise or multiple-income use. The site offers sweeping countryside views, gated driveway parking, and substantial outdoor space with fenced paddock and mature screening.
Buyers should note practical drawbacks: broadband speeds are very slow, the property falls in a very deprived area classification, and council tax is expensive (Band F). The size and variety of spaces will require ongoing maintenance and oversight and some rooms are configured for specific commercial/wellness use rather than conventional domestic layouts.
This home will suit a family seeking rural lifestyle plus work-from-home wellness or leisure facilities, an investor wanting holiday-let or lettable annex income, or an equestrian/hobby small-holder needing paddock and outbuildings. Its exceptional plot and flexible buildings present clear opportunity for adaptation, subject to any necessary consents.
5 bedroom detached house for sale in Rutherford Castle Green, West Linton, Scottish Borders, EH46 — £895,000 • 5 bed • 4 bath • 3387 ft²
4 bedroom bungalow for sale in 13A Humbie Holdings, Kirknewton, EH27 8DS, EH27 — £550,000 • 4 bed • 4 bath • 2185 ft²
6 bedroom detached house for sale in Craigengall Farm Crofts, Westfield, Bathgate, West Lothian, EH48 — £1,450,000 • 6 bed • 6 bath • 5763 ft²
2 bedroom detached bungalow for sale in Forrest Road, Shotts, ML7 — £300,000 • 2 bed • 1 bath • 581 ft²
3 bedroom detached house for sale in 5 Small Holdings, Sauchenford, Plean, Stirling, FK7 — £425,000 • 3 bed • 2 bath • 1357 ft²
4 bedroom detached house for sale in Forrestfield House, Airdrie, North Lanarkshire, ML6 — £425,000 • 4 bed • 1 bath • 3014 ft²


















































































































































