PH6 2NF - Hotel for sale in Former Loch Earn Hotel, St. Fillan's…

View on Property Piper

Hotel for sale in Former Loch Earn Hotel, St. Fillan's, Perthshire, PH6 2NF, PH6

Summary - St. Fillans, Loch Eil, Former Loch Ean Hotel & Brewery PH6 2NF

1 bed 1 bath Hotel

**Standout Features:**

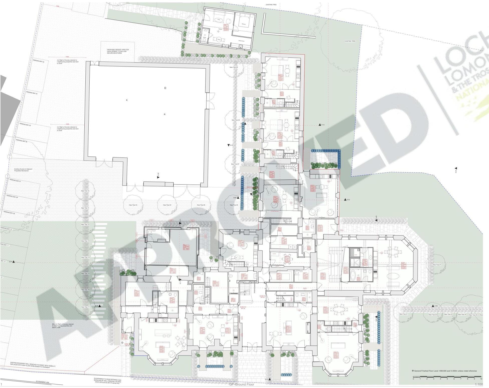
- Expansive 38-bedroom Victorian hotel
- Planning permission for conversion to 22 serviced apartments
- 10 moorings, 3 piers, and a private slipway on Loch Earn
- Large lochside beer garden with stunning views
- Freehold tenure with off-street parking
- Situated in scenic St. Fillans, close to major cities

**Summary:**
Discover the incredible potential of the Former Loch Earn Hotel, a grand Victorian property located in the picturesque village of St. Fillans, Perthshire. Ideal for developers and investors, this spacious hotel boasts 38 bedrooms and has recently received planning permission for conversion into 22 serviced apartments, creating an exciting opportunity for lucrative holiday rentals or residential use. The property is further enhanced by a large lochside beer garden, perfect for attracting tourists and locals alike with its breathtaking views of Loch Earn.

The hotel includes valuable waterfront features such as 10 moorings, three piers, and a private slipway, appealing to leisure seekers and water sports enthusiasts. While it requires significant renovation, the expansive square footage of over 19,000 sq ft offers flexibility for future developments. Situated within Scotland's stunning Loch Lomond and The Trossachs National Park, the property promises not only a serene setting but also a vibrant community, especially during the tourist season. Don't miss this rare opportunity to transform a classic property into a thriving venture—invest in your future today!

Property Details

Brochure Descriptions

Image Descriptions

Floorplan Description

Rooms

Textual Property Features

Detected Visual Features

Nearest Bars And Restaurants

,,,,}

Nearest General Shops

,,}

Nearest Grocery shops

,,}

Nearest Supermarkets

,,}

Nearest Religious buildings

,,}

Nearest Medical buildings

,,,}

Nearest Leisure Facilities

,,,,}

Nearest Tourist attractions

,,}

Nearest Train stations

,,,,}

Nearest Bus stations and stops

,,,,}

Nearest Hotels

,,}

Tags

Local Market Stats

AirBnB Data

Similar Properties

Meta

High Res Images

Compatible Images

Low res Images

Thumbnails

Raw Images

High Res Floorplan Images

Compatible Floorplan Images

Low res Floorplan Images

FloorplanImages Thumbnail

Raw Floorplan Images