Large, well-equipped apartment with garage and secure gated access.
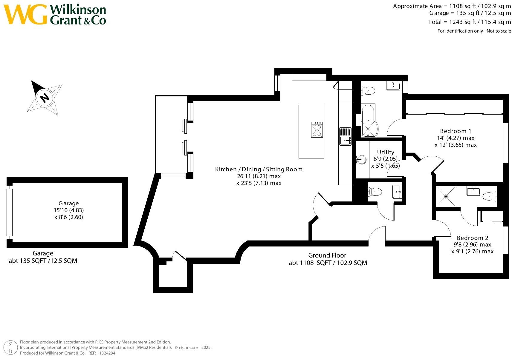
Spacious 1108 sq ft two-bed apartment with open-plan living and balcony
Both double bedrooms include en-suites and built-in wardrobes
Private garage plus allocated parking space directly outside
Share of freehold with a very long 981-year lease
Secure gated development with landscaped communal areas
Built 2003–2006; double glazing and mains gas boiler/heating
Local area: cosmopolitan student neighbourhood with very high crime
Broadband speeds reported as slow — check service needs locally
Bright, well-proportioned and ready to move into, this two-bedroom apartment offers generous living space in a contemporary block close to central Exeter. The open-plan kitchen/living area opens onto a balcony, creating a light-filled social hub for everyday life and entertaining. Both double bedrooms have en‑suites and built-in wardrobes, giving comfortable private space for two occupants or a home office and guest room. Practical extras include a separate utility room, useful storage cupboards and a private garage with an allocated parking space.
Ownership is straightforward: share of freehold with a very long lease (981 years). The development was built in the early 2000s and benefits from modern double glazing, mains gas boiler and radiator heating. The property suits buyers looking for a low‑maintenance, roomy apartment with secure gated access and easy access to the city centre, hospital, university and local shops on Magdalen Road.
Buyers should note important local and technical limitations. The immediate neighbourhood is classified as a cosmopolitan student area with very high recorded crime and a high level of local deprivation, which may affect resale prospects and day-to-day tranquillity. Broadband speeds are reported as slow in this location. There is no flood risk, but prospective purchasers should satisfy themselves about communal maintenance responsibilities and any service charges.
Overall this apartment presents strong practical advantages—size, layout, garage and long lease—balanced by local area factors that will particularly matter to families or those seeking a quiet, high‑value neighbourhood. For buyers prioritising space and convenient city living, it’s a compelling option; for those needing fast broadband or a very low-crime setting, the location could be a compromise.
1 bedroom flat for sale in Veale Drive, Exeter, EX2 — £189,000 • 1 bed • 1 bath • 459 ft²
2 bedroom flat for sale in 2 Barnfield Gate, Exeter, EX1 — £400,000 • 2 bed • 2 bath • 798 ft²
2 bedroom apartment for sale in Constantine House, New North Road, Exeter, Devon, EX4 — £220,000 • 2 bed • 2 bath • 851 ft²
2 bedroom apartment for sale in Barton Road, Exeter, EX2 — £350,000 • 2 bed • 2 bath • 1558 ft²
2 bedroom bungalow for sale in Magdalen Road, St Leonards, Exeter, EX2 — £600,000 • 2 bed • 2 bath • 1191 ft²
2 bedroom flat for sale in Dean Clarke House, Southernhay East, Exeter, Devon, EX1 — £500,000 • 2 bed • 2 bath • 1076 ft²






















































