Bright first-floor apartment with concierge, cooling and long lease near major transport links.
Exceptional long lease (965 years)
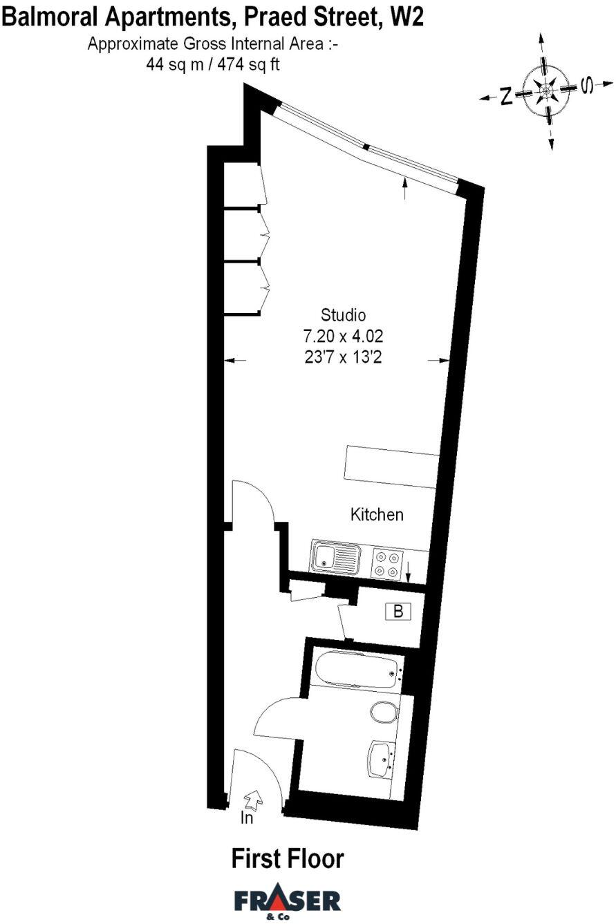
This exceptionally large studio sits on the first floor of Balmoral Apartments, a modern development built c.2003–2006. The open-plan layout, full-height window and comfort cooling create a bright, efficient living space suited to a single occupant or professional city base. Residents benefit from lift access and a 24-hour concierge.
Transport is a major strength: Paddington Station (including Elizabeth Line and Heathrow Express) is within easy walking distance, with Lancaster Gate and Edgware Road also nearby. Hyde Park, Regent’s Canal and Oxford Street are close by, supporting both lifestyle and rental demand.
Practical points to note: the property is leasehold with an exceptionally long lease (965 years) and a small ground rent (£150). Heating is warm-air electric; broadband speeds are reported very slow. There is no private outdoor space and the local recorded crime level is very high — important considerations for owner-occupiers and tenants.
Overall this is a well-presented central London studio with clear investment or pied-à-terre appeal. It offers immediate access to transport and amenities but expect limited outside space, slow internet, and local area safety trade-offs when comparing alternatives.
Studio apartment for sale in Edgware Road, London, W2 — £300,000 • 1 bed • 1 bath
Studio flat for sale in Balmoral Apartments, Paddington, W2 — £529,995 • 1 bed • 1 bath • 554 ft²
Studio flat for sale in Sheldon Square, London, W2, W2 — £390,000 • 1 bed • 1 bath • 409 ft²
1 bedroom flat for sale in South Wharf Road, London, W2 — £450,000 • 1 bed • 1 bath • 446 ft²
Studio flat for sale in South Wharf Road, W2 — £499,950 • 1 bed • 1 bath • 450 ft²
2 bedroom apartment for sale in Praed Street, London, W2 — £785,000 • 2 bed • 2 bath • 611 ft²










































