Move-in ready central London studio with long lease and concierge services.
- Newly renovated studio with waterside Paddington Basin outlook
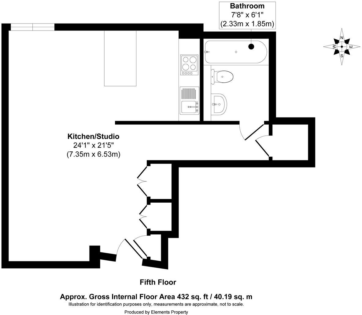
- Approx. 450 sqft (42.5 sqm); efficient open-plan layout
- 900+ year lease; sold with no onward chain
- 24-hour concierge, lift access and secure entrance
- Excellent transport links: Paddington and Edgware Road nearby
- Heating via electric room heaters (no central heating)
- Broadband speeds reported as very slow locally
- Local area: higher crime rates and above-average council tax
A newly renovated studio apartment on the fifth floor of the West End Quay development, overlooking Paddington Basin. The open-plan living space includes a fitted kitchen with an island, built-in storage and a modern bathroom — all presented in move-in condition and sold with no onward chain. The development offers a 24-hour concierge, lift access and a secure communal entrance for added convenience and peace of mind.
This compact 450 sqft apartment is best suited to first-time buyers, city workers or buy-to-let investors seeking a low-maintenance central London base close to transport hubs. Paddington and Edgware Road stations are within easy walking distance, with Heathrow Express and the Elizabeth Line nearby. The waterside aspect and communal landscaped areas add a quieter, attractive outlook in an otherwise busy location.
Buyers should note practical limitations: heating is by electric room heaters rather than a communal system, broadband speeds are reported as very slow, and the local area records higher crime and some deprivation indicators. Council tax is above average and a small ground rent of £150 applies. These factors affect running costs and suitability for some buyers.
Overall this is a well-presented, long-lease studio with strong central location credentials and immediate rental or owner-occupier appeal, provided you accept the listed service and area limitations.
1 bedroom flat for sale in South Wharf Road, London, W2 — £450,000 • 1 bed • 1 bath • 446 ft²
1 bedroom flat for sale in South Wharf Road, London, W2 — £575,000 • 1 bed • 1 bath • 496 ft²
1 bedroom flat for sale in 1 South Wharf Road, London, W2 — £599,000 • 1 bed • 1 bath • 570 ft²
1 bedroom apartment for sale in South Wharf Road, Paddington, W2 — £500,000 • 1 bed • 1 bath • 446 ft²
1 bedroom flat for sale in South Wharf Road, London, W2 — £575,000 • 1 bed • 1 bath • 473 ft²
1 bedroom apartment for sale in Newcastle Place, Paddington, W2 — £675,000 • 1 bed • 1 bath • 454 ft²


























