Large southerly garden and multi-vehicle driveway in tucked-away location.
Three generous double bedrooms throughout the chalet layout
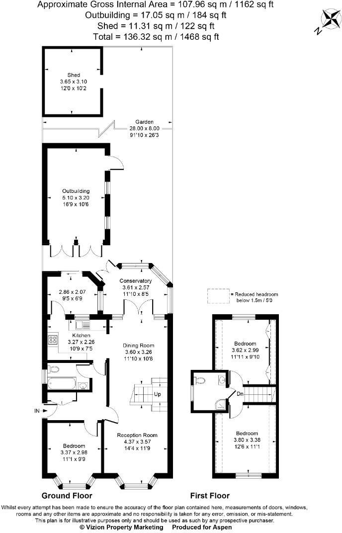
This immaculately presented three-double-bedroom chalet provides a flexible, family-focused layout close to Ashford’s well-regarded schools, shops and parks. The house is light and airy with two conservatories (one fitted with a utility area), an open-plan dining/living arrangement and bathrooms on both floors for everyday convenience.
Outside, the property stands out for its large southerly-facing rear garden and substantial forecourt with a wide driveway offering parking for multiple vehicles. A detached garage has been converted into a useful extra room—ideal as a home office, gym or playroom—adding practical space for modern family life.
Practical facts to note: the home is freehold, double glazed (upgraded since 2002), on mains gas central heating and sits in a low-crime, very affluent neighbourhood with fast broadband and excellent mobile signal. The plot offers scope to enhance or extend (subject to planning) if additional living space is required.
Important considerations: the property’s original solid brick walls are assumed to have no cavity insulation, which may affect energy efficiency and running costs. The overall internal footprint is modest (around 901 sq ft), so families requiring very large internal room sizes should view to confirm suitability. Any use of the converted garage should be checked for approvals if planning/building compliance is required.
3 bedroom chalet for sale in Sandells Avenue, Ashford, TW15 — £550,000 • 3 bed • 1 bath • 1085 ft²
5 bedroom bungalow for sale in Wrens Avenue, Ashford, Greater London, TW15 — £550,000 • 5 bed • 3 bath • 1443 ft²
3 bedroom semi-detached house for sale in Denman Drive, Ashford, TW15 — £475,000 • 3 bed • 1 bath • 1008 ft²
3 bedroom semi-detached bungalow for sale in Village Way, Ashford, TW15 — £650,000 • 3 bed • 2 bath • 1626 ft²
3 bedroom detached house for sale in Tennyson Road, Ashford, TW15 — £650,000 • 3 bed • 2 bath • 1389 ft²
4 bedroom semi-detached bungalow for sale in Caroline Court, Denman Drive, Ashford, TW15 — £605,000 • 4 bed • 2 bath • 1739 ft²


































































