Ready-to-move family home near hospitals and top-rated schools.
Three bedrooms with average-sized rooms
No onward chain — vacant possession available
Garage plus off-street parking for convenience
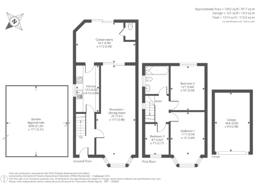
Conservatory opening to a decent rear garden
Single bathroom only; one WC downstairs
Double glazing fitted before 2002 may need updating
Close to John Radcliffe Hospital and good schools
Fast broadband, excellent mobile signal, low crime
Quietly set on a popular Marston side road, this three-bedroom semi-detached house offers a practical family layout and immediate availability with no onward chain. The ground floor includes a lounge, dining area, downstairs WC and conservatory that opens onto a decent rear garden — useful for outdoor play and summer entertaining. Off-street parking and a garage add everyday convenience for commuters and families with cars.
The property sits close to John Radcliffe Hospital, several well-rated schools and regular bus routes into Oxford and the A40/M40 corridor, making it a strong choice for professionals and parents. Gas central heating with a boiler and radiators provides reliable warmth; broadband speeds are fast and mobile signal is excellent, supporting hybrid working.
Built in the late 1960s/early 1970s, the house has character typical of that era but also some features that may benefit from updating: the glazing was installed before 2002 and may not meet modern standards, and there is a single bathroom for three bedrooms. The overall size and room proportions are average, offering good potential for modest refurbishment to increase comfort and market value.
3 bedroom semi-detached house for sale in Mill Lane, Marston, OX3 — £650,000 • 3 bed • 2 bath • 1674 ft²
3 bedroom semi-detached house for sale in Marston, Oxford, OX3 — £400,000 • 3 bed • 1 bath • 739 ft²
3 bedroom terraced house for sale in Bowness Avenue, Marston, OX3 — £575,000 • 3 bed • 1 bath • 1258 ft²
3 bedroom semi-detached house for sale in Marston, Oxford, OX3 — £675,000 • 3 bed • 1 bath • 964 ft²
3 bedroom semi-detached house for sale in Arlington Drive, Marston, Oxford, OX3 — £525,000 • 3 bed • 1 bath • 948 ft²
3 bedroom semi-detached house for sale in Marston, Oxford, OX3 — £475,000 • 3 bed • 1 bath • 903 ft²


















































































