Period charm with porter, lift and communal garden near top schools.
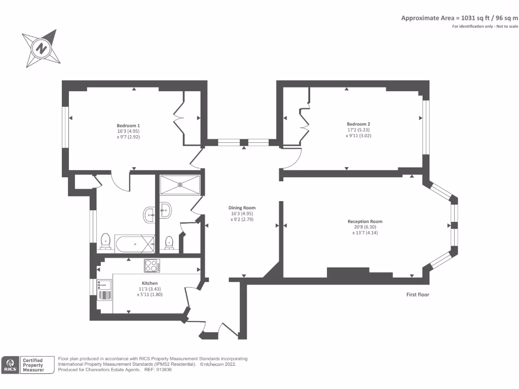
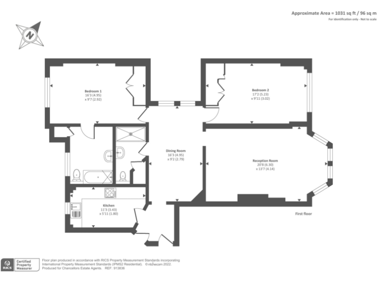
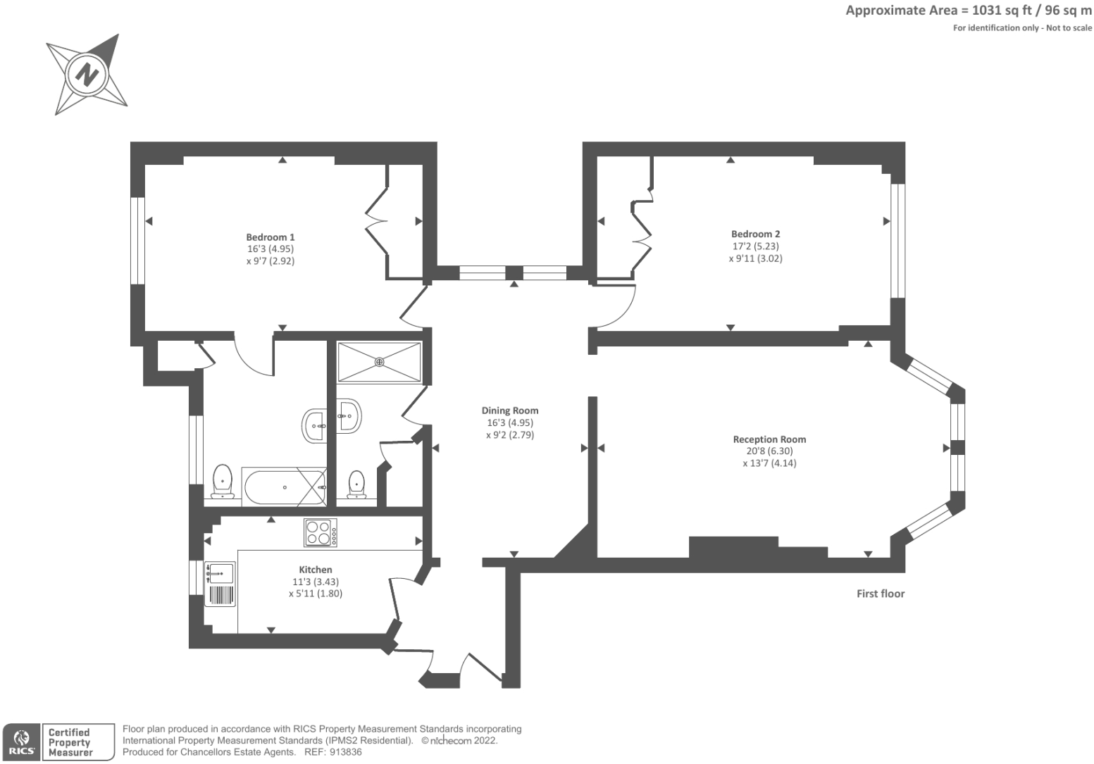
Large two-bedroom flat, approximately 1,031 sq ft
Set on the first floor of a sought-after portered block on Abbey Road, this spacious two-bedroom apartment combines period charm with contemporary living. At around 1,031 sq ft the flat offers generous reception space, a separate dining hall and two bathrooms — useful for families or sharers. The long lease (999 years from 1969, c.943 years remaining), lift access, porterage, entryphone and communal garden add practical comfort and security.
The property sits next to the iconic EMI studios and the famous zebra crossing, placing cafés, restaurants and excellent schools within easy reach. Heating is by mains-gas boiler and radiators; there is no recorded flooding risk and mobile and broadband connectivity are strong, making the flat well suited to professionals and families who need reliable links.
Buyers should note a few practical points: the building dates from c.1900–1929 and walls are presumed solid brick with no insulation, glazing details are not defined, and council tax is described as quite expensive. These are typical of older London buildings and may prompt upgrading for improved efficiency.
Overall this is a roomy, characterful apartment in a prime St John’s Wood location with porterage and communal grounds — an appealing choice for those seeking space, convenience and long-term ownership on a substantial lease.
2 bedroom apartment for sale in Abbey House, 1a Abbey Road, St John's Wood, London, NW8 — £1,100,000 • 2 bed • 2 bath • 977 ft²
2 bedroom apartment for sale in Abbey Road, St John's Wood, London, NW8 — £1,100,000 • 2 bed • 2 bath • 1037 ft²
3 bedroom flat for sale in Manor Apartments, Abbey Road, St John's Wood NW8 — £1,250,000 • 3 bed • 3 bath • 1134 ft²
3 bedroom apartment for sale in Neville Court, Abbey Road, St John's Wood, London, NW8 — £2,250,000 • 3 bed • 3 bath • 1875 ft²
1 bedroom flat for sale in Abbey Road, NW8, St John's Wood, London, NW8 — £485,000 • 1 bed • 1 bath • 410 ft²
1 bedroom apartment for sale in Langford Court, Abbey Road, St John's Wood, London, NW8 — £530,000 • 1 bed • 1 bath • 440 ft²






































