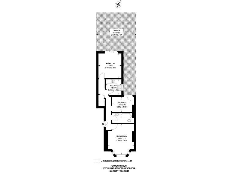
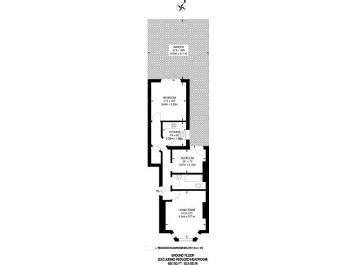
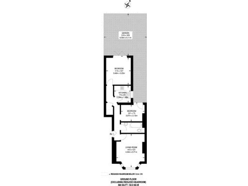
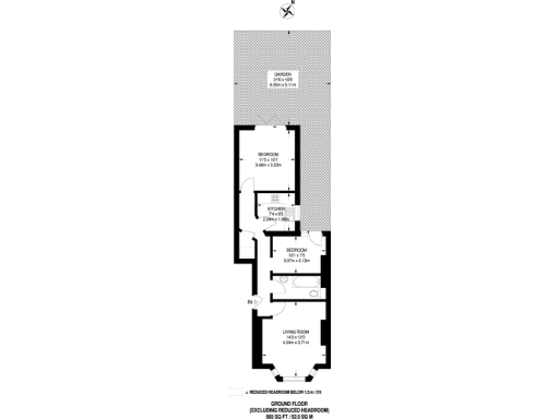
Ground-floor home with private garden and newly refurbished interiors.
Private rear garden accessible from main bedroom
This recently refurbished ground-floor home offers bright, neutral interiors and the rare benefit of a private rear garden. High ceilings and a bay-windowed reception room create a sense of space despite a compact overall footprint. The main bedroom opens directly onto the garden, and the separate fitted kitchen and contemporary bathroom complete a practical layout for daily living.
The flat is well placed for local amenities on Harlesden High Street and for green space at Roundwood Park. Harlesden station provides local rail links, and a mix of well-regarded primary and secondary schools are within reach, which will appeal to buyers looking to settle or rent to families.
Buyers should note the property is a small 565 sq ft leasehold flat with 117 years remaining. The wider area records high crime levels and significant deprivation; purchasers should consider local safety and community factors when viewing. Overall, this is an affordable, move-in-ready option for a first-time buyer wanting a stylish home with outdoor space close to local transport and schools.
2 bedroom apartment for sale in Tunley Road, Harlesden, London, NW10 — £350,000 • 2 bed • 1 bath • 612 ft²
2 bedroom flat for sale in Drayton Road, Willesden, London, NW10 — £450,000 • 2 bed • 1 bath • 815 ft²
2 bedroom flat for sale in Charlton Road, Harlesden, London, NW10 — £339,950 • 2 bed • 1 bath • 508 ft²
3 bedroom flat for sale in Drayton Road, Harlesden, London, NW10 — £525,000 • 3 bed • 1 bath • 879 ft²
2 bedroom flat for sale in Tunley Road, London, NW10 — £350,000 • 2 bed • 1 bath • 636 ft²
2 bedroom house for sale in Mint Avenue, Harlesden, London, NW10 — £500,000 • 2 bed • 1 bath • 784 ft²






















































































































































































































