NW10 4EL - 3 bed garden floor family flat in Drayton Road, NW10 4EL

View on Property Piper

3 bedroom flat for sale in Drayton Road, Harlesden, London, NW10

Summary - 12 DRAYTON ROAD LONDON NW10 4EL

3 bed 1 bath Flat

Spacious three-bedroom with private outdoor space steps from Roundwood Park.
Three good-sized bedrooms with high ceilings and original character
Extended open-plan reception room leading to private garden
Contemporary eat-in kitchen with island and skylight
Single family bathroom; may need reconfiguration for larger families
Leasehold tenure — check remaining term and service charges
Built 1930s: solid brick walls likely uninsulated (energy upgrading needed)
Double glazing installed before 2002 — may benefit from replacement
Above-average local crime and higher area deprivation to consider
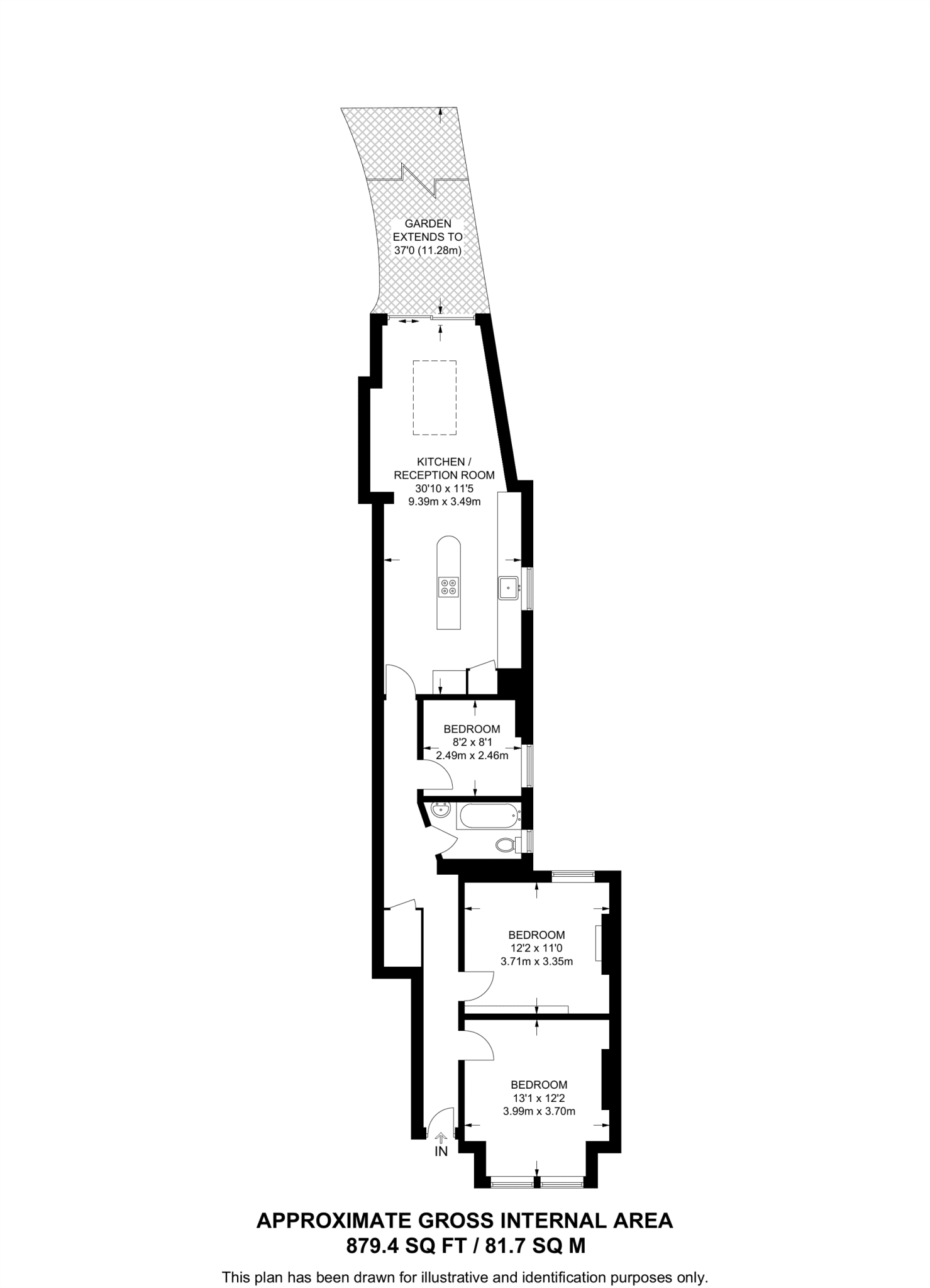
This three-bedroom ground-floor flat combines period character with contemporary living for family buyers seeking outdoor space in Harlesden. The property offers a generous extended open-plan reception and a modern eat-in kitchen with an island and skylight that opens directly onto a private garden — ideal for family dining and play.

Bedrooms are well-proportioned with high ceilings and original features in at least one room, although some decorative updating would enhance the space. Accommodation is arranged linearly across approximately 879 sq ft with a single family bathroom, so families may wish to consider reconfiguring layouts to add a second bathroom or en-suite.

Practical considerations: the building dates from the 1930s with solid brick walls likely lacking insulation, and the double glazing was installed before 2002. The flat is leasehold. Local area strengths include excellent mobile signal, nearby Roundwood Park, a range of shops and transport links at Harlesden station. Note the neighbourhood records above-average crime and higher deprivation, which should be weighed against the property’s size, garden and potential for value-adding upgrades.

Property Details

Image Descriptions

Floorplan Description

Rooms

Textual Property Features

Target Audience

AI Tags

Detected Visual Features

EPC Details

Nearby Schools

Nearest Bars And Restaurants

,,,,}

Nearest General Shops

,,}

Nearest Grocery shops

,,}

Nearest Supermarkets

,,}

Nearest Religious buildings

,,}

Nearest Medical buildings

,,,}

Nearest Airports

,}

Nearest Leisure Facilities

,,,,}

Nearest Tourist attractions

,,}

Nearest Train stations

,,,,}

Nearest Bus stations and stops

,,,,}

Nearest Hotels

,,}

Tags

Local Market Stats

AirBnB Data

Similar Properties

Meta

High Res Images

Compatible Images

Low res Images

Thumbnails

Raw Images

High Res Floorplan Images

Compatible Floorplan Images

Low res Floorplan Images

FloorplanImages Thumbnail

Raw Floorplan Images