Compact, characterful home with long lease and private outdoor space.
Two double bedrooms in a ground-floor Victorian garden flat
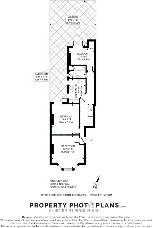
A compact, well-presented two double bedroom ground-floor flat set within a maintained Victorian terrace. The apartment benefits from original period character, a private garden and recent improvements, creating a move-in-ready home for a first-time buyer or investor seeking rental potential.
Practical positives include a long lease (110 years remaining), low annual ground rent (£100) and good digital connectivity with fast broadband and excellent mobile signal. The private garden is a standout for this location — a quiet outdoor space for children, pets or entertaining and potential to extend subject to consent.
Buyers should note the property is small at around 612 sq ft and sits in an area with higher crime levels and marked deprivation; local surroundings are vibrant with many shops, cafés and transport links into central London. There are also signs that parts of this period property may require careful inspection for damp or other typical Victorian maintenance issues.
Overall this is a practical, characterful flat that suits a first-time buyer or investor prepared to accept compact living and an urban setting in exchange for garden access, a long lease and low running costs.
2 bedroom flat for sale in Tunley Road, London, NW10 — £350,000 • 2 bed • 1 bath • 636 ft²
2 bedroom house for sale in Mint Avenue, Harlesden, London, NW10 — £500,000 • 2 bed • 1 bath • 784 ft²
2 bedroom flat for sale in Nightingale Road, London, NW10 — £475,000 • 2 bed • 1 bath • 768 ft²
2 bedroom flat for sale in Tunley Road, NW10, Harlesden, London, NW10 — £350,000 • 2 bed • 1 bath • 565 ft²
2 bedroom flat for sale in Drayton Road, Harlesden, NW10 — £450,000 • 2 bed • 1 bath • 741 ft²
2 bedroom flat for sale in Charlton Road, Harlesden, NW10 — £330,000 • 2 bed • 1 bath • 465 ft²










































