**Standout Features:**
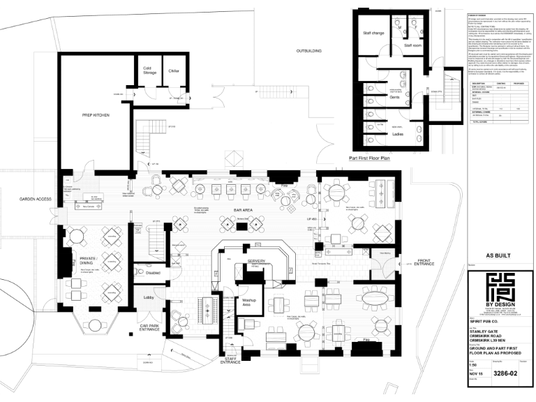
- Large two-storey detached pub with a rich history, originally built as a farmhouse in 1900.
- Currently configured for food service with an open plan layout, accommodating approximately 110 covers.
- Well-equipped catering kitchen and an attractive beer garden/patio with seating for 36.
- On-site car park with up to 73 spaces.
- Three-bedroom private flat above the pub, perfect for owner residence or staff accommodation.
- Freehold tenure with a very large plot size and ample opportunities for renovation or extension.
**Summary:**
This impressive freehold pub, located on Stanley Gate in Ormskirk, offers a unique investment opportunity in a rural setting. Encompassing over 8,000 square feet, the property features a spacious open-plan trading area, capable of hosting around 110 diners, along with a well-equipped kitchen ideal for a destination food house. The charming beer garden provides an inviting outdoor space, complemented by plenty of off-street parking.
While the surrounding area has average amenities and crime rates, it boasts access to several highly-rated primary schools, making it attractive for families. The property includes a three-bedroom residential flat on the upper level, offering privacy and convenience for the owner, or potential rental income. Given its historic character and expansive outdoor space, this pub presents substantial renovation potential, perfect for innovative owners eager to develop its charm further. Don’t miss out on this opportunity to own a piece of history. Act fast — properties like this are scarce!
Pub for sale in NW-423914 - Royal Oak, Riley Green, Preston PR5 0SL, PR5 — £150,000 • 1 bed • 1 bath
High street retail property for sale in Gidlow Lane, Wigan, WN6 7DY, WN6 — £750,000 • 1 bed • 1 bath • 5200 ft²
Pub for sale in NW-524606 - 49 King Street, ., Wigan WN1 1DY, WN1 — £550,000 • 1 bed • 1 bath • 14165 ft²
Pub for sale in NW-423947 - Buzzby's American Dive Bar, 52 Westfield Street, St Helens WA10 1QJ, WA10 — £225,000 • 1 bed • 1 bath • 4057 ft²
Restaurant for sale in 1043 Bury Road, Bolton, North West, BL2 — £385,000 • 1 bed • 1 bath • 4000 ft²
Pub for sale in Skelmersdale Wardens Social Club, 244 Blaguegate Lane, Lathom, Skelmersdale, WN8 8TX, WN8 — £195,000 • 1 bed • 1 bath • 17860 ft²






















































