Large Victorian-style family house with passed planning and strong development potential..
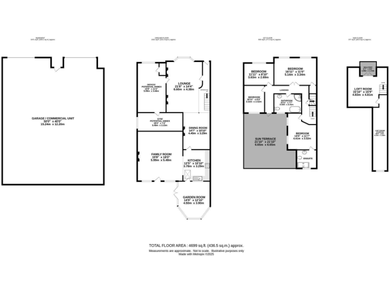
Circa 4,699 sq ft of flexible, character-filled living space
Plans passed to convert garage to 2-bed bungalow (ref 19/00953/FUL)
Passed plans also allow redevelopment into three apartments
Excellent parking: long gravel driveway, ample off-street spaces
Large 50' x 40' garage/commercial unit with development potential
Property needs renovation; some rooms require finishing works
First-floor sun terrace, loft balcony and generous outdoor space
Council tax level described as expensive
Park View is a substantial period semi-detached home on a large plot in Kelvedon Hatch, offering flexible space across multiple levels and a rare oversized garage/commercial unit. The house retains character features including bay windows, ornate fireplaces and a freestanding roll-top bath, while more recent additions such as a conservatory and a large first-floor sun terrace add usable family living and outdoor entertaining space.
The property is sold freehold and presents clear development upside. Plans (Brentwood Council ref 19/00953/FUL) have been approved to convert the rear garage/commercial unit into a separate two-bedroom bungalow and to redevelop the main property into three self-contained apartments. For buyers seeking a family home, there is also practical scope to create an annex from existing ground-floor rooms, subject to finishing works and any necessary consents.
Important practical points: the house is large (circa 4,699 sq ft) but needs renovation and some rooms require finishing — notably an en-suite shower and parts of the ground-floor annex area. Council tax is described as expensive and the property’s scale and renovation requirements should be considered when budgeting. Parking is excellent with a long gravel driveway and ample off-street spaces.
Located in a quiet hamlet setting with good access to Brentwood and Shenfield town centres, fast broadband and strong mobile signal, Park View will suit purchasers seeking countryside privacy with commuter convenience. It will particularly appeal to buyers wanting a character home with development potential — whether to personalise as a generous family residence or to pursue the passed planning for additional dwellings.
3 bedroom detached house for sale in Stocksfield, Kelvedon Hatch, Brentwood, CM15 — £750,000 • 3 bed • 2 bath • 1998 ft²
3 bedroom semi-detached house for sale in Matchingfield, Kelvedon Hatch, Brentwood., CM15 — £550,000 • 3 bed • 2 bath • 1284 ft²
4 bedroom detached house for sale in Church Lane, Doddinghurst, Brentwood, CM15 — £775,000 • 4 bed • 2 bath • 1833 ft²
4 bedroom link detached house for sale in Horseman Court, Kelvedon Hatch, Brentwood, CM15 — £550,000 • 4 bed • 1 bath • 1171 ft²
4 bedroom detached house for sale in Roding Drive, Kelvedon Hatch, Brentwood, CM15 — £570,000 • 4 bed • 1 bath • 1386 ft²
4 bedroom semi-detached house for sale in Blackmore Road, Kelvedon Hatch, Nr Brentwood, CM15 — £600,000 • 4 bed • 2 bath • 1797 ft²


















































































