High-spec large-format units ideal for national distribution and fleet operators.
8–12m internal eaves height for high-bay racking and mezzanine options
Dock-level and ground-level loading doors for flexible operations
Secure yards 35–55m depth, suitable for HGV manoeuvring and marshalling
Power supply up to 1.6 MVA; heavy electrical loading supported
50 kN/m² floor loading — suitable for racking and industrial plant
Available Q4 2026; lead time required before occupation
Local broadband speeds slow; consider private connectivity solutions
Area classified as deprived with above-average crime; factor security costs
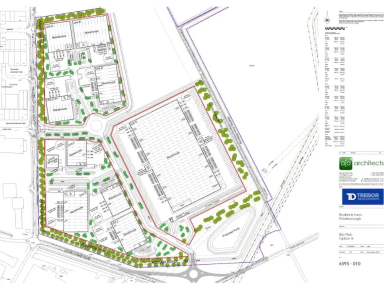
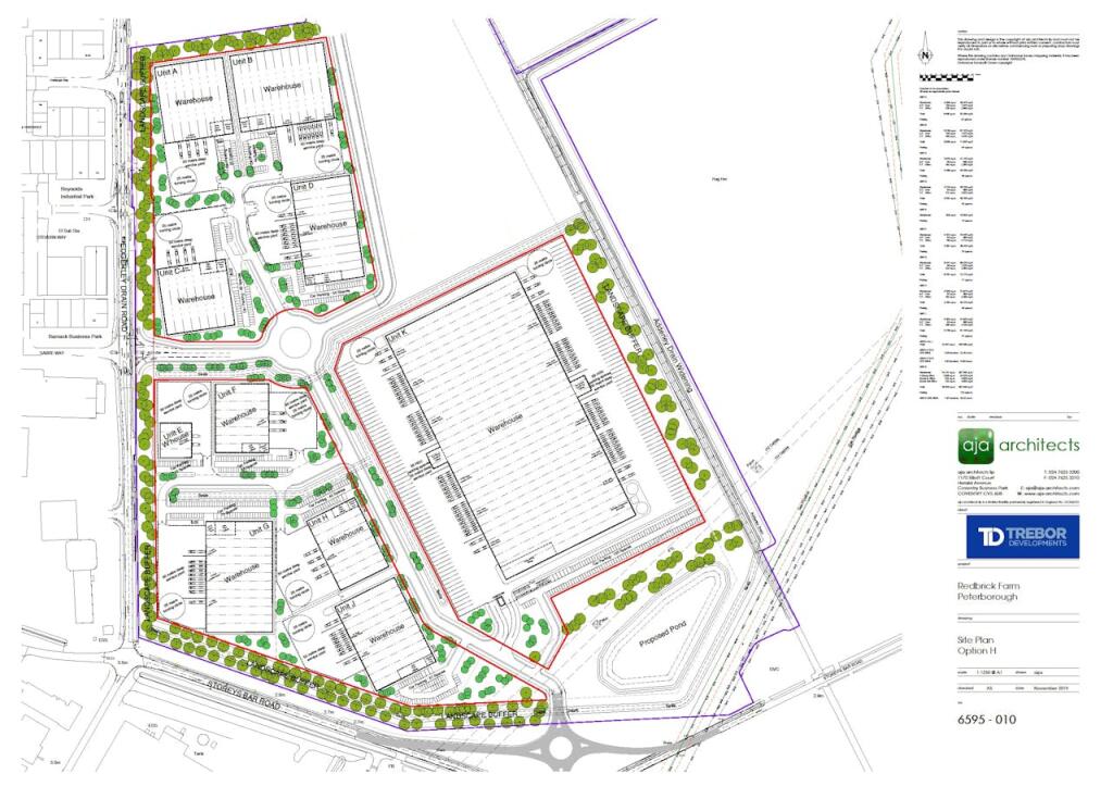
This new industrial park at Flagship Park, Edgerley Drain Road, delivers large, high-spec warehouse capacity designed for logistics and distribution operators and investors seeking long-term operational scale. The development offers flexible unit sizes, generous yard depths and loaded floor specifications that suit racked storage, bulk handling and multi‑vehicle operations. Available from Q4 2026, the scheme benefits from strong road and rail connectivity, including easy access to the A1139, A1(M) and a 45‑minute rail link to London Kings Cross.
Specification is a clear strength: 8–12m eaves, dock and ground-level loading doors, secure yards of 35–55m depth, 50 kN/m² floor loading and power provision up to 1.6 MVA. Fully fitted first‑floor offices and modern park infrastructure make units ready for immediate occupation with minimal fit-out for office functions. Freehold sales may be considered and the units will also be offered on new leases; VAT will be payable in addition to rent and service charge.
Buyers should note a few material considerations. Availability is Q4 2026, so occupiers needing immediate space should allow lead time. Local broadband speeds are reported slow, which may affect high-bandwidth operations without alternative connectivity. The surrounding area is classified as deprived with above-average crime statistics; site security and insurance costs should be factored into operating budgets. Business rates will be assessed on completion and each party is to bear their own legal costs.
For investors and occupiers targeting distribution, fulfilment or large-scale light industrial uses, this park offers significant scale, modern technical capacity and transport links that support national distribution. The combination of large plot sizes and high specification floorspace makes the development suitable for fleet operations, automated racking and multi‑door logistics workflows.
Light industrial facility for sale in Flagship Park North, Peterborough, PE1 5YS, PE1 — POA • 1 bed • 1 bath
Storage facility for sale in Unit 1, The Broadlands, Newark Road, Peterborough, PE1 5WJ, PE1 — POA • 1 bed • 1 bath
Light industrial facility for sale in Unit 1, The Broadlands, Newark Road, Peterborough, PE1 5WG, PE1 — POA • 1 bed • 1 bath • 1592 ft²
Light industrial facility for sale in Padholme Road, Peterborough, PE1 5XL, PE1 — £3,500,000 • 1 bed • 1 bath
Warehouse for sale in Units 20-21 Enterprise Way, Enterprise Park, Yaxley, Peterborough, PE7 3WY, PE7 — £378,500 • 1 bed • 1 bath • 4643 ft²
Light industrial facility for sale in Witham Court, Enterprise Way, Yaxley, Peterborough, PE7 3GU, PE7 — £186,500 • 1 bed • 1 bath • 4000 ft²






















