High-spec, low-maintenance home with garage and fast connectivity.
New-build 4-bedroom detached chalet-style family home
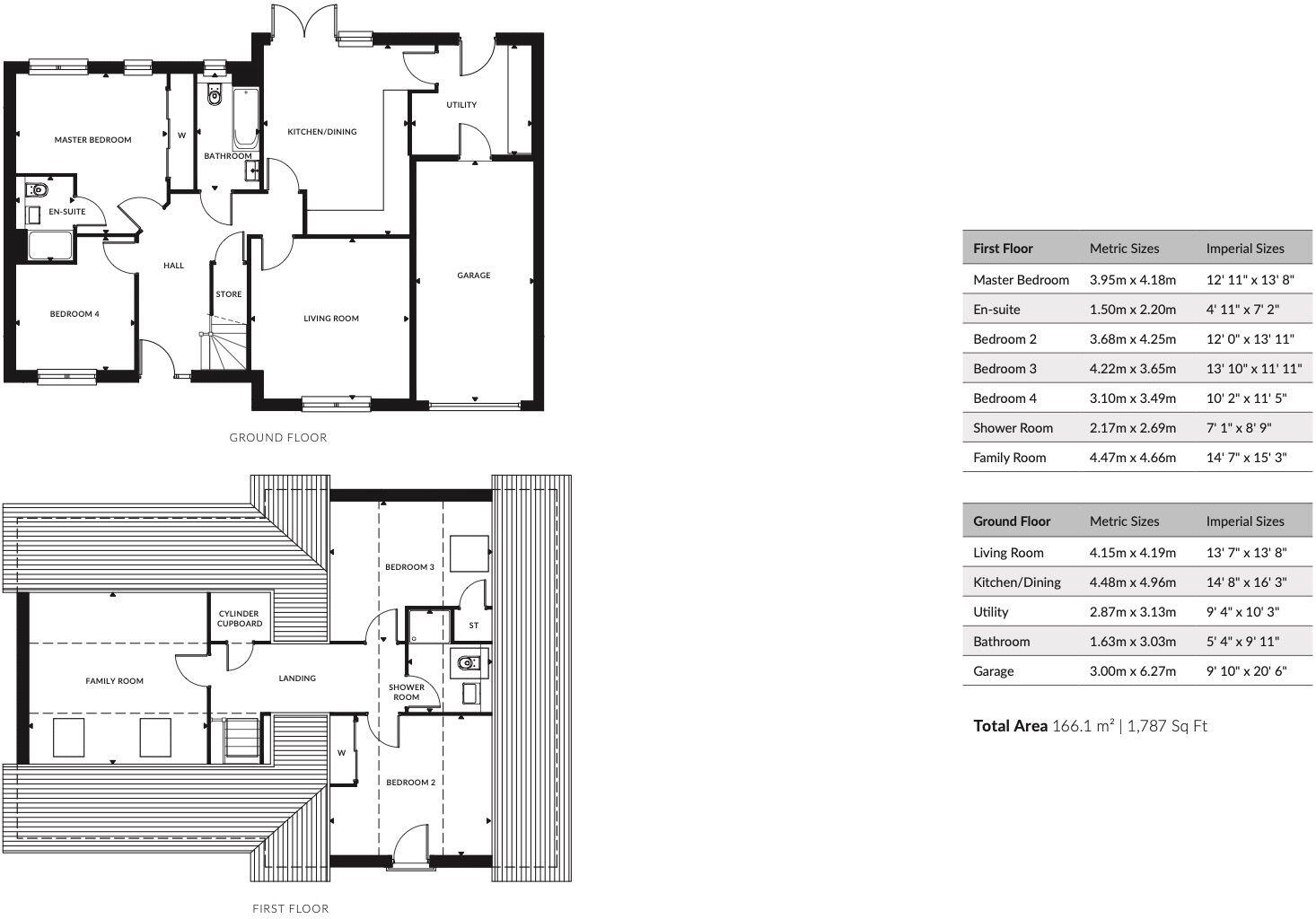
A contemporary 4-bedroom detached new build arranged over 1.5/2 floors, offering modern family living close to Edinburgh. The home is specified with integrated premium kitchen appliances and built-in oak wardrobes included, plus an integral garage and driveway parking. Internally the layout delivers flexible ground-floor living with additional bedrooms and family space upstairs under a steep pitched roof with rooflights.
This property suits families seeking low-maintenance, high-spec accommodation with strong digital connectivity — excellent mobile signal and fast broadband are already in place. The plot and gardens are average in size for a suburban development, ideal for outdoor play or simple landscaping rather than extensive grounds. The build finishes include rendered and horizontal cladding with stone/brick detailing to the gable.
Buyers should note material facts: the area is classified as very deprived, tenure is unspecified, and exact plot and boundary details are not provided. There are no identified flood risks. The home’s new-build condition reduces immediate maintenance needs but purchasers may wish to confirm warranty and specification details before exchange. Local amenities include a kindergarten, nursery and bus services, while Edinburgh is a short drive away for wider schools and services.
4 bedroom detached house for sale in Shale Road,
Winchburgh,
West Lothian,
EH52 6RD, EH52 — £463,995 • 4 bed • 1 bath • 1382 ft²
5 bedroom detached house for sale in Plot 112 The Hazelford, West Craigs Mews, Turnhouse Road, Edinburgh, EH12 0AD, EH12 — £625,000 • 5 bed • 3 bath • 1242 ft²
4 bedroom detached house for sale in Plot 114, Kenwood, West Craigs Mews. Turnhouse Road, Edinburgh, EH12 0AD, EH12 — £600,000 • 4 bed • 3 bath • 1286 ft²
4 bedroom detached house for sale in Shale Road,
Winchburgh,
West Lothian,
EH52 6RD, EH52 — £419,995 • 4 bed • 1 bath • 1058 ft²
4 bedroom detached house for sale in Off B6392,
Bonnyrigg,
Midlothian,
EH19 3FA, EH19 — £425,000 • 4 bed • 1 bath • 859 ft²
4 bedroom detached house for sale in The Douglas, Millerhill Grange, Millerhill, EH22 1RZ, EH22 — £390,000 • 4 bed • 2 bath • 1055 ft²






