WA8 5BQ - Land for sale in Lunts Heath Road, Widnes, WA8

View on Property Piper

Land for sale in Lunts Heath Road, Widnes, WA8

Summary - Lunts Heath Road, Widnes, WA8 WA8 5BQ

1 bed 1 bath Land

**Standout Features:**
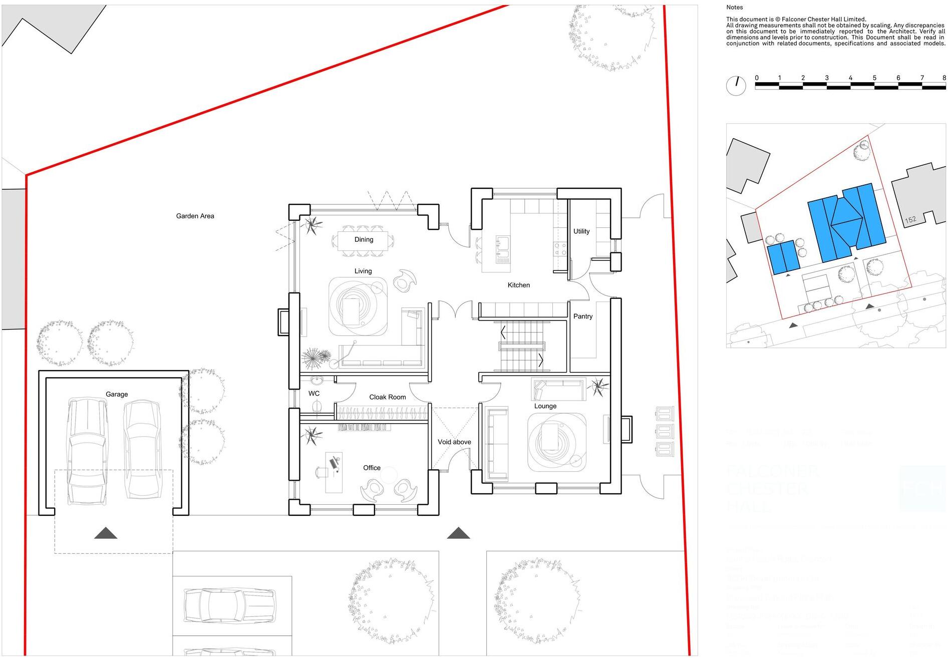
- Prime location on prestigious Lunts Heath Road
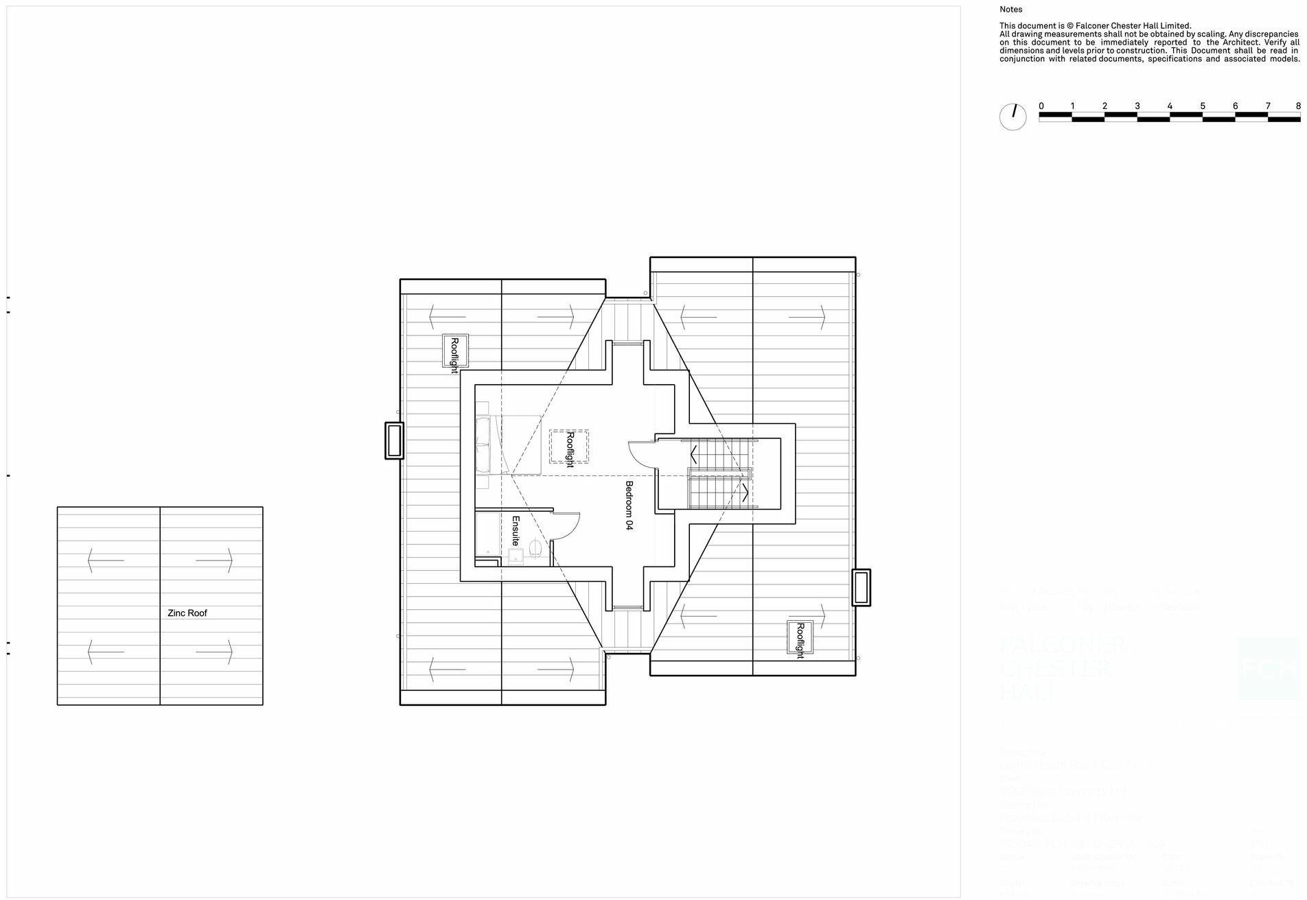
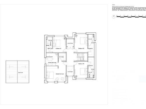
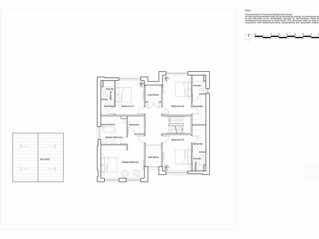
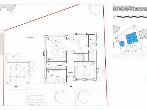
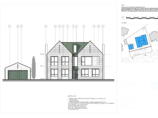
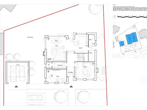
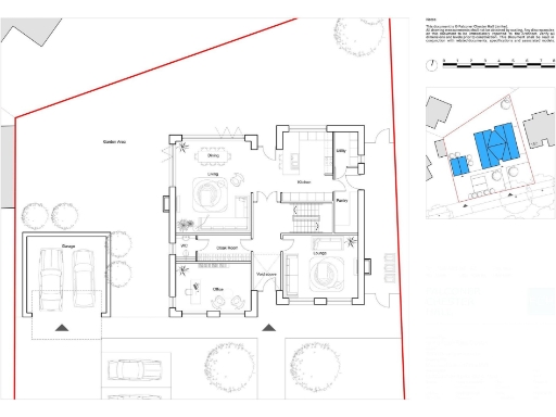
- Full planning permission granted for a luxury home (342 sqm) and double garage (30 sqm)
- Additional planning for a pair of semi-detached homes
- Expansive plot size of approximately 0.2 acres
- Surrounded by executive homes with low crime rates
- Proximity to excellent schools and local amenities

**Summary:**
Embark on a remarkable opportunity to construct your dream home on this expansive building plot in an exclusive neighborhood on Lunts Heath Road. With full planning permission in place, you can start designing a luxury residence measuring 342 square metres, complete with a double garage. The plans are optimized for modern living, ensuring both style and functionality. Also available are plans for a pair of semi-detached homes, making this an enticing prospect for investors or those looking to build multiple properties.

Nestled in a tranquil setting surrounded by upscale homes, this plot offers not only privacy but also easy access to Widnes town center and exceptional transport links. Families will appreciate the outstanding local schools, consistently rated highly by Ofsted, while the affluent community ensures a safe and welcoming environment. Given the rarity of land opportunities in this prime location, potential buyers are encouraged to act quickly to secure this exceptional investment. Don’t miss the chance to turn your vision into reality!

Property Details

Image Descriptions

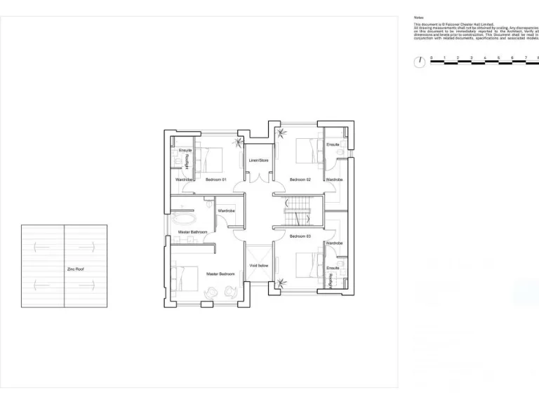
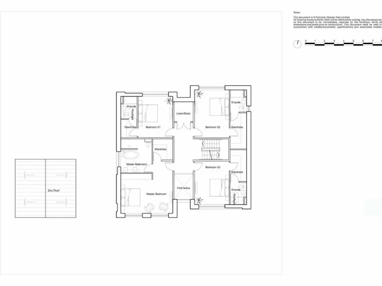
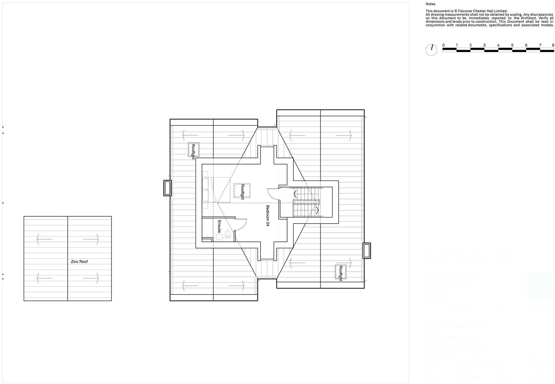
Floorplan Description

Rooms

Textual Property Features

Detected Visual Features

Nearby Schools

Nearest Bars And Restaurants

,,,,}

Nearest General Shops

,,}

Nearest Grocery shops

,,}

Nearest Supermarkets

,,}

Nearest Religious buildings

,,}

Nearest Medical buildings

,,,}

Nearest Airports

,}

Nearest Leisure Facilities

,,,,}

Nearest Tourist attractions

,,}

Nearest Train stations

,,,,}

Nearest Bus stations and stops

,,,,}

Nearest Hotels

,,}

Tags

Local Market Stats

Similar Properties

Meta

High Res Images

Compatible Images

Low res Images

Thumbnails

Raw Images

High Res Floorplan Images

Compatible Floorplan Images

Low res Floorplan Images

FloorplanImages Thumbnail

Raw Floorplan Images