**Standout Features:**
- Recently granted outline planning permission for two additional four-bedroom detached homes
- Generous living space with unique original period features
- Large south-facing rear garden, garage, and driveway
- Close proximity to reputable schools and essential amenities
**Concerns:**
- Consider future maintenance and development coordination due to planning permissions
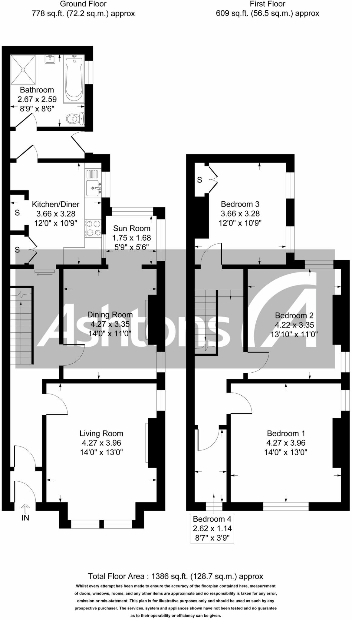
Discover a rare opportunity with this expansive land parcel on Heath Road, Widnes, ideal for both families and investors alike. This property not only presents a charming period semi-detached home that showcases original character, but it also boasts recently granted planning permission for the construction of two four-bedroom detached houses, making it an outstanding investment prospect. The existing house features a spacious lounge, a well-appointed kitchen/diner with bespoke cabinetry, and three comfortable bedrooms that ensure restful nights.
With a generous south-facing garden and an additional room well-suited for a home office or ensuite conversion, the potential for comfortable family living is substantial. Located in a family-friendly neighborhood with access to reputable schools and a vibrant local community, this property offers the perfect blend of serenity and convenience. Don’t miss out on this chance to create your dream home while capitalizing on significant development potential. Schedule a viewing today and envision the possibilities!
Land for sale in Lunts Heath Road, Widnes, WA8 — £375,000 • 1 bed • 1 bath • 8708 ft²
Land for sale in Lunts Heath Road, Widnes, WA8 — £375,000 • 1 bed • 1 bath • 8708 ft²
Land for sale in Wilmere Lane, Widnes, WA8 — £275,000 • 1 bed • 1 bath
Land for sale in Whint Cottage Old Whint Road (Cottage & Land), WA11 — £360,000 • 3 bed • 2 bath • 13724 ft²
3 bedroom semi-detached house for sale in Heath Road, Widnes, WA8 — £279,500 • 3 bed • 1 bath
4 bedroom detached house for sale in Heath House Close, Lowton, WA3 — £350,000 • 4 bed • 3 bath • 1109 ft²














































































































