Move straight into modern, low-maintenance family living near Easingwold.
Built in 2023 with contemporary fixtures throughout
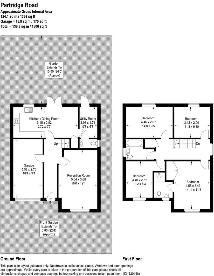
Built in 2023, this modern four-bedroom detached house offers contemporary, low-maintenance living for a growing family. The open-plan dining kitchen with French doors flows to an enclosed lawned garden and decked seating — ideal for family meals and outdoor play. A light sitting room and separate utility add practical everyday space.
The first-floor layout places a generous master with fitted wardrobes and ensuite alongside three further double bedrooms and a family bathroom, giving flexible sleeping arrangements and homework/guest space. Integral single garage, driveway parking for two cars and an EPC B rating contribute to running-cost efficiencies.
Set in a very affluent, rural-feeling area close to Easingwold, the home benefits from excellent mobile signal and fast broadband — useful for remote working or streaming. There is no flooding risk and mains gas central heating with radiators provides reliable warmth.
Notable points to consider: tenure is not specified and council tax is moderate. The property is average in overall size for its type and sits in a hamlet/isolated-dwelling classification, so routine amenities may require a short drive into town. These are practical factors to weigh against a largely move-in-ready, contemporary finish.
4 bedroom detached house for sale in Easingwold, York, YO61 — £439,995 • 4 bed • 2 bath • 1545 ft²
4 bedroom detached house for sale in Goldfinch Way, Easingwold, York, YO61 — £570,000 • 4 bed • 3 bath • 1934 ft²
4 bedroom house for sale in Partridge Road, Easingwold, York, YO61 — £450,000 • 4 bed • 2 bath • 1401 ft²
4 bedroom detached house for sale in Partridge Road, Easingwold, YO61 — £550,000 • 4 bed • 2 bath • 1933 ft²
4 bedroom house for sale in Main Street, Thorganby, York, YO19 — £820,000 • 4 bed • 4 bath • 1669 ft²
3 bedroom detached house for sale in Swaledale Drive, Bedale, DL8 — £400,000 • 3 bed • 1 bath • 966 ft²














































































