Spacious central-site industrial unit for operators or income buyers.
Freehold light-industrial unit circa 7,758–7,885 sq ft
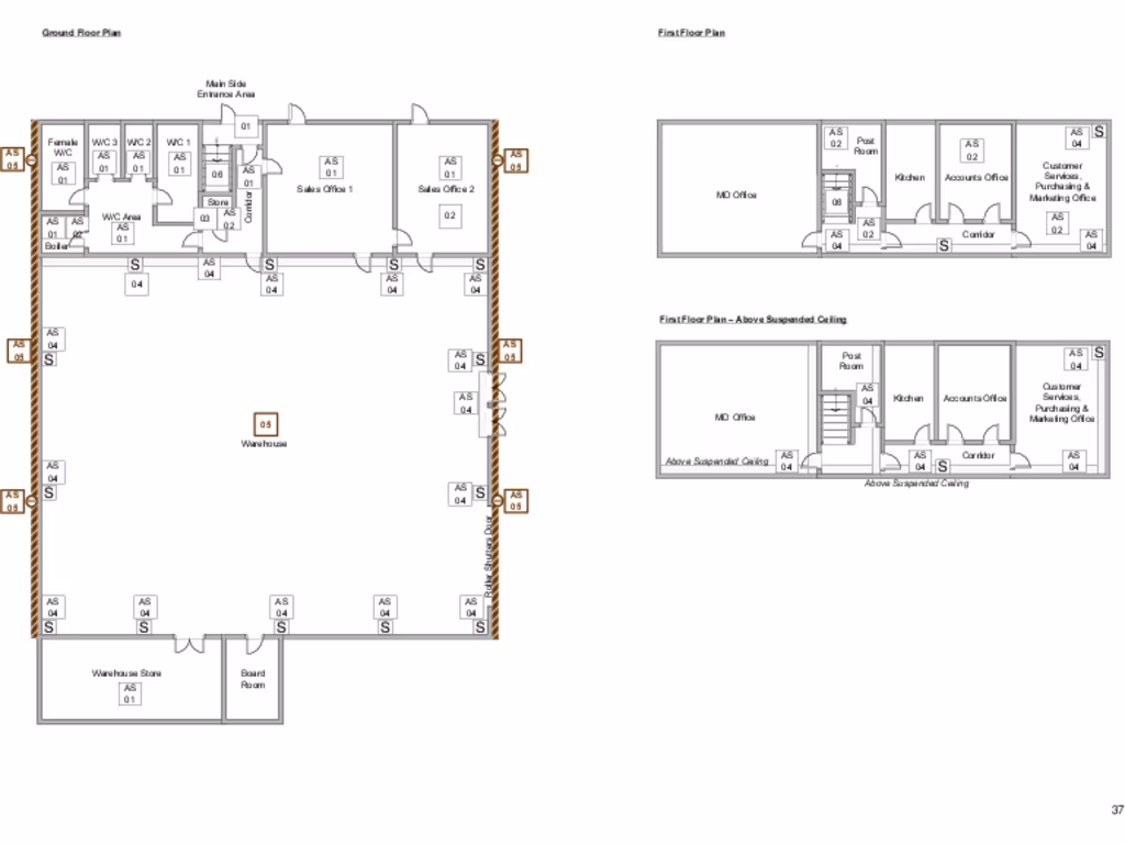
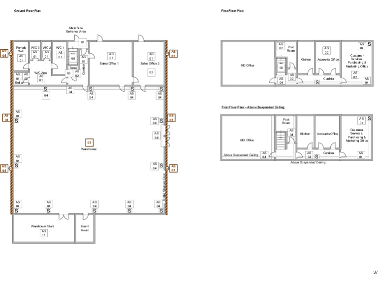
Steel frame warehouse with 6.1m eaves and 7.2m apex
Two-storey fitted offices with AC, LG3 lighting and kitchen
Mezzanine, roller shutter and glazed customer entrance
Large concreted yard, secure fencing and 13 marked parking spaces
Vacant possession; VAT not payable on the sale (understood)
Very high local crime — may affect insurance and security costs
Medium flood risk; check insurance and mitigation requirements
A substantial freehold light-industrial unit just south of Sheffield city centre, delivered vacant and ready for immediate occupation or letting. The steel-framed warehouse offers high eaves (6.1m) with a 7.2m apex, a roller shutter, glazed entrance and a mezzanine, providing flexible storage, workshop or trade-counter layouts across 7,758–7,885 sq ft (overall). Two-storey integral offices are fitted to a good standard, with air conditioning, LG3 lighting, kitchen and WC facilities — useful for owner-occupiers who need both production and office space.
Externally the site benefits from a large concreted yard and 13 marked parking spaces behind secure fencing and gated entrances, helping vehicle movements and customer access. The location on Sheaf Gardens Industrial Estate is under 0.5 miles from the city centre and about 0.25 miles from Sheffield railway station, with quick access to the inner ring road (A61) and Sheffield Parkway to the M1.
This property will suit an owner-occupier seeking a large, well-specified workspace or an investor targeting industrial/warehouse demand close to central Sheffield. The freehold title and vacant possession simplify acquisition, and VAT is understood not to be payable. Prospective purchasers should verify the current rateable value and operating costs with the Local Authority.
Material considerations: the site sits in a neighbourhood with very high recorded crime and a medium flood risk — both factors that will influence insurance and operational security costs. The building is otherwise sound in specification but may benefit from minor modernisation depending on occupier fit-out requirements. Anti-money laundering ID checks will be required for the purchaser.
Distribution warehouse for sale in 197 Holme Lane, Sheffield, S6 — £1,800,000 • 1 bed • 1 bath • 28497 ft²
Distribution warehouse for sale in 11 Roman Ridge Road, Sheffield, S9 1GB, S9 — POA • 1 bed • 1 bath • 5561 ft²
Distribution warehouse for sale in 1 Amberley Street, Sheffield, S9 — POA • 1 bed • 1 bath
Warehouse for sale in Blast Lane, Sheffield, South Yorkshire, S4 7TA, S4 — £2,200,000 • 1 bed • 1 bath
Distribution warehouse for sale in 160 Solly Street, Sheffield, S1 4BF, S1 — POA • 1 bed • 1 bath • 11421 ft²
Distribution warehouse for sale in Athol Road, Sheffield, S8 — POA • 1 bed • 1 bath • 13331 ft²














































































