Spacious two-bedroom apartment close to St James’s Park and Victoria transport links.
Top-floor apartment with lift access and balcony views across central London
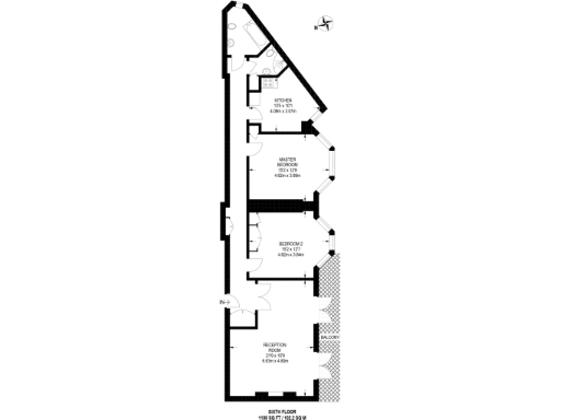
Set on the top floor of an imposing red-brick mansion block, this 1,100 sq ft two-bedroom apartment combines generous room proportions with striking city views. High ceilings, bay windows and period detailing give the principal rooms a classic feel, while the large reception room opens onto a balcony that looks across central London.
Practical features include lift access, a porter in the grand entrance, separate bathroom and shower room, and share-of-freehold tenure. The flat sits in a highly central location close to Victoria Street amenities and the green open spaces of St James’s Park, with excellent transport and digital connectivity.
Buyers should note the property’s maintenance profile: constructed 1900–1929 with solid brick walls (likely little or no wall insulation) and a relatively high annual service charge of £10,000. The wider area records a very high crime indicator, which may be a consideration for some purchasers. Overall, this is a spacious period flat with strong location appeal and clear scope for sympathetic upgrading to improve energy performance and modern finishes.
2 bedroom flat for sale in Ashley Gardens, Westminster, London, SW1P — £1,150,000 • 2 bed • 2 bath • 1037 ft²
2 bedroom apartment for sale in Ashley Gardens, Thirleby Road, Victoria, London, SW1P — £1,000,000 • 2 bed • 2 bath • 1077 ft²
4 bedroom flat for sale in Ashley Gardens, Ambrosden Avenue, Victoria SW1W, SW1P — £2,395,000 • 4 bed • 3 bath • 2178 ft²
4 bedroom apartment for sale in Ashley Gardens, Thirleby Road, London, SW1P — £3,200,000 • 4 bed • 3 bath • 3106 ft²
3 bedroom flat for sale in Thirleby Road, LONDON, SW1P — £2,200,000 • 3 bed • 2 bath • 1842 ft²
5 bedroom flat for sale in Ashley Gardens, Thirleby Road, London, SW1P — £3,200,000 • 5 bed • 3 bath • 3106 ft²














































































































