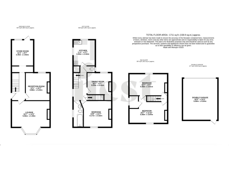
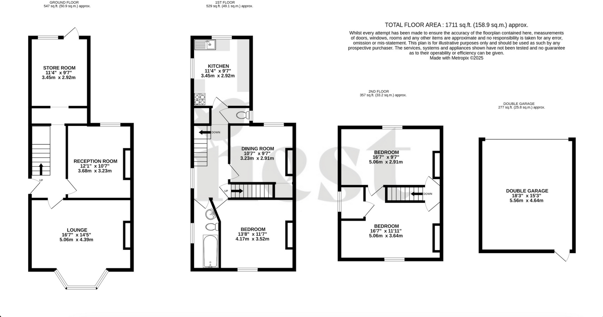
**Standout Features:**
- Victorian period home with original high ceilings and bay windows
- Four spacious bedrooms; potential for a fifth
- Double garage and secure off-road parking
- Convenient location near Taunton Train Station and amenities
- Low-maintenance garden with patio and side vehicle access
- Significant renovation potential for personal touches or development
**Potential Concerns:**
- Needs renovation throughout; some rooms currently used for storage
- Average council tax band and energy efficiency described as EPC 'G'
This impressive Victorian home, built in 1877, offers the perfect opportunity for families and investors looking to create their dream space while being in a prime location. With four to five bedrooms and ample living areas, this property exudes character with high ceilings and traditional features. The double garage and off-road parking add practicality, while the low-maintenance rear garden provides a space for relaxation or hosting. With just a short stroll to Taunton's center and quick access to public transport, it’s ideal for commuters.
Although the property requires renovation, this presents a fantastic chance to personalize your home while also enhancing its value over time. Imagine designing a contemporary kitchen or converting an upper room into a luxurious ensuite — the possibilities are endless. Don’t miss out on this unique blend of period charm and modern potential in a sought-after area that is sure to cater to the convenience and lifestyle needs of any buyer looking for both comfort and investment potential. Act quickly, as homes with such potential in this desirable location are rare!
4 bedroom end of terrace house for sale in Belvedere Road, Taunton, Somerset, TA1 — £450,000 • 4 bed • 1 bath • 1720 ft²
3 bedroom end of terrace house for sale in Grays Road, Taunton, Somerset, TA1 — £250,000 • 3 bed • 1 bath • 1238 ft²
2 bedroom terraced house for sale in Alma Street, Taunton, Somerset, TA1 — £264,500 • 2 bed • 1 bath • 1044 ft²
2 bedroom end of terrace house for sale in Kingston Road, Taunton, Somerset, TA2 — £250,000 • 2 bed • 1 bath • 980 ft²
4 bedroom end of terrace house for sale in George Street, Taunton, Somerset, TA2 — £175,000 • 4 bed • 1 bath • 457 ft²
3 bedroom terraced house for sale in George Street, Taunton, TA2 — £270,000 • 3 bed • 1 bath • 1118 ft²






















































































































