**Standout Features:**
- Charming three-bedroom Victorian home with a blend of original features.
- Two spacious reception rooms with high ceilings and natural light.
- Low-maintenance private courtyard garden with vehicle access.
- Convenient location near Taunton's town centre and local amenities.
- Recently installed heating system.
**Potential Downsides:**
- High crime rate in the area.
- Small plot size; on-street parking is readily available but could be limited.
- Property needs some cosmetic updates to maximize its potential.
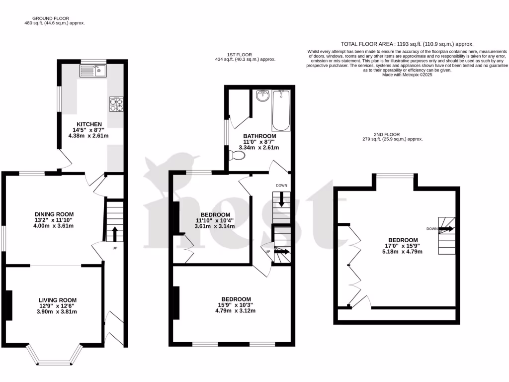
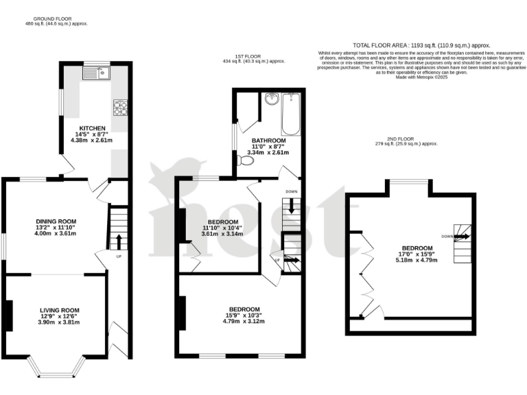
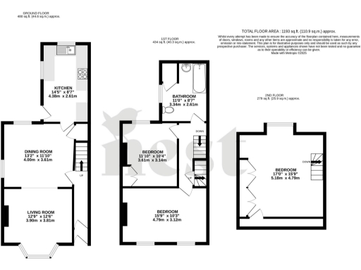
Discover the timeless charm of this delightful three-bedroom Victorian end terrace home, perfectly situated just a stone's throw from Taunton Town Centre. Built in 1897, this residence showcases an abundance of preserved original features, including high ceilings, decorative molding, and elegant sash windows, inviting both families and investors alike to explore its potential. The generous living and dining spaces provide a welcoming atmosphere, while the kitchen opens directly to a quaint courtyard garden, offering rare vehicle access—ideal for those with busy lifestyles.
Upstairs, you'll find spacious bedrooms and a family bathroom, with the third bedroom nestled in the loft, perfect for guests or a private office space. This property’s unique layout allows for customization and an opportunity to create your dream home. With the convenience of on-street parking and a location within walking distance to numerous amenities and reputable schools, this hidden gem presents a valuable opportunity in a sought-after area. Don't miss the chance to make it yours—properties with this character and versatility don't last long!
3 bedroom terraced house for sale in Belvedere Road, Taunton, Somerset, TA1 — £300,000 • 3 bed • 2 bath • 1315 ft²
4 bedroom end of terrace house for sale in Belvedere Road, Taunton, Somerset, TA1 — £450,000 • 4 bed • 1 bath • 1720 ft²
2 bedroom terraced house for sale in Alma Street, Taunton, Somerset, TA1 — £264,500 • 2 bed • 1 bath • 1044 ft²
3 bedroom terraced house for sale in St. Augustine Street, Taunton, TA1 — £230,000 • 3 bed • 1 bath • 1033 ft²
4 bedroom terraced house for sale in Gyffarde Street, Taunton, TA1 — £300,000 • 4 bed • 1 bath • 1441 ft²
3 bedroom terraced house for sale in Stephen Street, Taunton, Somerset, TA1 — £230,000 • 3 bed • 1 bath • 1023 ft²






























































