Compact three-storey fixer with strong transport links and refurbishment potential.
- Victorian end-of-terrace with bay window and high ceilings
- Chain free sale, three-storey layout with attic/second-floor room
- Four bedrooms within a compact 457 sq ft footprint
- Requires full refurbishment; likely need to update services
- Small enclosed rear garden, paved low-maintenance front area
- Fast broadband and convenient train/town centre access
- Local area flagged as deprived with higher crime levels
- Council tax affordable; no flood risk reported
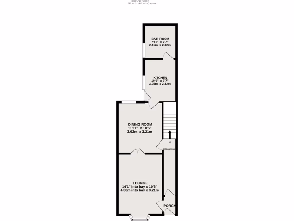
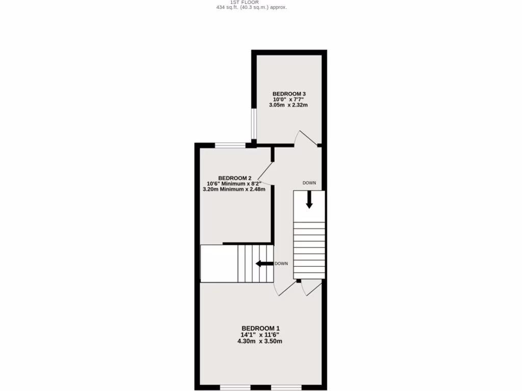
A Victorian end-of-terrace arranged over three storeys, offered chain free and ready for a full renovation. The property retains period features — high ceilings, bay window and chimneys — and has flexible room layouts across four bedrooms and around eight rooms in total. At 457 sq ft the house is compact for its bed count, offering scope to rework the plan and add value.
The house is best suited to an investor or buyer comfortable with a refurbishment project. The accommodation requires full refurbishment throughout, including likely updates to services, finishes and floors; the current condition includes partially stripped rooms and a garden that is overgrown. Positives include a small enclosed rear garden, paved front area and fast local broadband, plus convenient access to Taunton town centre and the nearby train station.
Buyers should note the setting: the local area scores as deprived with higher local crime levels, and the plot and overall property footprint are small. Council tax is described as affordable and there is no flood risk. For the right purchaser this is a lower-entry purchase with clear potential to modernise and either create a profitable rental or a compact family home once renovated.
3 bedroom terraced house for sale in Church Street, Taunton, TA1 — £200,000 • 3 bed • 1 bath • 1391 ft²
4 bedroom terraced house for sale in Gyffarde Street, TA1 — £290,000 • 4 bed • 1 bath • 1350 ft²
3 bedroom terraced house for sale in Cheddon Road, Taunton, TA2 — £180,000 • 3 bed • 1 bath • 811 ft²
3 bedroom terraced house for sale in Salisbury Street, Taunton, TA2 — £255,000 • 3 bed • 1 bath • 1209 ft²
2 bedroom end of terrace house for sale in Cherry Grove, Taunton, TA2 — £215,000 • 2 bed • 1 bath • 735 ft²
3 bedroom terraced house for sale in Gladstone Street, Taunton, Somerset., TA2 — £235,000 • 3 bed • 1 bath • 947 ft²


























































