Character filled three-bed with private garden and loft potential close to stations.
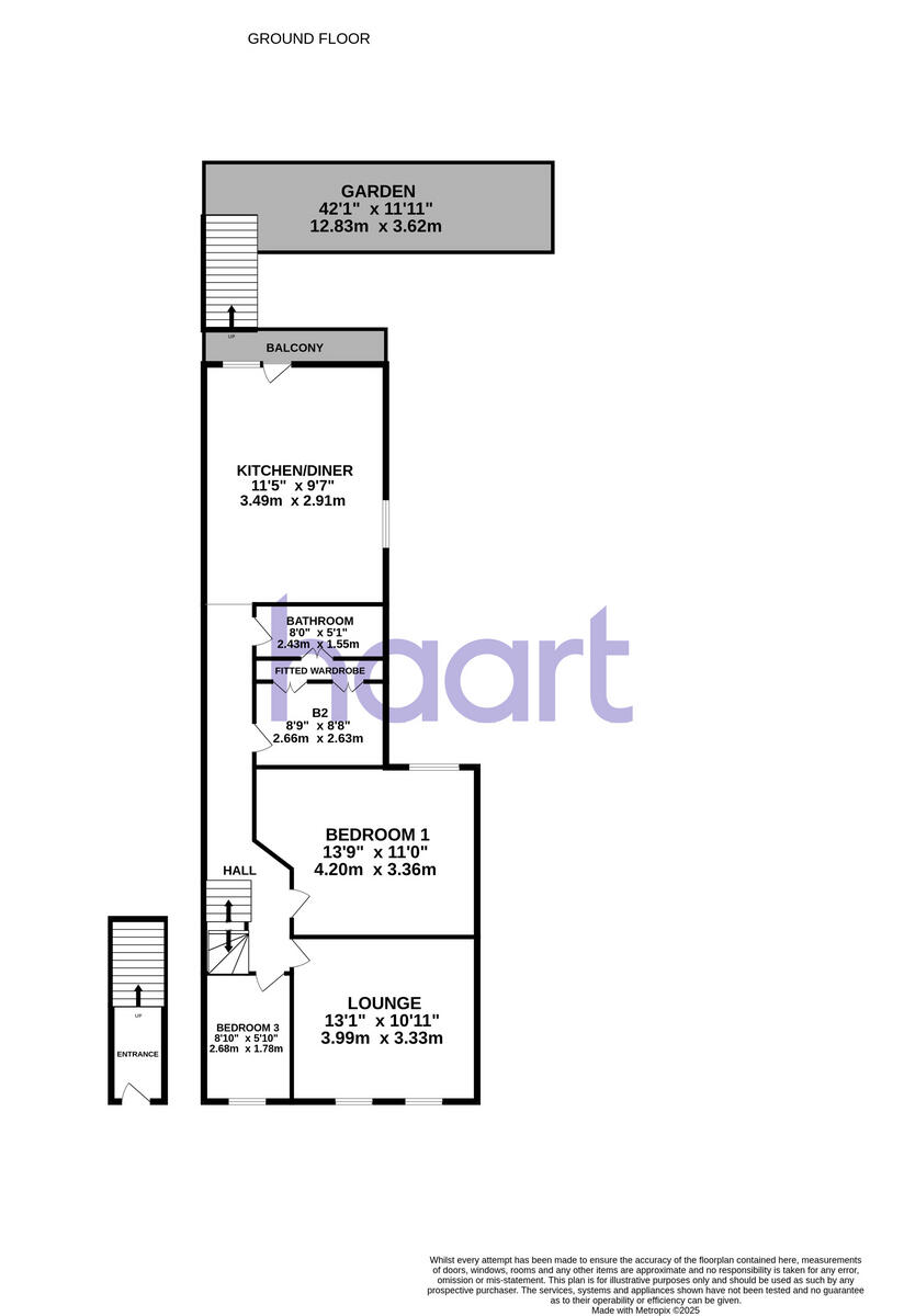
Three bedrooms on first floor, traditional Warner layout
This first-floor Warner maisonette blends period character with practical space for modern living. The property offers three well-proportioned bedrooms, a generous kitchen-diner that opens to a balcony and private rear garden, plus a substantial shed — useful storage or a small workshop. The loft is included in the lease and the share of freehold and long lease (c.991 years) make future improvements or an extension feasible, subject to planning and building regulations.
Internally the layout is traditional and straightforward, with a single bathroom and gas central heating to radiators. Double glazing has been fitted since 2002. The property is chain free, so completion can be quicker for a motivated buyer. Broadband and mobile signal are strong, and local schools have good Ofsted ratings, which will appeal to families and professionals.
Buyers should note material points honestly: the overall size is modest at about 721 sq ft and the building has solid brick walls with no assumed cavity insulation, so upgrading thermal performance may be needed. The surrounding area records very high crime and is classified as deprived, which some buyers will regard as a significant factor. Practical improvement works and security measures should be budgeted for.
For someone seeking a characterful three-bedroom close to Blackhorse Road station with genuine scope to add value — particularly if you can secure loft conversion permissions — this maisonette presents a realistic opportunity. It suits first-time buyers or small families who prioritise location, transport links and future potential over turnkey perfection.
3 bedroom flat for sale in Warner Road, Walthamstow, E17 — £535,000 • 3 bed • 1 bath • 691 ft²
4 bedroom maisonette for sale in Courtenay Road, Walthamstow, E17 — £575,000 • 4 bed • 1 bath • 978 ft²
2 bedroom apartment for sale in Theydon Street, Walthamstow, E17 — £499,995 • 2 bed • 1 bath • 789 ft²
2 bedroom apartment for sale in Markhouse Road, Walthamstow, E17 — £435,000 • 2 bed • 1 bath • 720 ft²
2 bedroom flat for sale in Harris Street, Walthamstow, E17 — £475,000 • 2 bed • 1 bath • 790 ft²
2 bedroom flat for sale in Brettenham Road, Walthamstow, E17 — £500,000 • 2 bed • 1 bath • 672 ft²






































































