Walk to station, schools and Broadway — convenient living for growing households.
Three double bedrooms across three floors
Short walk (approx 12 mins) to Barnehurst Station
Within walking distance of several Good-rated schools
Presented in excellent condition; contemporary kitchen fittings
Small plot with low-maintenance garden
Single family bathroom only on top floor
Permit on-street parking; no private driveway
Higher local crime rate noted in area statistics
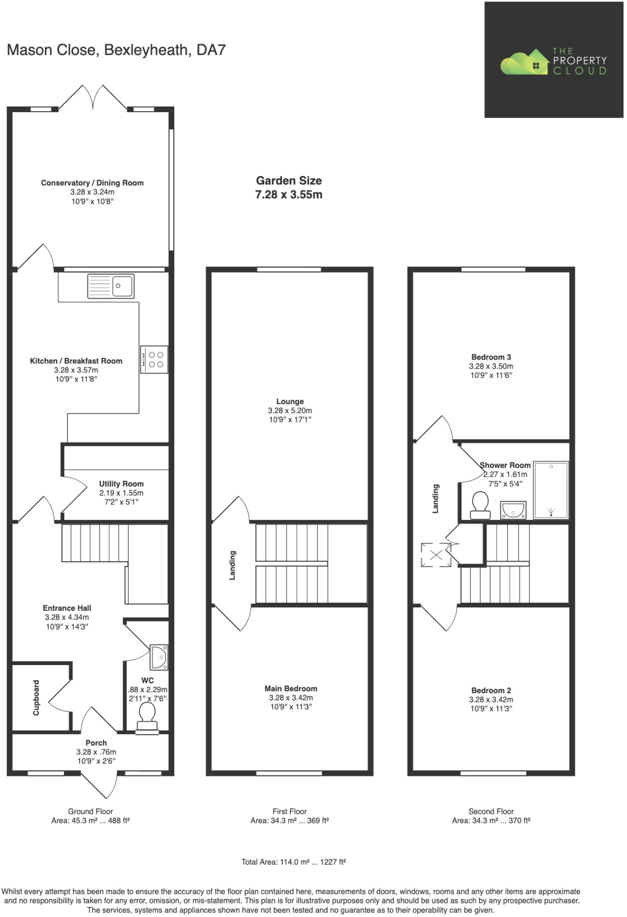
Set within easy walking distance of Barnehurst station, local primary schools and Bexleyheath Broadway, this three-double-bedroom end-of-terrace townhouse suits growing families wanting everyday convenience. The layout spreads living space across three floors: a practical ground floor with kitchen/breakfast room, utility, WC and conservatory opening to a low-maintenance garden; a first-floor living room and bedroom; and two double bedrooms plus the family bathroom on the top floor.
The home is presented in excellent condition with contemporary fittings in the kitchen and clean, neutral finishes throughout, so it’s largely move-in ready. Practical details include permit-only on-street parking, freehold tenure and an affordable Council Tax Band C. The plot is small and the garden low maintenance, which reduces upkeep but limits outside space for larger families.
Transparent points to consider: there is only one family bathroom, the property sits in a higher-crime area statistically, and parking requires a local permit rather than private off-street space. For buyers prioritising transport links, schools and a tidy, modern townhouse with scope for personalising interiors, this house offers strong day-to-day convenience and good long-term schooling options within the Bexley grammar catchments.
3 bedroom semi-detached house for sale in Birchington Close, Bexleyheath, DA7 — £400,000 • 3 bed • 1 bath • 984 ft²
4 bedroom semi-detached house for sale in Spring Vale, Bexleyheath, DA7 — £525,000 • 4 bed • 1 bath • 1389 ft²
4 bedroom semi-detached house for sale in Ennerdale Road, Bexleyheath, DA7 — £650,000 • 4 bed • 3 bath • 1573 ft²
3 bedroom semi-detached house for sale in Castleton Avenue, Bexleyheath, Kent, DA7 — £450,000 • 3 bed • 2 bath • 1009 ft²
3 bedroom terraced house for sale in Hind Crescent, Erith, Kent, DA8 — £400,000 • 3 bed • 1 bath • 933 ft²
3 bedroom terraced house for sale in Grasmere Road, Bexleyheath, DA7 — £425,000 • 3 bed • 1 bath


















































































































