Extended 4-bed semi in a quiet cul‑de‑sac near schools and stations.
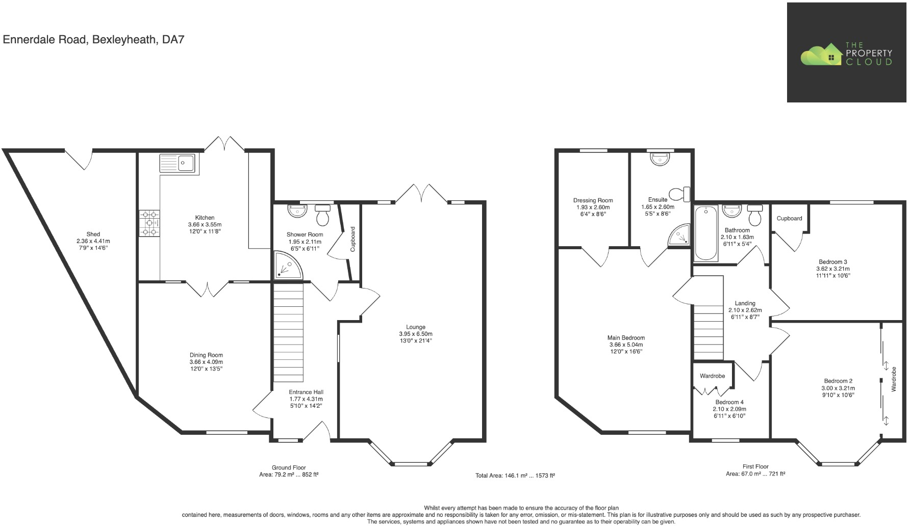
Four bedrooms plus dressing room and en suite to master
Set in a quiet cul‑de‑sac just off The Green, this extended 1930s semi‑detached house provides roomy family living across three floors. The ground floor is arranged for everyday life with a generous living area, an open kitchen/dining space that leads to a low‑maintenance rear garden, and the convenience of a ground‑floor shower room. Upstairs there are four well‑proportioned bedrooms, including a master suite with dressing room and en suite.
Practical benefits include off‑street parking for 2–3 cars, freehold tenure and a sizeable 1,573 sq ft interior that suits growing families who need separate reception and sleeping zones. Local amenities are very accessible: The Green is moments away, several good primary schools are within walking distance, and both Barnehurst and Bexleyheath stations are within a 15‑minute walk for commuter links.
Buyers should note a few material points. Council tax is Band E (above average), and the seller’s paperwork for any past building work has not been provided — buyers should verify alterations and services during survey and conveyancing. There is also a Reservation Agreement process for successful offers; ask for full details and the Buyer Information Pack before committing.
Overall this house offers substantial, flexible family space in a sought‑after, low‑crime neighbourhood — a practical, comfortable option for parents who prioritise schools, transport and an easy outdoor area for children.
3 bedroom semi-detached house for sale in Castleton Avenue, Bexleyheath, Kent, DA7 — £450,000 • 3 bed • 2 bath • 1009 ft²
5 bedroom semi-detached house for sale in Barrington Road, Bexleyheath, DA7 — £750,000 • 5 bed • 3 bath • 1688 ft²
4 bedroom semi-detached house for sale in Oakwood Drive, Bexleyheath, DA7 — £600,000 • 4 bed • 2 bath • 1439 ft²
4 bedroom semi-detached house for sale in Faygate Crescent, Bexleyheath, DA6 — £575,000 • 4 bed • 3 bath • 1571 ft²
5 bedroom semi-detached house for sale in Norfolk Gardens, Bexleyheath, DA7 — £715,000 • 5 bed • 3 bath
3 bedroom semi-detached house for sale in Birchington Close, Bexleyheath, DA7 — £400,000 • 3 bed • 1 bath • 984 ft²






























































































































































































