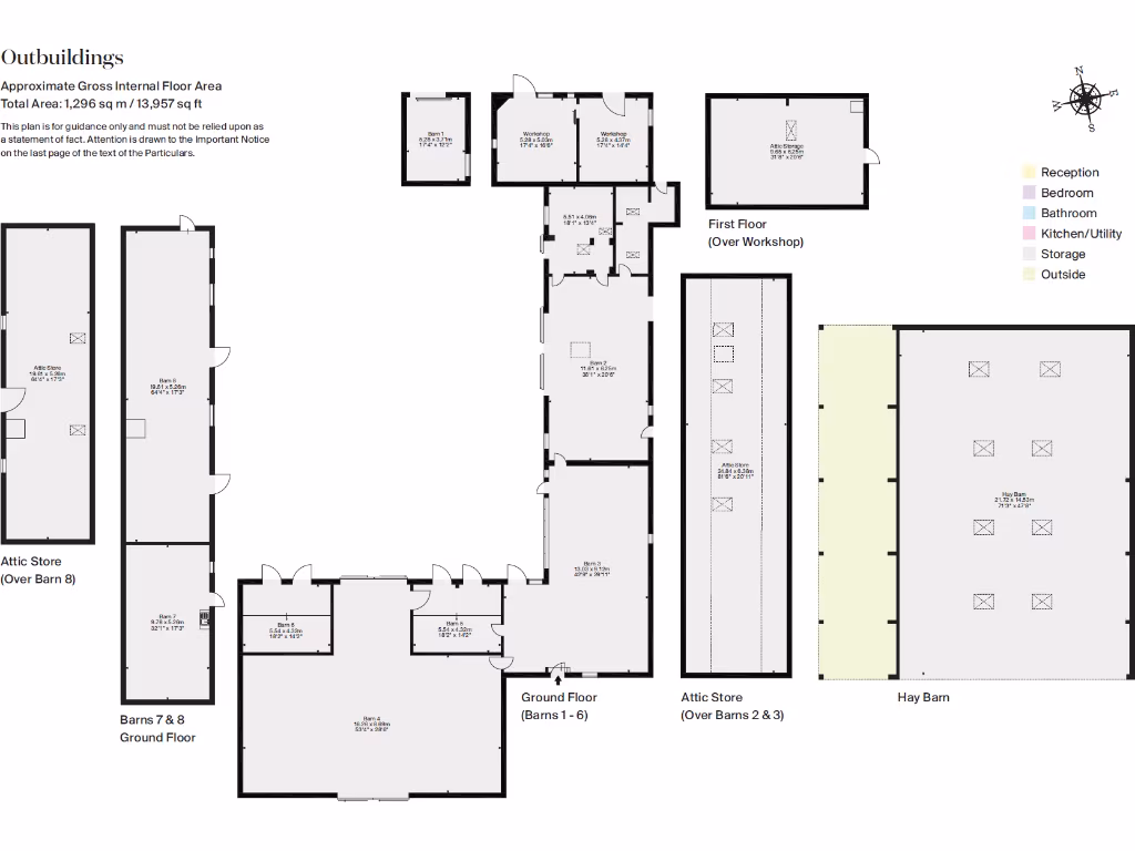
About 3.22 acres within South Downs National Park
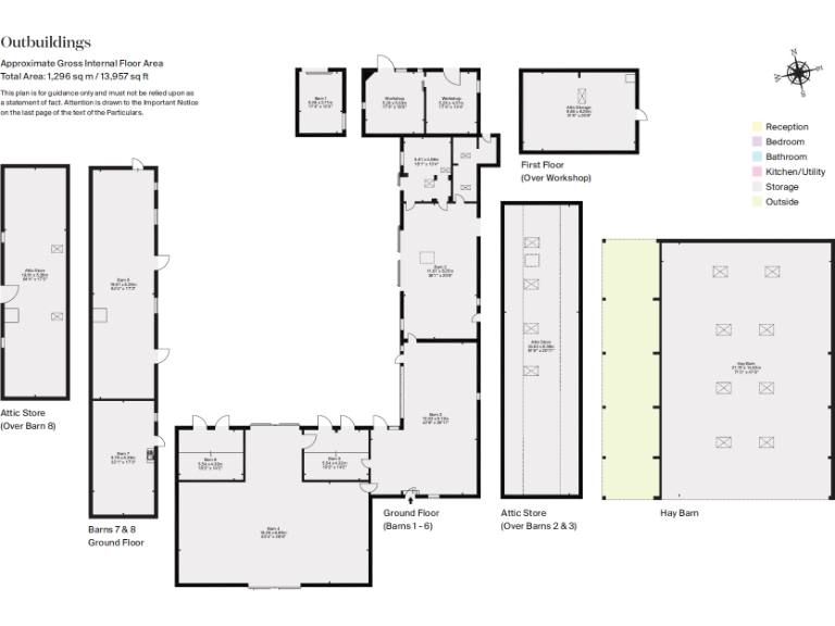
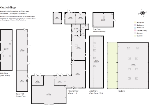
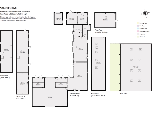
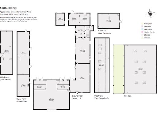
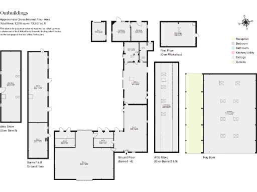
Hay Place Farm is a substantial rural holding of about 3.22 acres on the southern edge of Binsted within the South Downs National Park. The site comprises multiple large stone and brick Victorian-era barns around a paved courtyard, two modern concrete-framed agricultural buildings and generous grounds offering uninterrupted views over surrounding farmland. Planning permission (Local Authority ref SDNP/25/01572/DCOND) has been granted to convert the period farm buildings into four residential units totalling approximately 10,453 sq ft. A certificate of lawfulness application is still pending.
This is a renovation and development opportunity aimed at buyers with experience of rural conversions or developers seeking a countryside project. The current owners also hold drawings and pre-application advice for an alternative scheme to create a single large dwelling with courtyard garden and tennis court, giving flexibility to pursue either scheme subject to approvals. The holding is freehold, listed postcode GU34 4PE, and benefits from low local crime, good road links to the A31/A3, and proximity to Farnham and Winchester.
Buyers should note material issues: the buildings require significant renovation to complete the permitted conversions and the two concrete-framed farm buildings will need refurbishment for continued use. Broadband speeds are very slow and mobile signal is average — relevant for home-working or tech-dependent occupiers. The property sits in a protected national park, which brings planning sensitivities. Flood risk is recorded as no risk.
For investors or experienced owner-occupiers the site offers scale, character and multiple exit routes — create four dwellings, a single grand residence, or retain farm use and ancillary storage. The combination of acreage, usable outbuildings and granted permission provides clear development upside, while the renovation requirements and planning conditions demand capital, patience and specialist input.















































































































































































































