NG14 5FS - Plot for sale in Bridle Road, Burton Joyce, NG14

View on Property Piper

Plot for sale in Bridle Road, Burton Joyce, NG14

Summary - 80, Bridle Road, Burton Joyce, NOTTINGHAM NG14 5FS

1 bed 1 bath Plot

**Standout Features:**
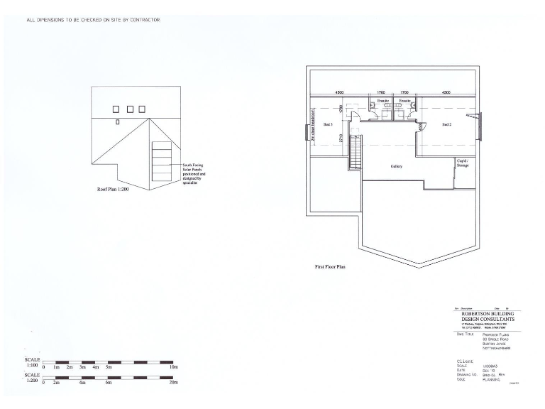
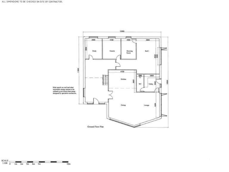
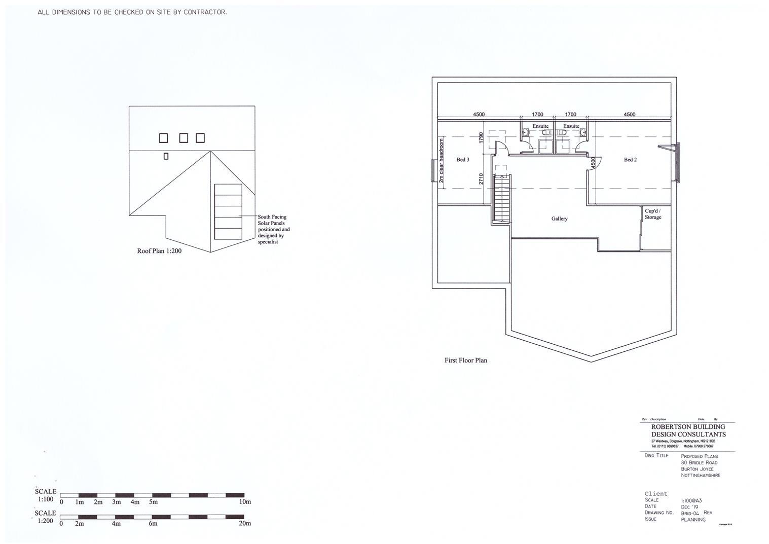
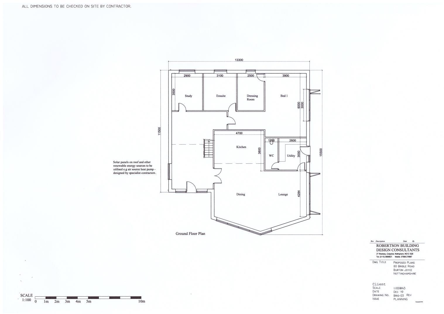
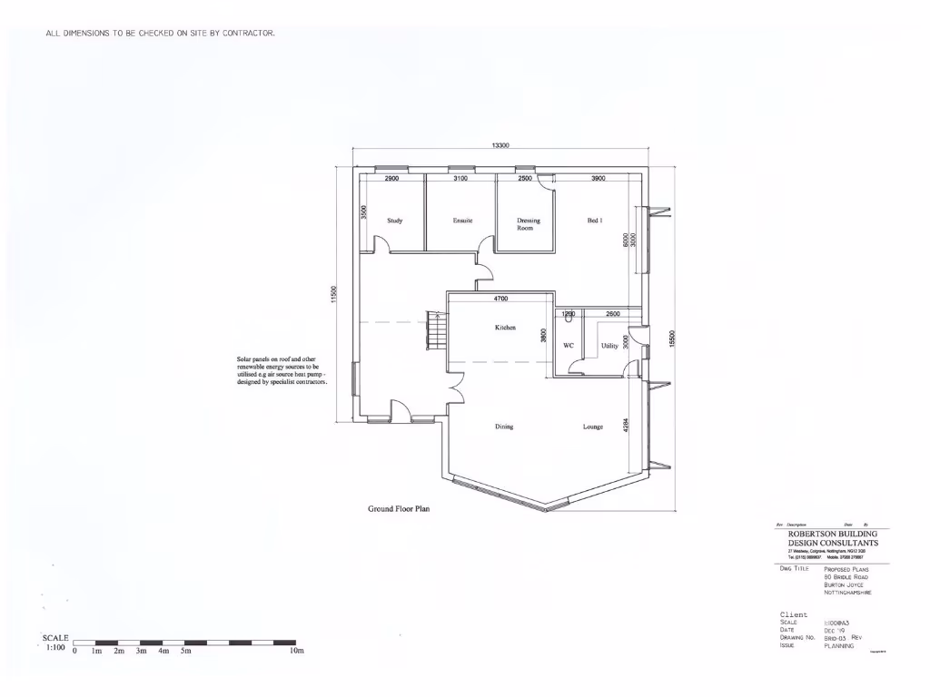
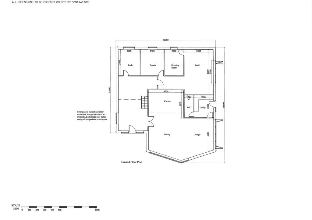
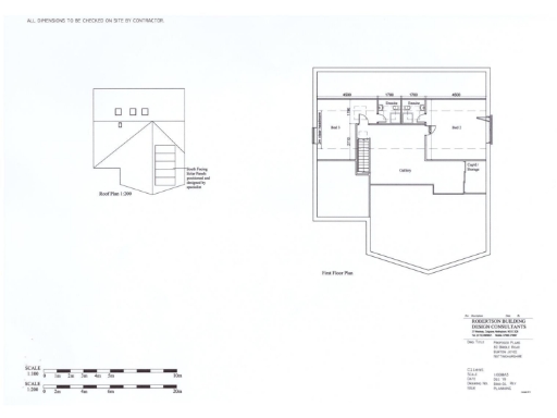
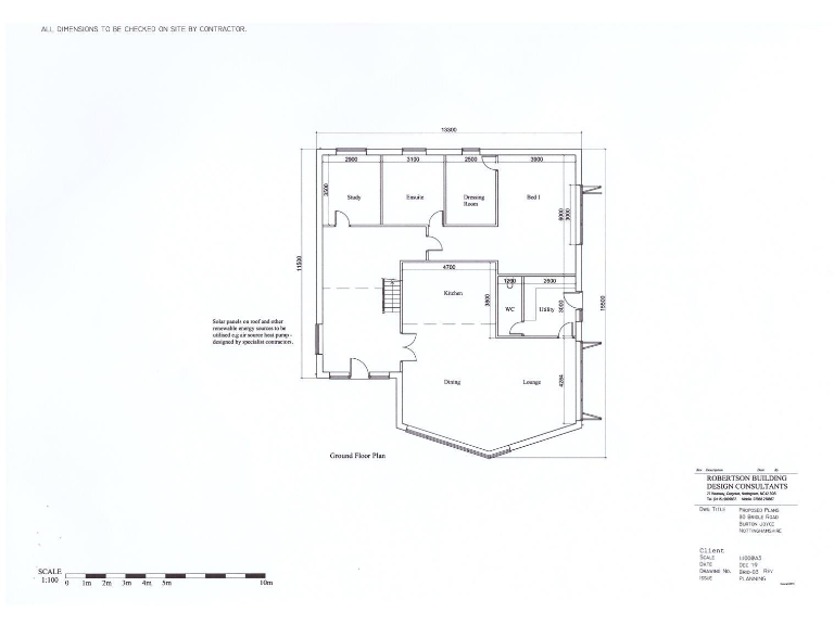
- Level building plot with **planning permission granted until April 2027** for a modern **3000 sq ft detached chalet style home**.
- Expansive **plot size of approximately 849 sq m** with a **westerly aspect**, ideal for ample natural light.
- **Space for double garage** (subject to planning).
- Situated in a **highly regarded village** with access to essential amenities and good transport links.

Discover a unique opportunity in Burton Joyce to build your dream home on this spacious level plot, complete with planning permission for an impressive 3000 sq ft contemporary chalet-style dwelling. Nestled in a picturesque, tree-lined area, the property boasts an inviting westerly aspect that promises bright and airy living spaces, drenched in natural light. The surrounding greenery provides a tranquil setting, perfect for families or individuals seeking a peaceful retreat while remaining close to a variety of local shops, schools, and transport links.

As a freehold property, this site offers flexibility and immense potential for future renovations. The established trees not only enhance the property’s privacy but also evoke a sense of serenity—ideal for those who value a strong connection to nature. While the planning permission is a great asset, prospective buyers are encouraged to assess available services and any potential maintenance requirements prior to purchasing. Act fast to seize this rare chance to create a bespoke residence in one of Burton Joyce’s most desirable locations, as opportunities like this are seldom available for long.

Property Details

Brochure Descriptions

Image Descriptions

Floorplan Description

Rooms

Textual Property Features

Detected Visual Features

Nearby Schools

Nearest Bars And Restaurants

,,,,}

Nearest General Shops

,,}

Nearest Grocery shops

,,}

Nearest Supermarkets

,,}

Nearest Religious buildings

,,}

Nearest Medical buildings

,,,}

Nearest Airports

}

Nearest Leisure Facilities

,,,,}

Nearest Tourist attractions

,,}

Nearest Train stations

,,,,}

Nearest Bus stations and stops

,,,,}

Nearest Hotels

,,}

Tags

Local Market Stats

AirBnB Data

Similar Properties

Meta

High Res Images

Compatible Images

Low res Images

Thumbnails

Raw Images

High Res Floorplan Images

Compatible Floorplan Images

Low res Floorplan Images

FloorplanImages Thumbnail

Raw Floorplan Images