**Standout Features:**
- Individual building plot on the edge of the village
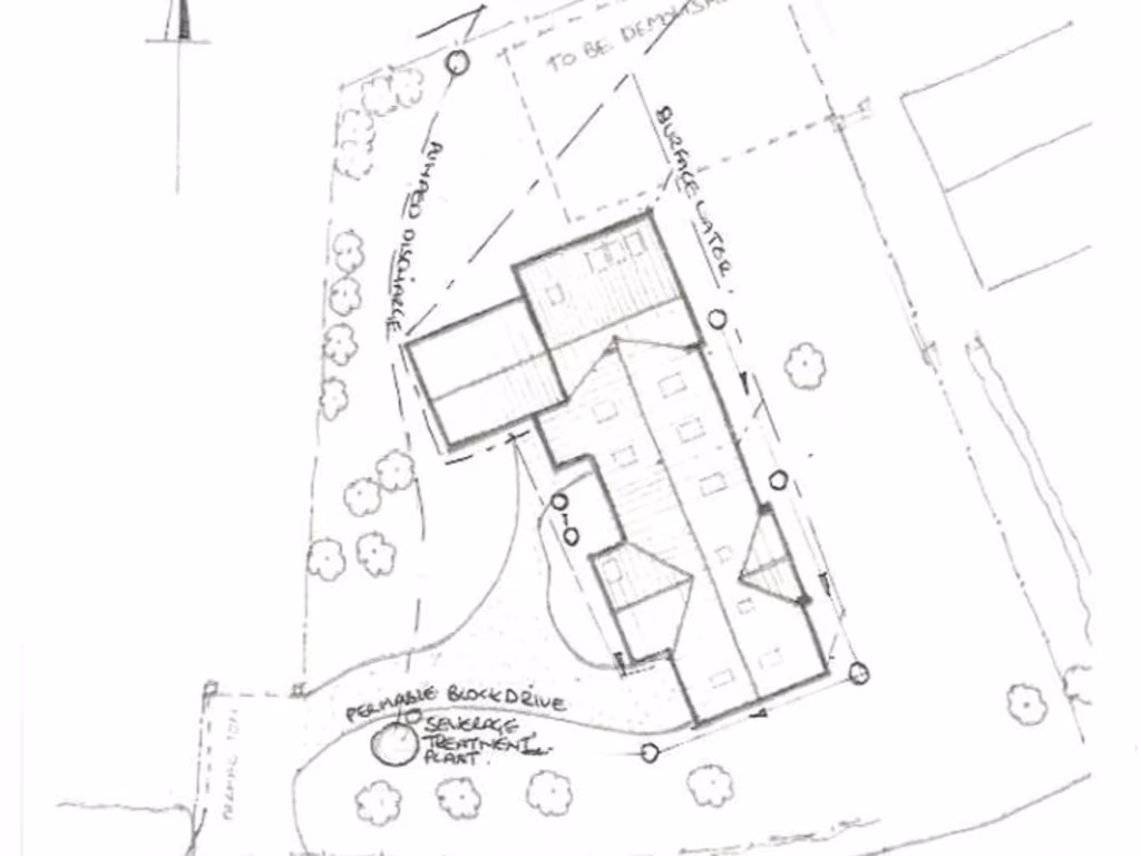
- Approx. 0.3 acres (1230 sq m) with approved planning for a bespoke home
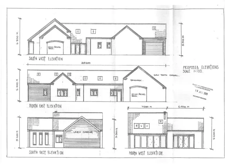
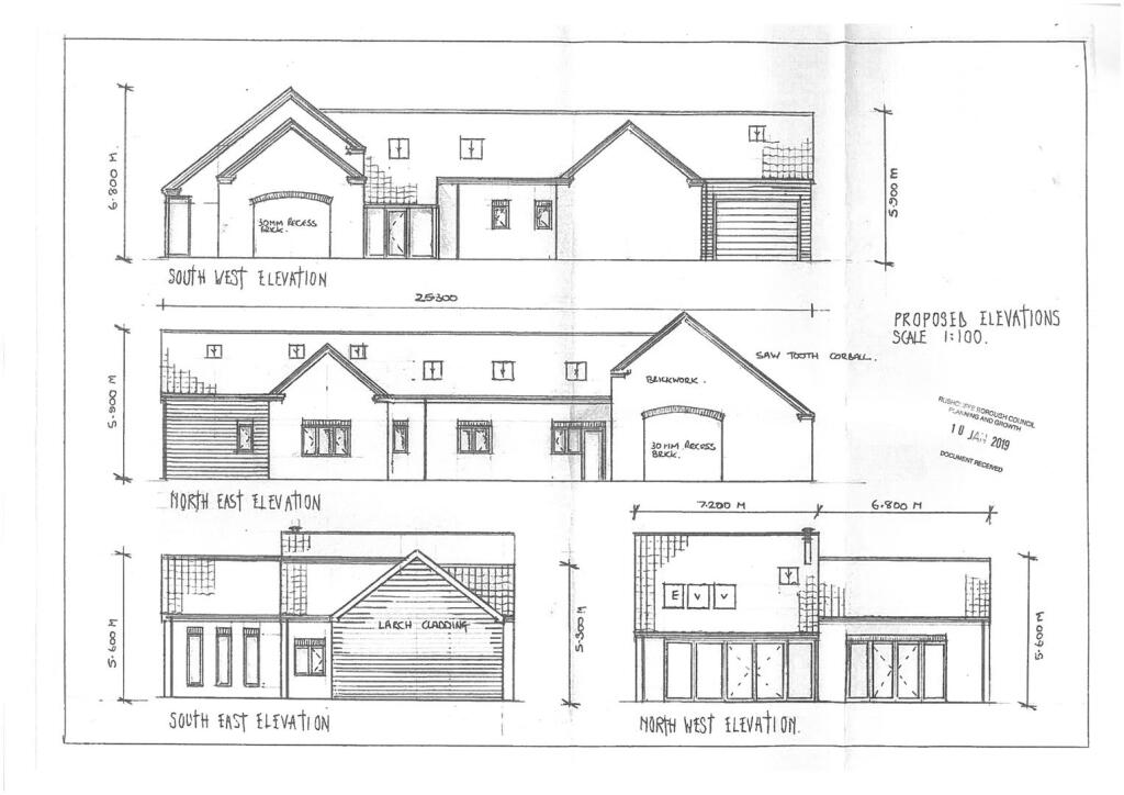
- Potential for a stunning 1.5-storey residence with up to 4 bedrooms and 4 ensuites
- Generous gardens on all sides with excellent southern and western views
- Proximity to amenities in nearby Langar, including a highly-rated primary school, pub/restaurant, and shops
- Peaceful, rural setting with low crime rates and affluent community
**Summary:**
Seize the opportunity to create your dream home on this fascinating individual building plot located on the edge of Barnstone village, tucked away in the serene Vale of Belvoir. Spanning approximately 0.3 acres, this generous parcel comes with granted planning permission (ref: 18/02101/FUL) for a bespoke 1.5-storey dwelling boasting up to 4 double bedrooms and 4 luxurious ensuites. The proposed design features an open-plan dining kitchen, two main reception areas, and a private office, all thoughtfully arranged around a central hallway.
With gardens surrounding all sides and breathtaking views over adjacent paddocks, this plot promises privacy and the opportunity for outdoor living in a scenic countryside setting. Barnstone offers a tranquil lifestyle with essential amenities just moments away, while excellent local schools and easy access to the market town of Bingham enhance its desirability. This exceptional plot presents a unique and exclusive chance to invest in a lifestyle marked by comfort, privacy, and future potential. Act quickly—opportunities like this won’t last long!
Plot for sale in School Lane, Croxton Kerrial, Grantham, NG32 — £185,000 • 1 bed • 1 bath • 1490 ft²
Land for sale in Flintham Lane, Screveton, NG13 — £350,000 • 1 bed • 1 bath • 1600 ft²
Land for sale in Alverton, Nottinghamshire, NG13 — £300,000 • 1 bed • 1 bath
Plot for sale in Bridle Road, Burton Joyce, NG14 — £295,000 • 1 bed • 1 bath • 3000 ft²
Land for sale in Nottingham Road, Burton Joyce, Nottingham, NG14 — £600,000 • 3 bed • 3 bath • 1916 ft²
Plot for sale in The Walled Garden, West Hall Grounds, Main Street, Bleasby, Nottinghamshire NG14 7GH, NG14 — £275,000 • 1 bed • 1 bath • 1840 ft²


















































