**Standout Features:**
- Two separate building plots, each with planning permission for 6-bedroom luxury homes.
- Expansive size: Plot 1 at 6,706 sqft and Plot 2 at 6,700 sqft on 0.55 acres.
- Prime location in Ruddington, close to local amenities and Rushcliffe Country Park.
- Significant cost advantages for self-builders including stamp duty and VAT savings.
- Biophilic design potential with energy-efficient systems and smart technology.
**Summary:**
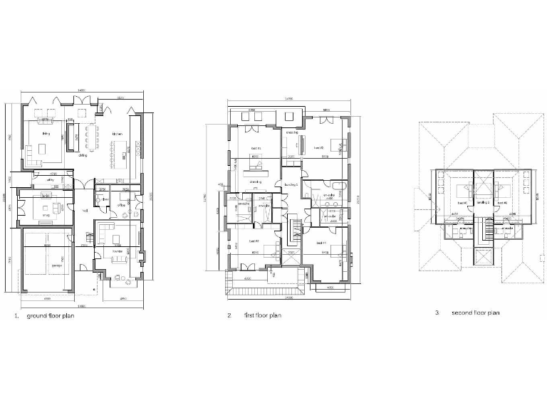
Embrace the opportunity to craft your dream home on Plots 1 & 2 along Loughborough Road in Ruddington, Nottingham. Each plot is approved for a luxurious, spacious 6-bedroom dwelling, offering ample room for a family or entertaining. Both houses are designed with privacy and comfort in mind, featuring modern layouts that include expansive kitchen/living areas, formal lounges, cozy snugs, dedicated home offices, and generous en-suite bedrooms.
Nestled in a sought-after village setting, the property promotes a tranquil lifestyle while being conveniently located near essential amenities and the scenic Rushcliffe Country Park. With significant potential for personalization, this is not just a property purchase but a chance to create a bespoke sanctuary tailored to your family's needs. Take advantage of unique financial benefits available to self-builders, making this an exceptional investment opportunity. Don't miss out on securing a piece of this exclusive retreat—contact us today for site walks and further information!
Land for sale in Land for sale, Loughborough Road, Ruddington, Nottingham, NG11 — £1,300,000 • 1 bed • 1 bath • 13406 ft²
Land for sale in Loughborough Road, Ruddington, Nottingham, NG11 — £650,000 • 6 bed • 2 bath • 6609 ft²
Land for sale in Loughborough Road, Ruddington, Nottingham, NG11 — £650,000 • 6 bed • 3 bath • 6706 ft²
Land for sale in Nottingham Road, Burton Joyce, Nottingham, NG14 — £600,000 • 3 bed • 3 bath • 1916 ft²
Plot for sale in Orchard Close, East Bridgford, Nottingham, NG13 — £375,000 • 2 bed • 1 bath • 1167 ft²
4 bedroom detached house for sale in Loughborough Road, Nottingham, NG11 — £1,350,000 • 4 bed • 4 bath • 4000 ft²






















































