Set in 1.5 acres with paddocks, stable block and excellent village links.
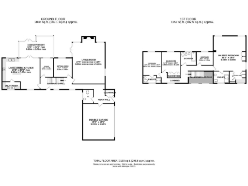
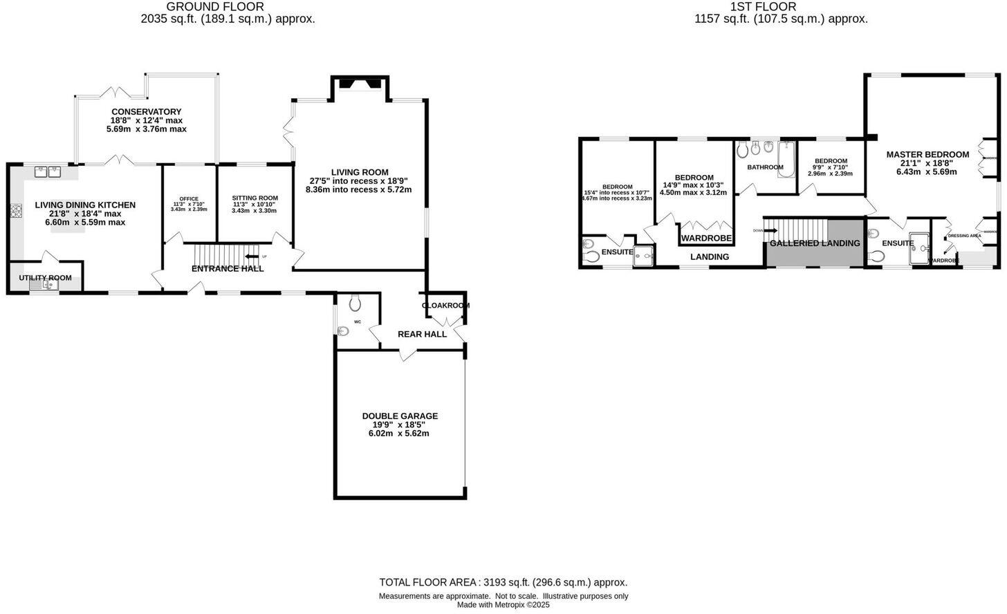
Approximately 3,200 sq ft of newly refurbished living space
Located in tranquil Cheshire countryside, this newly refurbished 3,200 sq ft barn offers dramatic family living across generous, well-planned spaces. The house sits within a superb 1.5-acre plot with formal gardens, two small paddocks and a stable block — ideal for equestrian hobbyists or those seeking extensive outdoor space. Bright reception rooms include a large drawing room with an inglenook fireplace, a breakfast kitchen with island, and a heated orangery that opens to terraces and lawns.
The first floor provides four well-proportioned bedrooms and three bathrooms, anchored by a magnificent master suite with vaulted ceilings, built wardrobes and a substantial limestone-finished ensuite. Practical features include a large double garage, extensive gravel parking for numerous vehicles, useful utility room and solid stone tiled flooring through main circulation areas. Local amenities are strong: Holmes Chapel village and its schools are close, with direct trains to Manchester, while Brereton Heath Country Park and a scenic bridle path to Swettenham enhance the rural lifestyle.
Buyers should note a few material points: tenure is not specified in the details provided and council tax is described as quite expensive; prospective purchasers should verify both. The property occupies a semi-rural, lightly populated lane and shares a small courtyard area with a neighbouring property — factors to consider for privacy and access. Overall, the conversion presents a rare combination of period character, modern luxury and substantial outdoor space for family living or hobby farming.
4 bedroom barn conversion for sale in Orchard Barn, Ley Ground Farm , Bridgemere, CW5 — £685,000 • 4 bed • 3 bath • 2000 ft²
4 bedroom barn conversion for sale in Drakelow Gorse Farm, Yatehouse Lane, Byley, CW10 — £1,450,000 • 4 bed • 5 bath • 4884 ft²
4 bedroom barn conversion for sale in Hollin Lane, Sutton, Macclesfield, Cheshire, SK11 — £1,175,000 • 4 bed • 4 bath • 3012 ft²
3 bedroom semi-detached house for sale in Over Tabley Hall Farm, Old Hall Lane, Over Tabley, Knutsford, WA16 — £750,000 • 3 bed • 2 bath • 1806 ft²
3 bedroom barn conversion for sale in Town House Barns, Rushy Lane, Barthomley, CW2 — £500,000 • 3 bed • 2 bath • 1497 ft²
4 bedroom barn conversion for sale in Hind Heath Road, Sandbach, CW11 — £799,000 • 4 bed • 3 bath • 2799 ft²






























































































































































