Contemporary three-storey house with garage and generous parking.
Chain free freehold property with four bedrooms and en-suite
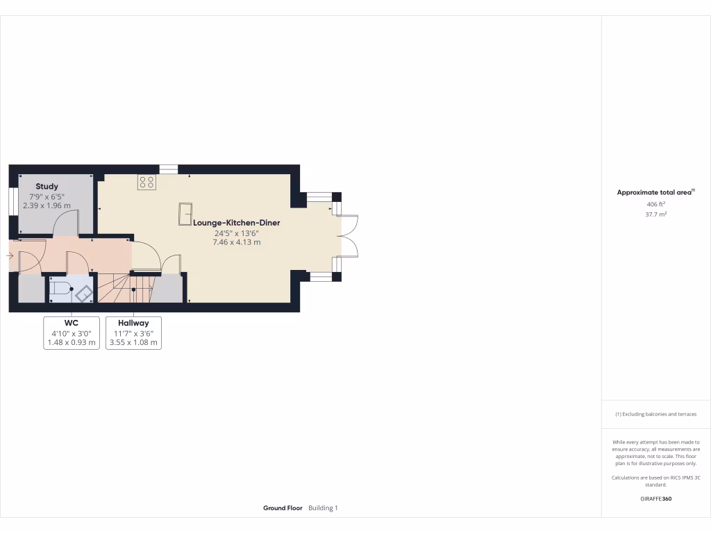
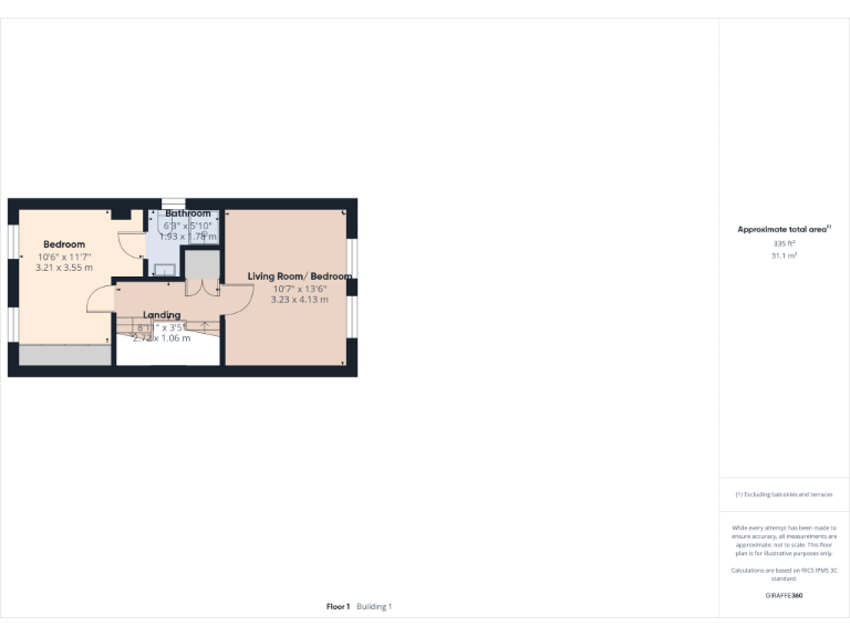
This three-storey, four-bedroom semi-detached home on Dowsell Way offers modern family living across well-planned floors. Constructed in 2021, the property includes an en-suite principal bedroom, a dedicated study, extended-depth garage and wide off-street parking for multiple vehicles. Fast broadband, mains gas heating and a small ongoing service charge help with everyday running costs.
The layout suits families who need flexible space for work and play: an open-plan kitchen/dining area with garden access, a separate utility cupboard and a ground-floor WC make daily life practical. The small private garden receives afternoon sun and the plot benefits from side access for bins and bikes. The home is freehold and being sold chain-free for a quicker move.
Buyers should note the property’s compact overall size and small plot, so those needing large outdoor space or extensive storage may find limitations. Crime in the immediate area is reported as high despite the wider area being very affluent; prospective purchasers should check local crime maps and visit at different times. Council tax is moderate and the home remains covered by remaining new-build warranty periods.
This house will appeal to families seeking a contemporary, low-maintenance home close to good local schools and leisure amenities, and to buyers wanting fast connectivity and a ready-to-move-in property. There is potential to personalise finishes internally, but major structural works are not indicated.
4 bedroom town house for sale in Broad Lane, Yate, BS37 — £425,000 • 4 bed • 2 bath • 1257 ft²
4 bedroom detached house for sale in Long Croft, Yate, Bristol, BS37 7YW, BS37 — £550,000 • 4 bed • 3 bath • 1170 ft²
4 bedroom semi-detached house for sale in Silas Road, Yate, BS37 — £390,000 • 4 bed • 2 bath • 1342 ft²
3 bedroom semi-detached house for sale in Dowsell Way, Yate, BS37 — £350,000 • 3 bed • 2 bath • 1062 ft²
3 bedroom semi-detached house for sale in Dowsell Way, Yate, BS37 — £375,000 • 3 bed • 2 bath • 1284 ft²
4 bedroom house for sale in Warner Lane, Yate, Bristol, BS37 — £360,000 • 4 bed • 1 bath • 1120 ft²


















































































