Sunny rear garden, two garages and easy motorway links for family life..
- Detached three-bedroom bungalow on a large plot
- Sunny rear garden with mature landscaping
- Two-storey garage plus additional outdoor storage
- Off-street driveway parking for several cars
- Single shower room only; may need additional bathroom
- Requires light refurbishment and modernisation throughout
- Double glazing fitted post-2002; gas central heating
- Freehold, no flood risk, moderate council tax
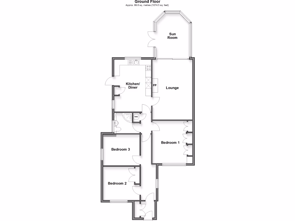
Set on a large plot at the end of a quiet cul-de-sac in the Clanfield area, this three-bedroom detached bungalow delivers single-storey living with scope. The house is bright with a sunny rear aspect, a generous lounge, separate sun room and a kitchen/diner that opens possibilities for a modernised family layout.
Outside there is substantial parking, a two-storey garage with additional storage, and a mature, landscaped garden that will appeal to keen gardeners and families who need outdoor space. Practical details include double glazing (fitted post-2002), gas central heating with a boiler and radiators, and freehold tenure.
The property does require light refurbishment and modernisation throughout — cosmetic updating, kitchen and bathroom renewal and general redecoration are needed to realise its potential. It is presented as a comfortable, traditional bungalow in an affluent, low-crime suburb with good local schools and easy motorway access.
This home suits a family seeking single-level living with room to extend or update, or an owner-occupier wanting a peaceful cul-de-sac location and a large garden to develop. Verify measurements and services prior to offer; tenure and fixtures should be confirmed by your solicitor.
4 bedroom bungalow for sale in White Beam Rise, Clanfield, Waterlooville, PO8 — £449,995 • 4 bed • 2 bath • 1178 ft²
3 bedroom detached bungalow for sale in Aldridge Close, Clanfield, PO8 — £400,000 • 3 bed • 1 bath • 1094 ft²
2 bedroom bungalow for sale in Sunderton Lane, Clanfield, Waterlooville, PO8 — £450,000 • 2 bed • 1 bath • 1180 ft²
3 bedroom detached bungalow for sale in St. James Close, Waterlooville, Hampshire, PO8 — £330,500 • 3 bed • 1 bath • 875 ft²
4 bedroom detached bungalow for sale in Drift Road, Clanfield, PO8 — £525,000 • 4 bed • 2 bath • 1808 ft²
4 bedroom bungalow for sale in White Beam Rise, Waterlooville, PO8 — £449,995 • 4 bed • 1 bath • 1002 ft²


















































































