PO8 0JY - 3 bed spacious detached bungalow in St James Close, PO8 0JY

View on Property Piper

3 bedroom detached bungalow for sale in St. James Close, Waterlooville, Hampshire, PO8

Summary - 8 ST JAMES CLOSE WATERLOOVILLE PO8 0JY

3 bed 1 bath Detached Bungalow

Single-floor living with large garden and garage, ideal for retirees.
3 double bedrooms in a single-storey detached layout
Sunny, private rear garden with large overall plot
Two-storey garage plus additional outdoor storage
Off-street parking and long driveway for multiple cars
Needs light refurbishment and modernisation throughout
Single shower room only — no separate bathroom
Homewise Lifetime Lease option for over-60s (illustrative £330,000)
Freehold tenure; verify planning and services with solicitor
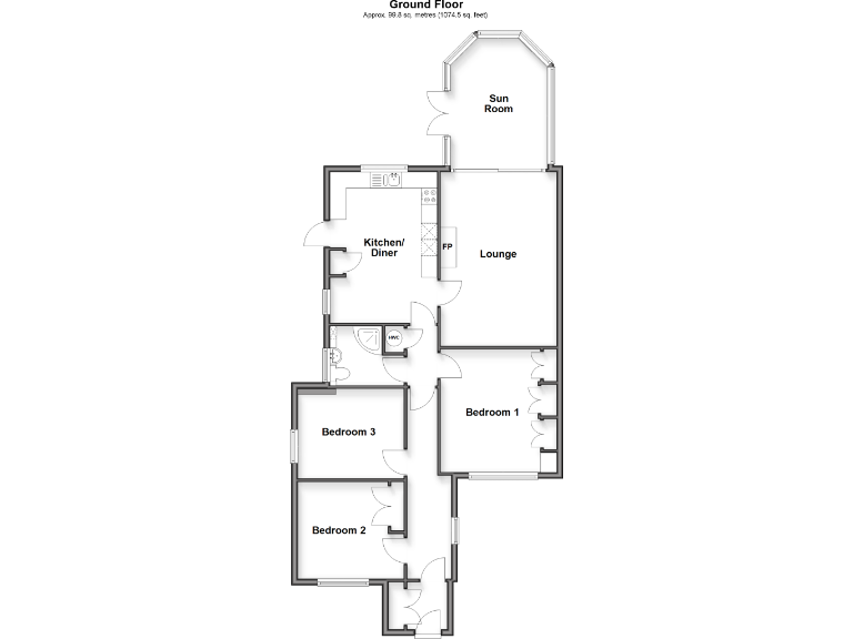
This detached three-bedroom bungalow sits on a large plot in a quiet cul-de-sac in Clanfield, offering bright, single-storey living and a sunny rear garden. The layout includes a generous lounge, separate sun room, kitchen/diner and useful two-storey garage and storage — good for vehicles, hobbies or workshop space. Broadband and mobile signals are strong, and local shops, bus links and good primary and secondary schools are nearby.

The property is offered freehold and is suitable as a retirement home. Over-60s can purchase this property via a Homewise Lifetime Lease (illustrative price £330,000 based on a typical saving of 33%); the full market price is £500,000. The final Lifetime Lease price will vary with age, circumstances and the share chosen (up to 50%). If you are under 60, the full market route is available.

This bungalow requires light refurbishment and modernisation throughout — an opportunity to update the kitchen, shower room and decorative finishes to your own taste. Practical points: there is a single shower room only, and the property needs investment to reach contemporary standards, but structural and services information should be verified by a solicitor and surveyor.

For downsizers seeking a roomy, single-floor home with substantial outdoor space and strong local amenities, this property offers clear potential. Buyers should factor the renovation requirement, the single bathroom, and the specifics of the Lifetime Lease arrangement (age eligibility and variable pricing) into their plans.

Property Details

Image Descriptions

Floorplan Description

Rooms

Textual Property Features

Target Audience

AI Tags

Detected Visual Features

EPC Details

Nearby Schools

Nearest Bars And Restaurants

,,,,}

Nearest General Shops

,,}

Nearest Grocery shops

,,}

Nearest Supermarkets

,,}

Nearest Religious buildings

,,}

Nearest Medical buildings

,,,}

Nearest Airports

}

Nearest Leisure Facilities

,,,,}

Nearest Tourist attractions

,,}

Nearest Train stations

,,,,}

Nearest Bus stations and stops

,,,,}

Nearest Hotels

,,}

Tags

Local Market Stats

Similar Properties

Meta

High Res Images

Compatible Images

Low res Images

Thumbnails

Raw Images

High Res Floorplan Images

Compatible Floorplan Images

Low res Floorplan Images

FloorplanImages Thumbnail

Raw Floorplan Images