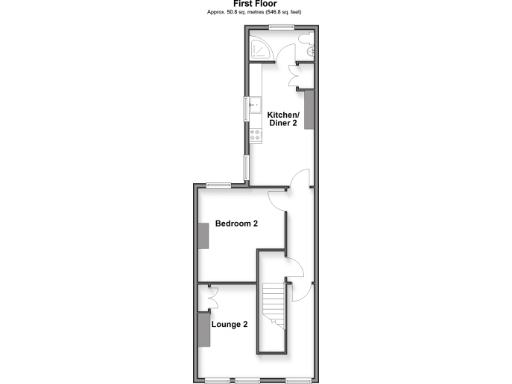
**Key Features:**
- Victorian terraced house, currently on one title
- Informally split into two 1-bedroom maisonettes
- Garden and potential for cellar conversion
- Cash buyers only; chain-free sale
- Prime location near town centre and local schools
- Built before 1900; requires modernization
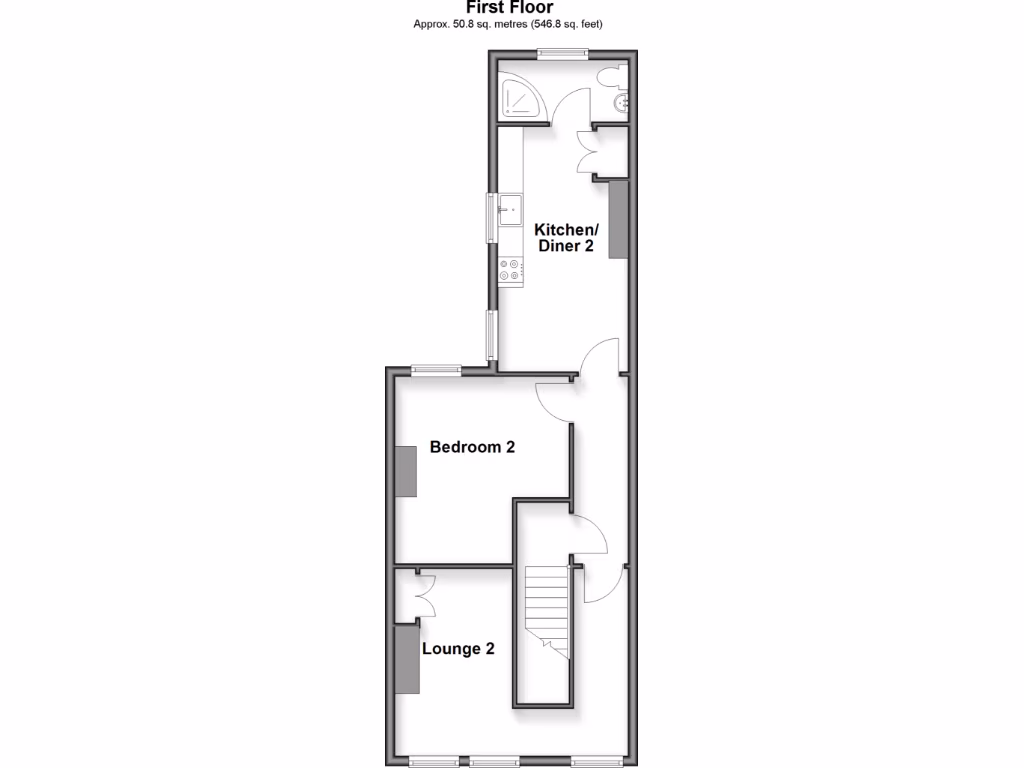
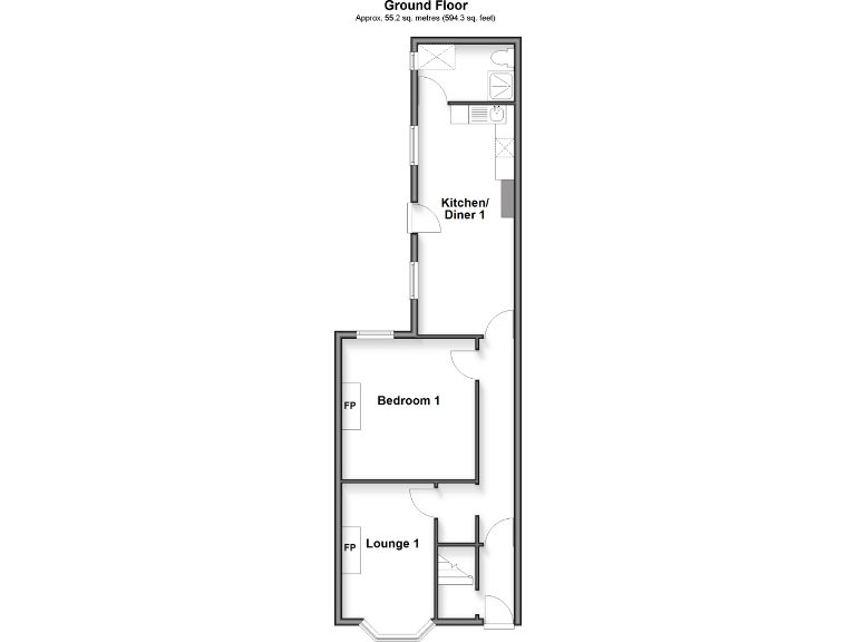
Discover this charming Victorian terrace house, an intriguing opportunity for cash buyers looking to invest or create a unique living space. With a generous size of 1,012 sq ft, this property comprises two informal maisonettes, making it ideal for potential rental income or a future title separation. Located conveniently near the bustling town centre and reputable local schools, it's perfect for families and investors alike.
While the property needs modernization, its solid brick construction and double-glazed windows provide a sturdy foundation for your renovations. The garden offers outdoor space to enjoy, and the separate cellar with its own access adds further potential for extension or storage.
This auction property is set for sale by Modern Method of Auction, making it an appealing option with a competitive price of £200,000. Don’t miss your chance to view this promising home at the open house on Saturday, 23rd August 2025—appointment only! This is an opportunity that may not last long in this vibrant urban location.
3 bedroom terraced house for sale in Wickham Street, Rochester, Kent, ME1 — £230,000 • 3 bed • 1 bath • 722 ft²
2 bedroom semi-detached house for sale in Canterbury Street, Gillingham, Kent, ME7 — £200,000 • 2 bed • 1 bath • 1057 ft²
2 bedroom terraced house for sale in Skinner Street, Gillingham, Kent, ME7 — £200,000 • 2 bed • 2 bath • 808 ft²
2 bedroom terraced house for sale in Tonbridge Road, Maidstone, Kent, ME16 — £250,000 • 2 bed • 1 bath • 759 ft²
2 bedroom terraced house for sale in May Street, Snodland, Kent, ME6 — £200,000 • 2 bed • 1 bath • 538 ft²
4 bedroom terraced house for sale in Canterbury Street, Gillingham, Kent, ME7 — £240,000 • 4 bed • 1 bath • 1443 ft²










































