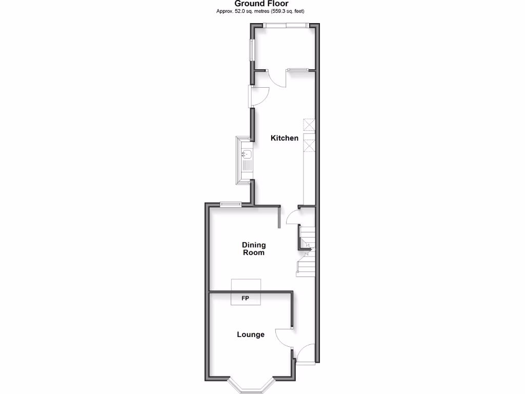
**Standout Features:**
- 2-bedroom semi-detached Victorian house
- Large living areas with high ceilings and large windows
- Convenient location near main line station and Gillingham High Street
- Good potential for renovations and personal customization
- Freehold property with a nice garden space
- Modern gas heating with double glazing installed
- Auction closing date: Friday, 17th July 2026
**Potential Concerns:**
- Requires modernization; some dated decor in living areas
- Subject to average crime rates in the area
- Area classified as deprived, with varying local amenities
This charming 2-bedroom semi-detached Victorian house offers an excellent opportunity for investors and first-time buyers looking for a project. With spacious rooms boasting high ceilings and an abundance of natural light, there's potential to create a stunning living space tailored to your taste. Located just a short walk from the main line station and Gillingham High Street, you're perfectly positioned for convenience and accessibility.
While the property does require some modernization to bring it up to date, the solid structure and spacious layout offer a solid foundation for your vision. The outdoor garden provides a welcome retreat and extra charm. With an inviting price of £200,000 and a unique opportunity to bid through the Modern Auction process, this property won't last long—don't miss out on your chance to claim this home and put your personal stamp on it!











































