**Standout Features:**
- Unique self-build opportunity in a gated development.
- Secluded location with greenbelt views.
- Fully serviced plots with electricity and water.
- Generous entrance driveway and private gardens.
- Prices starting from £450,000 with chain-free availability.
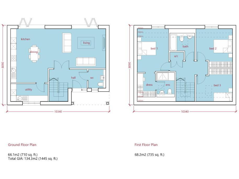
- Ideal for families with three spacious bedrooms.
Experience the unparalleled opportunity to create your dream home at North Cray Meadows, a stylish self-build development comprising six exceptional detached properties. Set in a peaceful semi-rural landscape, the available plots feature generous sizes, allowing ample personalisation for families or those seeking extra space for hobbies and guests. Each plot offers captivating views over greenbelt fields, ensuring a tranquil lifestyle away from the hustle and bustle.
The development is thoughtfully designed with modern aesthetics, featuring spacious layouts and easy access to essential local amenities including schools, shops, and healthcare facilities. With a price point starting at £450,000, this is not only a chance to build a home tailored to your family's needs but also a significant investment in a desirable community. Act now—these chain-free plots offer a rare combination of exclusivity and potential that won’t last long!
5 bedroom detached house for sale in Parkhill Road, Bexley, DA5 — £950,000 • 5 bed • 3 bath
6 bedroom detached house for sale in Holbrook Lane, Chislehurst, BR7 — £3,850,000 • 6 bed • 4 bath • 10000 ft²
Land for sale in Canada Farm Road, South Darenth, Dartford, Kent, DA4 — £475,000 • 1 bed • 1 bath • 2000 ft²
6 bedroom detached house for sale in Plot + Build Opportunity in Kelsey Lane, Beckenham, Greater London, BR3 — £1,970,000 • 6 bed • 1 bath • 3659 ft²
3 bedroom detached house for sale in Maidstone Road, Sidcup, DA14 — £2,500,000 • 3 bed • 2 bath • 1944 ft²
Land for sale in Plot 1 - Green Street Green Road, Dartford, Kent, DA2 — £299,000 • 1 bed • 1 bath • 3789 ft²


















